查看完整案例


收藏

下载
Casas, Estados Unidos
设计师:Murdough Design Architects
面积:4200 ft²
年份:2017
摄影:Chuck Choi Architectural Photography
提供协助:Grohe, Hansgrohe, Kohler, Toto, Alape, American Olean, Arrigoni Woods, Big Ass Fans, Bosch, Johnson Hardware, Krownlab, Louis Poulsen, Majestic, Prandina, Rakks, Stone Source, Tom Dixon, durodesign
Arquitecto Paisajista:Tom Murdough
负责建筑师:Rob Potish
Diseño:Jenny Tjia
Esquemas Y Maquetas:Ben Tulman
Pais:Estados Unidos
设计师描述 | Designer description:
Este diseño es una interpretación moderna de una cabina tradicional:una caja revestida de madera simple pero dinámica y un techo protector con una amplia conexión con el exterior. Un marco de espacios de "expansión" y "refugio" se coreografían en una secuencia de episodios para fundamentar y amplificar las relaciones y conexiones entre el edificio y el paisaje. Al moverse a través de la cabina, múltiples experiencias del lugar se enmarcan, se despliegan y se revelan. Los materiales y los detalles limpios apoyan lecturas variadas de las condiciones interiores y exteriores.
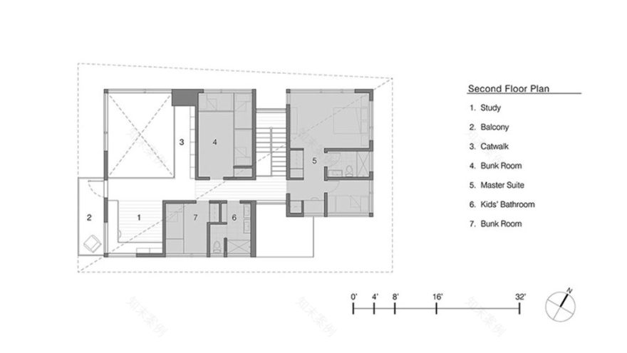
Los campos y marcos vidriados sugieren diferentes relaciones con el bosque, los árboles, el lago y el paisaje en general. La expansión y contracción espacial bajo el techo inclinado y entre los volúmenes sueltos proporcionan un paisaje dinámico e interiorizado que habla con el natural.
La presión del techo mantiene un espacio reconfortante, como un capullo en los dormitorios, pero cede en el pasillo superior cuando el piso cambia a acero perforado y se abre a la sala de estar y al lago de abajo. La escalera abierta se extiende verticalmente en un abismo que conecta con un grupo de pinos imponentes más allá. La cubierta exterior llega hacia el dosel arbolado, así como hacia la sala de estar interior.
Los materiales ocasionalmente dan paso a momentos poco convencionales de comprensión, como la pasarela de metal perforado que se extiende al exterior como un balcón, lo que aumenta la sensación de elevación al estar "por encima" del sitio. A lo largo de cada día, la casa recibe y retiene la luz, reflejada desde el lago hacia las áreas de estar.
Los techos de madera y los espacios interiores están iluminados con luz moteada, que cambia constantemente con el clima, el tiempo y la estación. El cuerpo y los sentidos están involucrados en toda la cabina y el sitio en una narración sobre el tiempo y el lugar de uno en este idilio junto al lago, brindando un respiro tranquilo de la vida urbana.
项目完工照片 | Finished Photos
设计师:Murdough Design Architects
分类:Casas
语言:西班牙语
客服
消息
收藏
下载
最近

























