查看完整案例

收藏

下载
梅拉诺专业酒店管理学院的教学楼扩建设计赢得了欧洲范围内的规划设计竞赛。学院建筑又称“萨沃伊”楼,坐落在一片具有重要历史意义的城区,被列入保护名单的主教学楼作为该区域的特色建筑,拥有典型的新艺术派的折线屋顶、令人舒适的绿地公园以及帕瑟河沿岸的带顶步道。
▼新增建筑外观
旧教学楼始建于1895年,最初是一间家庭旅馆,1900年改为酒店。后来建筑转为国家所有,成为一间酒店管理学院。建筑师的任务是对错综复杂的旧建筑进行扩建,并与之分享同一个不甚宽敞的场地。项目的挑战在于构建一个形式简单的体量,并使其与“萨沃伊”大楼稍稍偏离。
▼建筑近景
新旧建筑之间只有一个可见的联系,即位于三层的轻盈且透明的廊桥。倾斜的立面是对周围复折式屋顶的一种现代化重释,将建筑从城市肌理中跳脱出来。漫步于建筑周围,倾斜的表面和富于变化的光照角度为其带来形式上的微妙变化。向顶部逐渐缩减的形状使建筑体量看上去比实际更小,并且能够将更多自然光引入室内,同时拓宽了新旧建筑之间的狭窄空间。旧萨沃伊楼的独特立面也因此免于受到任何视线上的干扰。
▼两座建筑仅靠一条廊桥相连
▼廊桥内部
在新建筑的低层,立面微微向外倾斜,通向地下停车场的入口处理较为细致谨慎,主入口周围的空间则宽敞而开放。为了增强区域的整体性,场地中将不再有车辆通行,目前作为停车场的中庭也将被改造为公园。建筑的外壳是由现场浇筑的混凝土构成的单块表面,拥有颗粒状的纹理。
▼下方的立面微微向外倾斜
建筑的城市特征同样反映在其开放、透明、具有流动感的室内空间中。轻质的墙面、走廊和中庭使各楼层的教室、厨房课堂以及餐厅在视觉上形成关联。屋顶的设计和材料使用使其成为建筑的第五个立面。
▼开放、透明、流动的室内空间
▼厨房课堂
▼室内空间
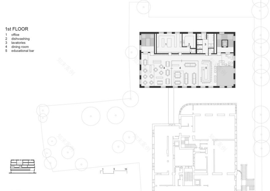
▼首层平面图
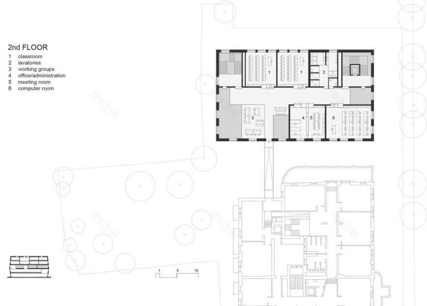
▼二层平面图
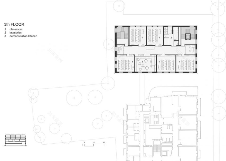
▼三层平面图
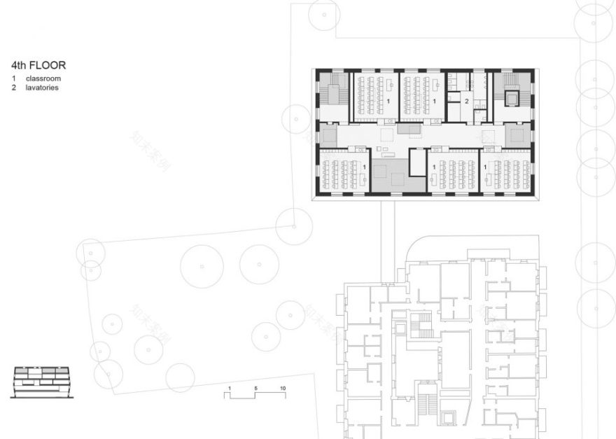
▼四层平面图
▼五层平面图
客服
消息
收藏
下载
最近




















