查看完整案例

收藏

下载

翻译
---
Nueva sede de oficina FB INGENIERÍA Y ESTRUCTURAS S.A.S.
Estilo: industrial
Tipo: Diseño interior y planos de carpintería
Ubicación: Cali, Colombia
Año de proyecto: 2024
Rol: Diseño de espacios y carpintería, modelado 3d, visualización.
Programas utilizados: Revit, D5
Preámbulo:
El diseño de este proyecto se enfocó en lograr la mayor optimización del espacio posible para acomodar una zona de contaduría, espacio de trabajo auxiliar y una sala de juntas, teniendo en cuenta los muebles existentes de la anterior oficina y agregando nuevos. Tanto espacios como muebles precisaban de ser pensados al detalle según la actividad requerida y desde un estilo acorde a la marca, enfocada al diseño y construcción de estructuras metálicas.
--- Contaduría ---
--- Auxiliar ---
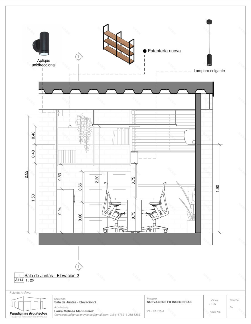
--- Sala de juntas ---
Gracias!
客服
消息
收藏
下载
最近

















