查看完整案例

收藏

下载

翻译
Architects:KSOUL Studio
Area:149m²
Year:2024
Photographs:Phu Dao
Manufacturers:CONPA,Dulux,EUROTO,MaiKa
Design Team:Huỳnh Thế Nguyễn, Hoàng Gia Bảo, Trần Quốc Sĩ
Project Management:Trần Thảo Linh
Concept:Huỳnh Thế Nguyễn
Clients:JUICETIN
City:Ho Chi Minh City
Country:Vietnam
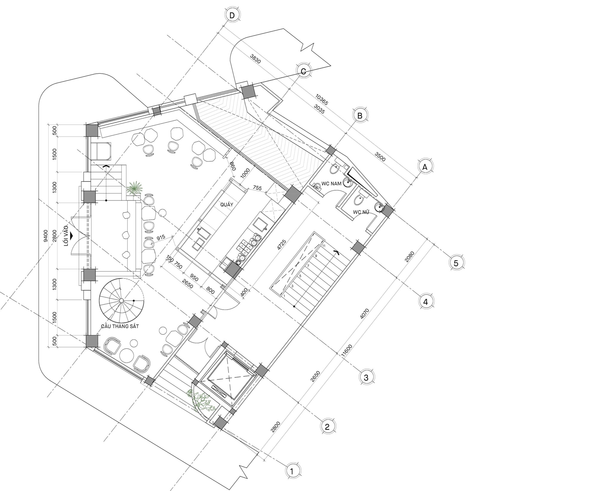
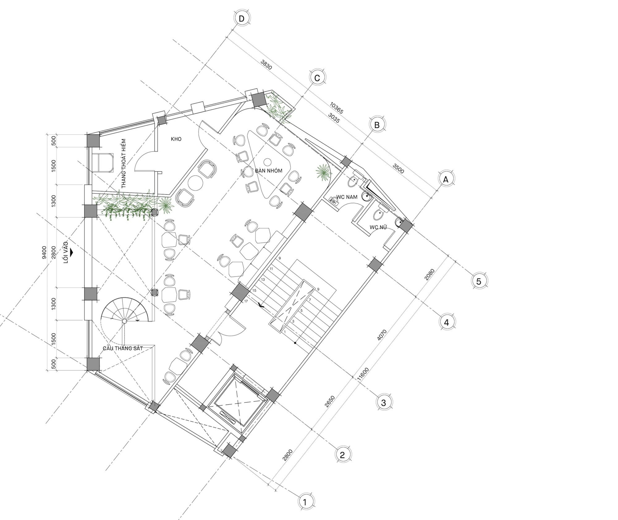
Text description provided by the architects. Located on Ngo Gia Tu Street, Juicetin is designed in an industrial style inspired by old post offices. From the prominent red mailboxes to the distinctive architectural details, every corner of the British post office is recreated with elegance and vibrancy. Stepping in here, customers enjoy their drinks and feel like they are traveling back in time to the nostalgic old days.
To make a strong impression on Juicetin from first glance, Ksoul boldly uses rust-colored effect paint to construct a square block for the facade, which is also connected to the overall office building above. Of course, we cannot ignore the image of the large clock right at the main facade, paired with awnings that exude the romantic British spirit.
You will also be amazed by the door made entirely from a large tempered glass panel framed with oak wood, capable of rotating 360 degrees. Additionally, each material placed in the store, such as vintage-style tiles, terrazzo stone, mosaic tiles, or the counter system with striped effect designs, is deliberately calculated to create a space that breathes the essence of old British post offices. The descriptions of the writing desk with waiting benches and the newspaper display shelves also emphasize the concept Ksoul has dedicated to this project.
With the increasing demand for architectural aesthetics in the F&B industry nowadays, Ksoul continually strives to understand the market and puts all its heart into addressing customer concerns with meticulous and unique constructions, creating a significant impact. Once again, this is how Ksoul operates and maintains the trust of all customers who come to us.
Project gallery
Project location
Address:Ho Chi Minh City, Vietnam
客服
消息
收藏
下载
最近

































