查看完整案例

收藏

下载

翻译
Architects:Pablo Senmartin
Area:250m²
Year:2024
Photographs:Andrés Dominguez,Federico Cairoli
Lead Architects:Pablo Senmartin
Design Team:Laura García, Matías Museta, Sol fuentes, Diego Soria, Milagros Suarez, Federico Miralles, Matías Lombardi, Ximena Cataño, Sabrina Roja.
Engineering:Enrique Senmartin
City:Villa Parque Síquiman
Country:Argentina
Text description provided by the architects. What happens if, instead of focusing on the form as a solid, as a construction and physicality, attention is placed on the gap, on the form of the void that matter itself leaves free? Absence gives meaning to presence …By working on the sensation of being there, the aim is to directly give the viewer the option to continue and partially complete the void left by the apparent absence with their own human presence.
Casa Solar is a commission for a family that chose to live in an environment of high natural and landscape value. The house has an area of 250m2 and is located in Villa Parque Siquiman on a plot of 1850m2. The land consists of a natural ravine, 10m deep, which acts as a drain for the entire surrounding area, channeling rainwater towards Lake San Roque. The soil is rocky and interspersed with bushes and abundant mountain forests, which absorb part of the water that passes through the place. From the street, the views towards the Lake are very wide and change depending on the time of day and year.
We are in a context in which cities are growing, expanding across the land that surrounds them, a world increasingly concerned about the future we are forging, generating permanent tensions, responses, and exchanges between architecture and nature. The need arises for project research to intervene in these sites with a low environmental impact, where simplicity, austerity, and sensitivity forge an architecture that is integrally sustainable. The project is based on the Leed v4 certification criteria, highlighting all the natural resources and materials available on the site and interacting with them in decision-making.
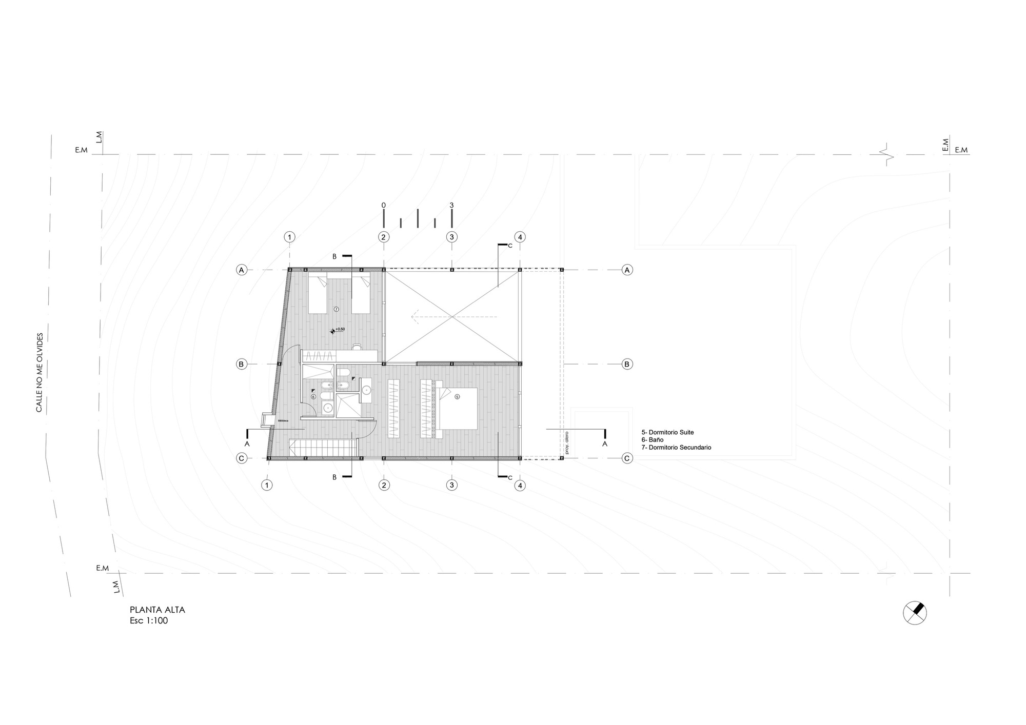
Natural resources and project - The house is positioned in the depth of the ravine, using the cavity to support the house and reduce its visual impact from the street, as well as to protect it. The existing humidity is used as a buffer of temperature difference; the forest vegetation acts as a double protective façade from the sun and wind; the visuals participate in the spaces of the house through reflections, different levels of games of light and shadows, Solar energy is used in a controlled manner through a mobile roof, and the adjacent house emerges as a complementary element of the whole. Floating inclined box - A structural box of steel profiles leans with the cover accompanying the slope towards the lake, floating over the ravine and over the water of the pools.
The structure of modulation of 4.50m x 4.50m in plan forms a total extension of 12.00 x 9.00m and 6.00 in height to contain a social and rest area. The steel box allows a 3m cantilever towards the park, so the house seems to be in the air when seen from below, resting its columns on the existing rocks and on reinforced concrete partitions that form a transitional basement that contains the swimming pools and technical areas.
Climate, temperature, full and empty - The house is structured from an empty space of 4.50m x 9.00m, mobile, changing, and it is through this absence that a reflection is sought on the relationship between architecture and nature typical of our time. The empty space, missing from a solid volume, is expressed as a space of the possible, a lock that, when opened and closed, controls the sunlight, the climate, the use, and the interior spatial conditions of the house. This intermediate and interstitial space highlights the environmental and visual relationships with the natural environment, creating a structure that evolves with life, with humanity, and with architecture. The vacuum incorporates time and contemporary energy of sustainable thinking by adding to the fluid and moving space-time in a simple but significant way the energetic and thermal control of the interior spatiality creating diverse atmospheres.
The possibility of the cover being closed by a motor that is activated according to the temperature, completely at times of full solar incidence, and of graduating according to the solar radiation necessary for interior conditioning, both in winter (necessary sunshine) and in summer (controlled sunshine) produce a novel fact where the qualities of the interior and exterior space change according to the amount of solar energy necessary to produce comfort and energy savings.
Water cycle and health - Concern for the water resource, which is scarce most of the year, and respect for the natural drainage existing in the ravine are contemplated, locating the house elevated from the ground, allowing free runoff and permeability, nourishing layers, and the existing vegetation cover. The pools located below are filled with rainwater from the sloping roof and, being integrated into the house, provide humidity and heat in winter and freshness in summer, as well as offering the possibility of a shaded swim in summer for skin care since direct solar radiation is controlled. Finally, gray water is treated with a biodigester and reused for irrigation of the orchard and forest.
Local materials and resources - The decision to use simple, locally produced, low-cost materials leads to few materials that are easy to transport, lightweight, and easy to assemble. Towards the street, the house appears introverted, blind, and austere to the south and west, with a vertical exterior envelope produced with fiber cement plates colored in dark wood like the forest, of different thicknesses and widths, interspersed, which reduces the impact—the visual appearance of the block, along with the surrounding reflections that are produced by the satin finish. Only a rectangular outward opening containing a bookcase breaks the block. Inside, tongue-and-groove elliotis pine wood is used for cladding, which is framed and ordered through the profiles of the exposed steel structure. This main structure is resolved with reused demolition steel profiles.
Project gallery
客服
消息
收藏
下载
最近








































































