查看完整案例

收藏

下载
面向室外的大窗户提供了充足的阳光,宽敞的公共区域由暖色的持续性的材料例如砖块和木材构成。Nouvelle-Ère 中学的设计提供了与自然环境的有效连接,并且创造了一个激励人心的环境,促进学生的学习、创造性、身心健康和学术上的成功。
With large openings to the exterior that provide an abundance of natural light, and generous public spaces designed with warm, sustainable materials like brick and wood, École secondaire de la Nouvelle-Ère offers a strong connection to its natural surroundings and creates an inspiring environment conducive to learning, creativity, well-being, and academic success.
▼项目概览,over view of the project©Nanne Springer
建筑的总图呈 L 形,面向邻近的森林区域。沿街分布有三层的主楼和两层的供运动的侧翼,一直延伸到场地的后方。主楼的功能环绕着中央的聚集地区分布——这里也是机构最有活力的所在——一个大型的双层高的带有舞台的中庭。该空间内设有一标志性的楼梯,夹层还设有开放的走廊,通往教室,图书馆和屋顶露台。也通往后方的庭院,创造了一个和室外连续的自然的露天剧院。
▼总平面,site plan©Jodoin Lamarre Pratte architectes +BBBL Architects
Arranged in an L-shaped plan that opens onto an adjacent wooded area, the building comprises a three-storey main pavilion along the street and a two-storey wing for sports, extending toward the site’s back. The programs of the main pavilion are anchored by a central gathering area—the liveliest part of the institution—which is a large, double-height atrium equipped with a stage. The space is framed by a monumental staircase and an open corridor on the mezzanine, which leads to classrooms, the library, and the roof terrace. It also opens onto the rear courtyard, creating a natural amphitheater continuous with the exterior.
▼建筑外观,building exterior©Nanne Springer
环境和功能
Context and program
Nouvelle-Ère 中学是为 Portages-de-l’Outaouais 学校服务中心设计的,以应对 Gatineau Aylmer 地区强劲的人口增长。新学校坐落在 Aylmer 路和 Fraser 路(原 Duchesnay 路)的交汇处,其前身是一个高尔夫球场,该球场还被指定用于住宅开发项目。
École secondaire de la Nouvelle-Ère was designed for the Centre de services scolaires des Portages-de-l’Outaouais in response to strong demographic growth in Gatineau’s Aylmer region. Located at the corner of Chemin d’Aylmer and Chemin Fraser (formerly Duchesnay), the new school sits on a former golf course that is also earmarked to accommodate a residential development project.
▼周围环境,context©Nanne Springer
教学设施内设有 27 间常规和特殊教室,其中包括 4 间专门为自闭症儿童设计的教室,另有历史教室、电脑和机器人教室、科学和技术教室。另外还设有六间实验室、一间音乐教室、两间大型艺术教室。除了图书馆,其他的非教学设施包括食堂、双层高的体育馆、训练室和舞蹈房、淋浴间、储物柜和一个无性别浴室,以及教师区域、管理区域和技术支持设施。
▼轴测图,axonometric©Jodoin Lamarre Pratte architectes +BBBL Architects
The teaching facilities are comprised of twenty-seven regular and specialized classrooms, which include four spaces for students with autism spectrum disorders (ASD); classrooms for history, computers and robotics, the labour market, and science and technology; as well as six laboratories, a music room, and two large art studios. Aside from the library, the other non-teaching facilities are food services, a double gymnasium, a training room and dance hall, showers, locker rooms, a gender-neutral washroom, and areas for teaching staff, administration, and technical and support facilities.
▼中庭,atrium©Nanne Springer
▼标志性的楼梯,symbolic staircase©Nanne Springer
学校的场地对于室外体育活动来说太过于狭小。因此建筑周围的部分消防通道被用来安装跑道。为了鼓励可持续性的通勤方式,在学校的南侧还设有遮蔽的自行车停车场。
While the site of the school was too small to accommodate outdoor sports facilities, it was possible to use part of the access road for firefighters surrounding the building to install running tracks. To encourage sustainable mobility, a covered area for bicycle parking was also included just south of the school.
▼走廊,corridor©Nanne Springer
建筑体验
Architectural experience
从位于 Fraser 路上的主入口进入,一个宽敞的接待区将一层分成两个部分:一侧是储物柜和运动设施,另一侧是中庭。
From the main entrance on Fraser Road, a large reception area divides the ground floor into two sections: lockers and sports facilities on one side, and the atrium on the other.
▼宽敞的多功能中庭,generous, multi-purpose atrium©Nanne Springer
类似于一个广场,中庭是一处宽敞的、多功能的、充满光照的聚集地带,低层设有座位区域,外围的坡道俨然如看台。在二层,两栋楼之间的过渡地带设有景观屋顶,为教室和图书馆提供了令人愉悦的景象。图书馆可以俯瞰中庭,并且学生和老师都可以从这里通往屋顶露台。
▼剖面图,section©Jodoin Lamarre Pratte architectes +BBBL Architects
Resembling an agora, the atrium is a generous, multi-purpose, light-filled gathering space with a lowered floor that creates seating and a ramp at its perimeter, akin to bleachers. On the second floor, a green roof has been installed at the junction of the two pavilions to provide a pleasant view from classrooms and the library. The library overlooks the atrium and has access to a roof terrace for the use of students and teachers.
▼走廊区域,corridor area©Nanne Springer
▼楼梯间,staircase©Nanne Springer
为了可以随时监控储物空间的使用,通过接待大厅内部精心设计的圆形窗户,走廊的一切都清晰可见,同时玻璃的外观也向室外空间打开。体育馆有单独的入口,因此社区可以在非学校时间享用体育设施。为了确保无障碍通道和通行,采取了大量的设计策略,例如建筑的所有入口都设在一层。
To allow regular surveillance of the locker space, its aisles are always visible through round windows cleverly positioned within the interior of the reception hall, and through a glass façade open to the exterior. The gymnasium has a separate entrance so that the community can benefit from the sports facility outside of school hours. Every measure was taken to ensure universal accessibility and obstacle-free routes, with all entrances to the building being at ground level.
▼精心设计的圆形窗户,round windows©Nanne Springer
▼体育馆,gym©Nanne Springer
设计手法 Design approach
L 形布局选择的目的是最大化的体现自然景观,同时将学校的主要功能集中到一个占据沿街面的主体建筑中。为了避免因狭长的标准宽度的走廊带来的隧道效应,教室分布在宽阔的人行空间两侧,两端装有玻璃窗,确保了流畅高效的流通。这种简单的组织方式提供了很高的能见度,增强了使用者的安全感。
The choice of an L-shaped layout was driven by the intent to maximize views of the natural landscape, while grouping the school’s main functions into a single pavilion occupying nearly the entirety of the site’s street frontage. To avoid the tunnel effect common to long, standard-width corridors, the classrooms were distributed on either side of a wide circulation space with glazing at the ends, ensuring fluid and efficient movement. This simple organization offers high visibility, reinforcing the sense of security for users.
▼装有玻璃窗的教室,classroom installed with glazing©Nanne Springer
建筑体量紧凑密集,但同时又需要满足功能的需求,因此建筑师十分关注景观屋顶、屋顶露台和外立面的设计,来确保建筑有吸引人的特征和整体性,并成为街道上亮眼的存在。精心挑选的一系列砖块——黄色、米色、赭石色以及大地色系——和夜晚透过窗户往外看到的外露木材相辅相成,和白天的白色铝制面板一起,创造出一种明亮、吸引人的色调。体育馆外立面的穿孔板面向停车场和内部的庭院,因而体育活动不会被过路的学生或者过于刺眼的阳光打扰。
Given that a dense, compact volume was required to meet the program, great attention was paid to the green roof, roof terrace, and exterior envelope to ensure the volume would have a welcoming character, a strong presence on the street, and coherence. The carefully selected blend of bricks—in yellow, beige, ochre, and earth tones—harmonizes with the exposed wood at night when visible through the large windows, and with the white aluminum panels during the day, creating a bright, inviting chromatic palette. Perforated panels cover the gymnasium windows facing the parking lot and inner courtyard so that activities are not disrupted by passing students or excessive light.
▼外立面设计,facade design©Nanne Springer
▼体育馆外立面的穿孔板,Perforated panels cover the gymnasium©Nanne Springer
我从未期望过一个屋顶露台,因此我认为这将整个项目提升到了另一个高度。它不仅是一所美丽的学校——这是显而易见的,每个人都同意——而且它将满足一种需求,比方说,一种显而易见的需求之外,这些美丽的空间所产生的不仅仅是人们的惊叹。它们激发了人们的创造力,积极性和去学习的欲望。不管你是学校里的一名学生,还是在你的专业工作的成年人,美丽的环境总是让你想要全力以赴。
“I couldn’t have hoped for a roof terrace, so I think it’s really next level. Beyond the fact that it’s a beautiful school—it’s evident, everyone agrees—and that it will meet a need that was, let’s say, glaring, these beautiful spaces generate something other than just awe,” says Mathieu Lacombe, Minister responsible for the Outaouais region. “They inspire creativity, productivity, and a desire to excel. Whether you are a youth at school, or an adult working in your profession, beautiful places make you want to give 110 percent.”
▼屋顶露台,roof terrace©Nanne Springer
关于艺术品
艺术品的第一部分——三个墙壁装置元素,总长 1.19 米,由喷漆铝板构成,这让人联想到入口处的圆窗,它以地质构造来隐喻学习的过程。墙面的元素是地层的集合,代表着不同的学术课程,颜色选取同样来自于学校。
当你走进这个巨大的中庭,你会遇见艺术作品的第二部分——墙壁上的大型铝制浮雕,总长约 5.34 米,表面有抛光的镜面面层。艺术品受双摆运动的启发,这一运动一般代表着混乱的状态,作品的一部分让人联想到多种途径的可能性。
The first part of the work—three wall elements, 1.19 metres in diameter and made of painted aluminum, reminiscent of the round windows marking the entrance—evokes geological formation as a metaphor for the process of learning. The wall elements are composed of strata that represent different academic subjects, and the colours used are those of the school.
As you walk toward the large atrium, you encounter the second part of the work – a large aluminium relief work on the wall, measuring 5.34 metres in diameter and with a polished, mirrored finish. Inspired by the motion of a double pendulum, which is usually chaotic, this part of the work evokes the possibility of multiple pathways.
▼艺术装置,art installation©Nanne Springer
(艺术品)因而建立了一种和学生的学习之路之间的联系,通过努力与坚持,他们也会定义自己的未来之路。每一段旅程都是独特的。虽然我们在某些时刻面临失败,我们必须在失败中振作起来,并通过无数的道路通往我们想要去的地方,去学习…
A connection is thus established with the pathways of the students, who, with a little effort and perseverance, will define their own route,Every journey is unique. Although we must sometimes fail, we must get caught up in the game and use many routes to get to where we want to be, to learn…—— artist Patrick Bérubé.▼夜景,night view©Nanne Springer
▼夜景,night view©Nanne Springer
▼一层平面,ground floor plan©Jodoin Lamarre Pratte architectes +BBBL Architects
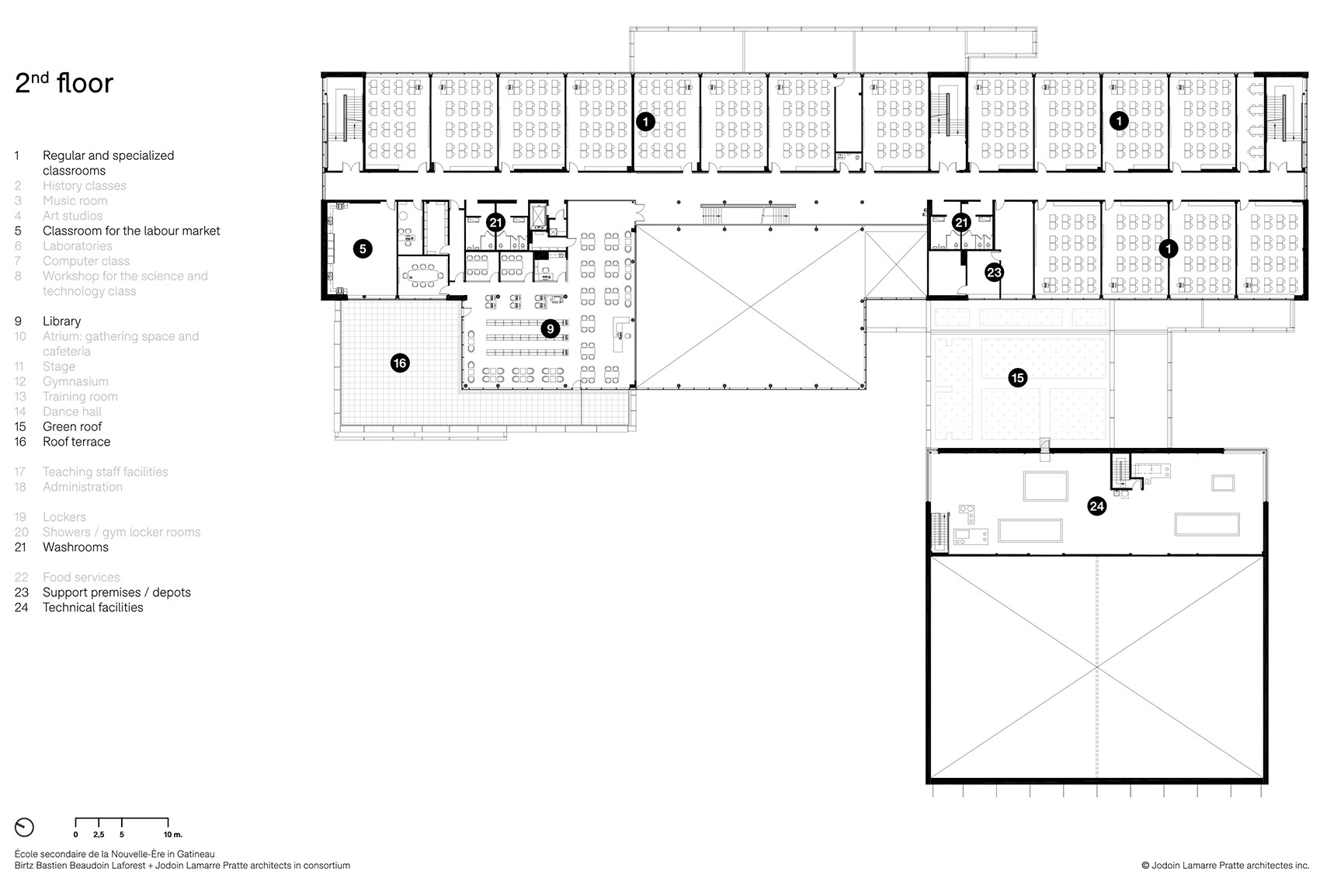
▼二层平面,second floor plan©Jodoin Lamarre Pratte architectes +BBBL Architects
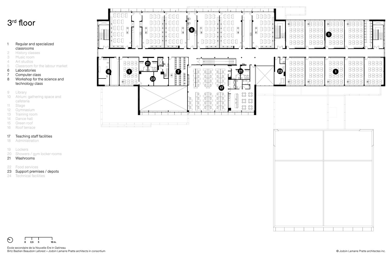
▼三层平面,third floor plan©Jodoin Lamarre Pratte architectes +BBBL Architects
Client:Centre de services scolaire des Portages-de-l’Outaouais
Director of Material Resources:Touria Chraibi (2017-2020) and Éric Larochelle (2020-2023)
Project address:400, chemin Fraser, Gatineau, Québec, Canada J9J 4G1
Architects:Birtz Bastien Beaudoin Laforest + Jodoin Lamarre Pratte architects in consortium
Project Manager:Clément Bastien, Architect (BBBL)
Lead designer:Robert Sindon, Architect, Director (JLPa)
Assistant designer:Marie-Michèle Larocque, Architect, Director (JLPa)
Key members of the design and execution teams:Hind Zyat, Architect (JLPa), Catherine Alexandre, Architect (BBBL), Rocio Carvajo Lucena, Architect (BBBL), Karima Chami, M. Arch., PMP (JLPa), Leila Abderrahman, Senior Architectural Technician (JLPa) and Denis Chouinard, Senior Architectural Technician (BBBL)
Site Supervisor:Georges Desfossés, Senior Architectural Technologist (BBBL)
Electromechanical engineers:WSP (Project Manager: François Patry, Engineer)
Structural and civil engineers:Les consultants Yves Auger et associés + Dumont groupe-conseil (Project Manager: Yves Auger, Engineer)
Landscape architects:Stantec (Project Manager: Louise St-Denis, Landscape Architect)
Building codes and standards:GLT+ (Advisor: Felipe Marin Betancur, Engineer)
Acoustic:WSP (Project Manager: Anne Boiret, Acoustic Professional)
Architectural Hardware:Groupe LMT (Technical Director: Philippe Chartier, Architectural Hardware Specialist)
General contractor:Boless (Project Manager: Mathieu Dumoulin, Engineer)
Design and construction timeline:2017-2023
Surface area:10,895 m²
Construction costs:CAD 37 million (including taxes)
Work of art:Patrick Bérubé, “Formation… ou comme un effet papillon”, 2021, painted and mirror-polished aluminum, 3 x Ø 1.19 m and Ø 5.34 m
Photo credits:Nanne Springer
客服
消息
收藏
下载
最近

































