查看完整案例

收藏

下载
这个项目有许多有趣的特点,其中之一就是土地的最高点(东面)和最低点(南面)都有通道,其余部分被树林包围。此外,在北侧,由于水流过斜坡导致土地被侵蚀,我们发现了一个非常适合房屋融入地形的空地。雨水总是和太阳一样存在,要想找到好的阳光,你必须爬上几乎半棵树。
Lore 和 Carlos 是出色的主人;当我们谈论他们对这所房子的想象时,他们总是会想起他们多么喜欢欢迎朋友来家里做客。这所房子必须成为一个让人们相聚的地方,一个许多人会聚集在不同空间的地方,这些空间可以变得相同。后来,他们在自己的房子里休息,在森林里休息。
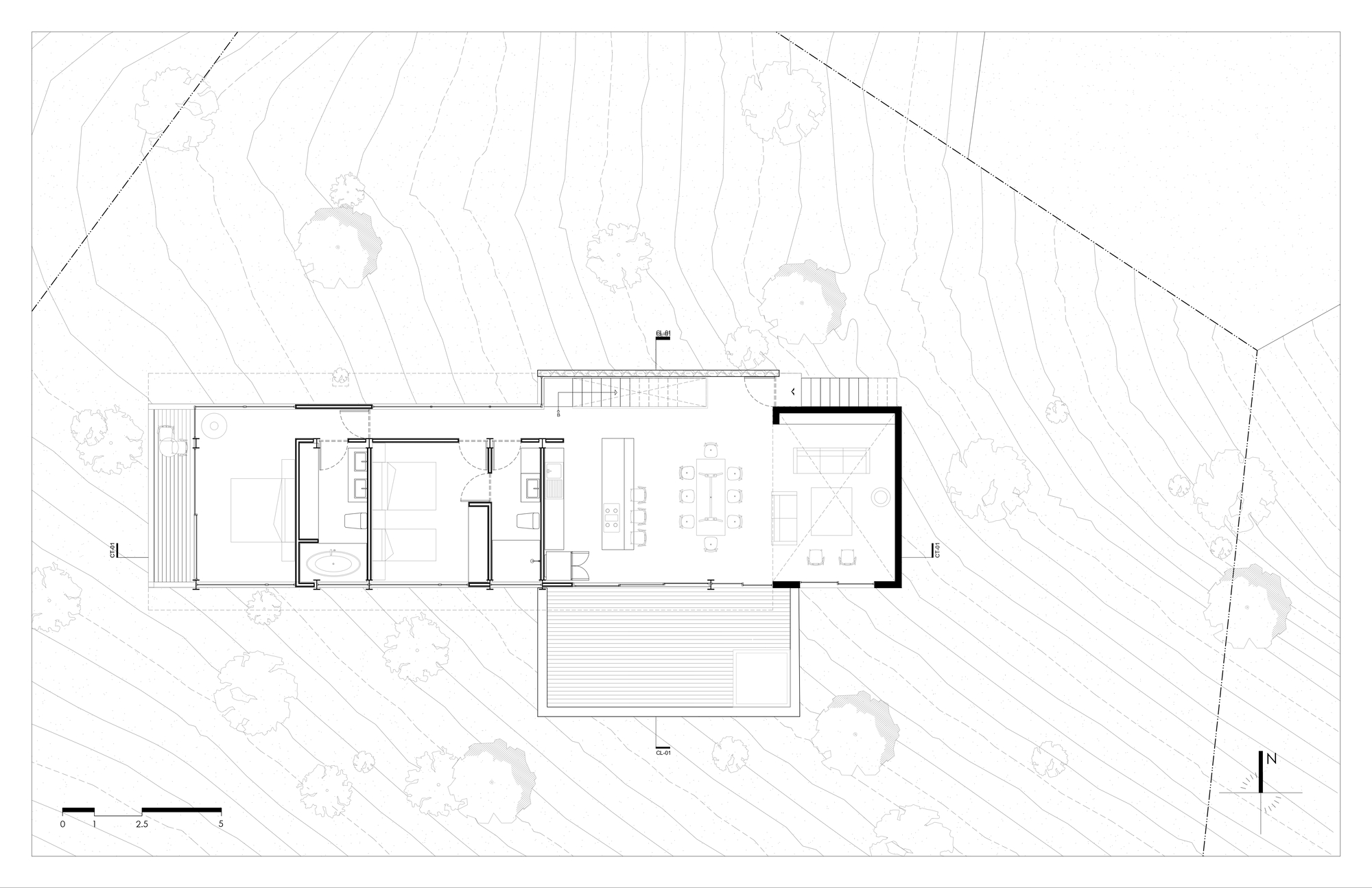
我们喜欢认为 Casa Oruç 在您漫步时会讲述这个故事。要踏入其中,您必须从土地的最高点开始,那里的房子完全被松树遮蔽。当您穿过一座桥时,您会到达一座塔楼,它遮蔽了客厅,但仍然看不见,周围有一组楼梯。一路上材料不断变化,有时会遇到黑色裸露的混凝土,有时会遇到凹槽混凝土块。
走下第一段楼梯后,外面的框架会提醒你,虽然你还没进去,但你已经进去了。下一个走廊会呈现给你一个倒置的双坡板,它漂浮在树林中,如果你继续往下走,一扇窗户会为你提供客厅的框架景观。最后,就在拐角处,你到达了主入口门。
进入室内,一片开阔的空间映入眼帘;在某个时刻,它会变成一间餐厅,然后很可能是厨房,但也可能是一个客厅。俯瞰南面的露台扩大了一切可能性。黑色的倒置双坡板向卧室延伸,刚过隔壁,你会发现自己站在一座 25 英尺深的悬臂式房屋上,这座房屋在树木之间寻求捕捉那高度内的每一缕阳光。
项目设计:saavedra arquitectos
项目面积: 2691 ft²
项目年份:2024
项目摄影:Onnis Luque
供应商: Big little ideas, Cappa, Chimeneas Esqueda, Gerdau Corsa, Interceramic, Quetzal
首席建筑师:Rodrigo Saavedra Pérez Salas, Gerardo Chacón, Ulises Contreras Legorreta, Misael Vargas
项目承包商: Gerardo Chacon
Structural Calcutation: Casas Guzik, Nina Casas Guzik, Rafael Reyes
Program: Recámara principal, dos recámaras secundarias. Cocina, Sala comedor, Sala de tele, Bar, terraza con comedor exterior. 3 Baños completos, cuarto de servicio/bodega.
Terrace项目面积:377 ft2
项目成市: Mineral del Monte
项目国家: Mexico
设计师:saavedra arquitectos
语言:英语
客服
消息
收藏
下载
最近





























