查看完整案例

收藏

下载
这栋位于巴西圣保罗帕卡恩布街区的房子是为夫妇设计的,旨在配置为与家人和朋友的聚会空间,并配备齐全的休闲和福利基础设施。
该项目位于两条街道之间,街道之间的坡度相差 7 米。通过楼梯和电梯连接楼层解决了地形坡度问题。这种地形条件使得该项目能够利用住宅和树木繁茂的街区景观作为项目布局的起点。
另一个优点是从街道上看时房屋的低调:尽管面积很大,但由于其位置和周围的景观(类似于原生森林),它看起来并不宏伟。
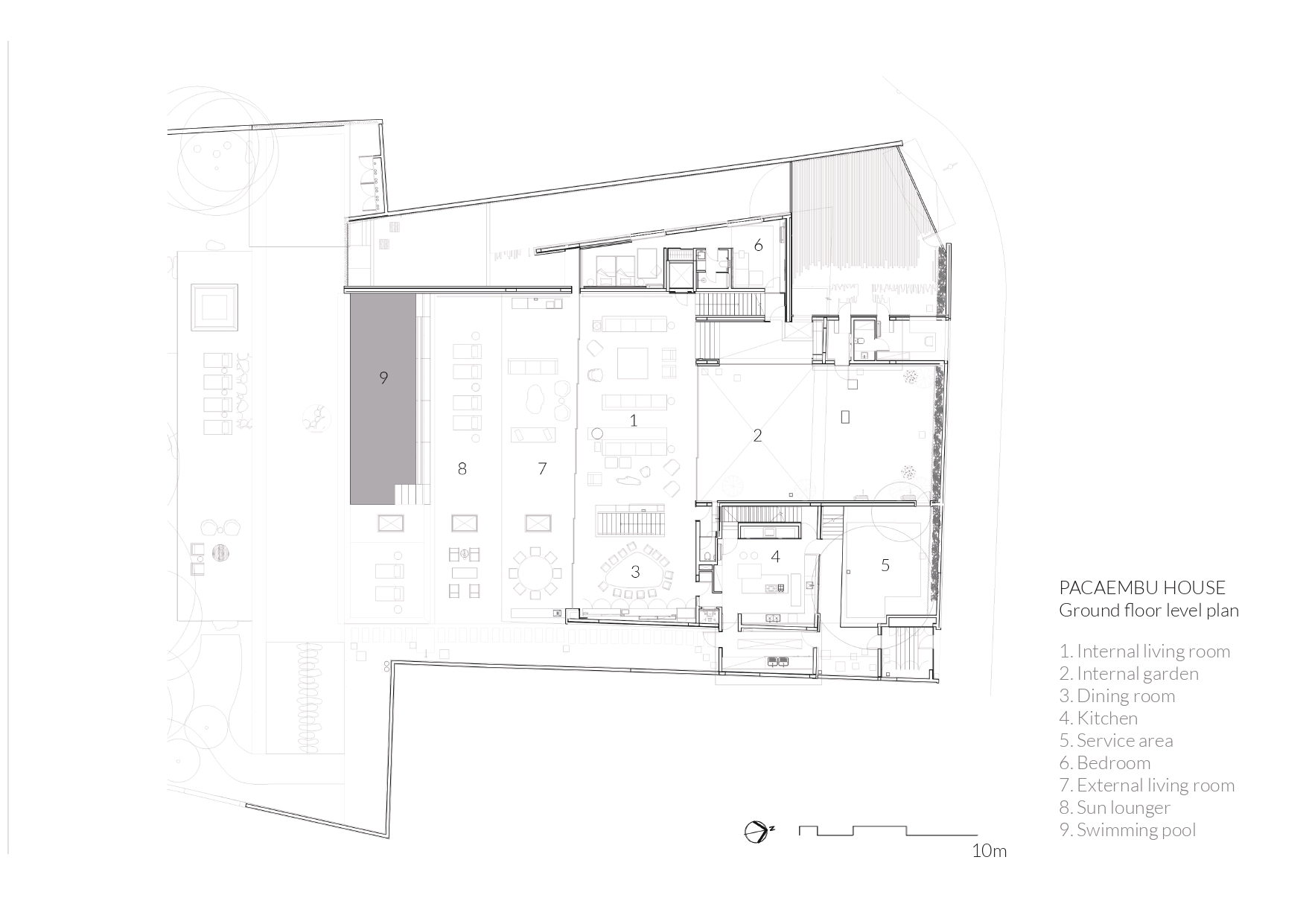
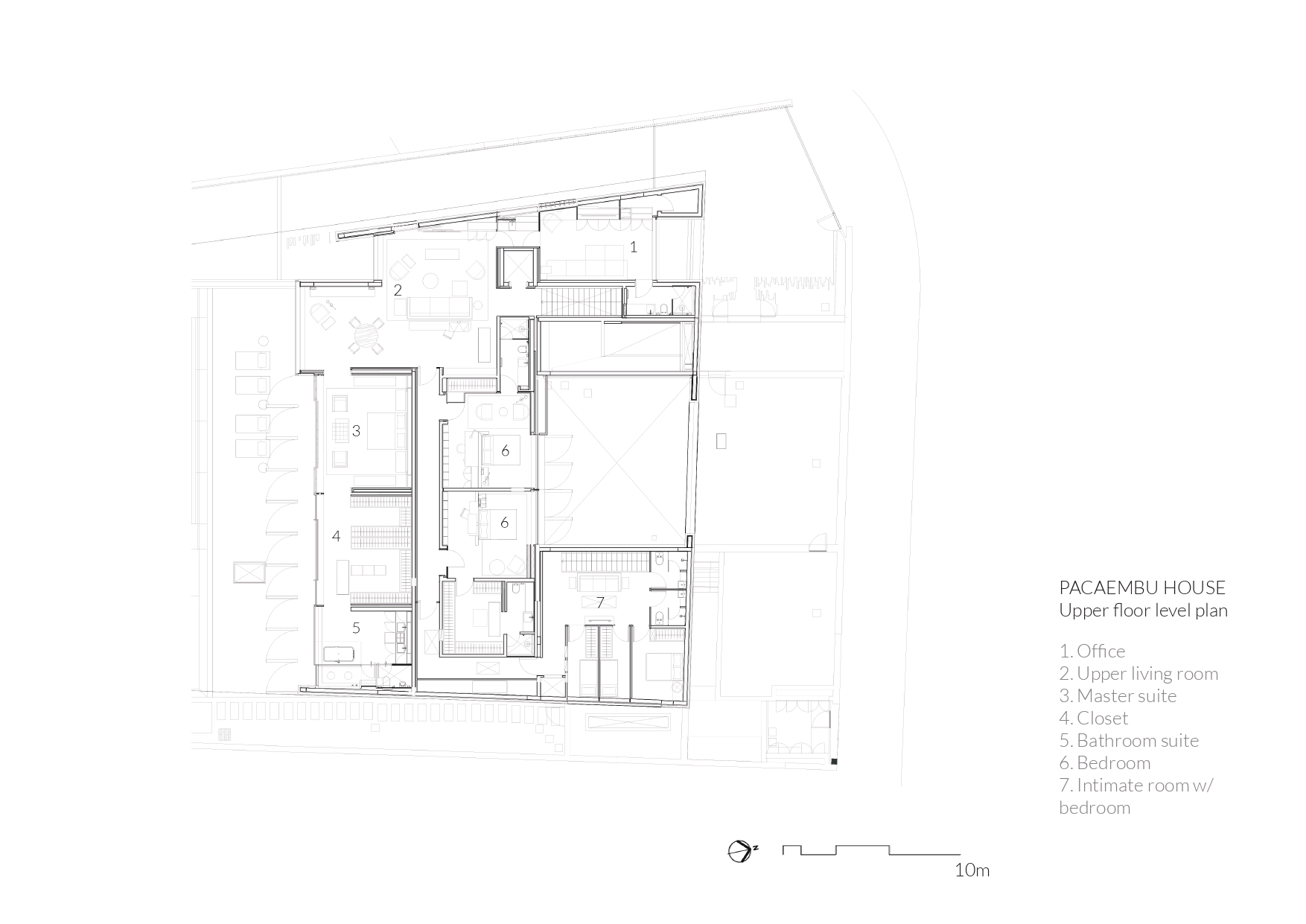
一楼设有客厅、餐厅、壁炉空间和雪茄储藏室——社交区域与带游泳池的阳台融为一体;下层设有美食区,与花园和养鱼的湖泊相连;上层设有卧室和一间私密卧室。
在游泳池区域,玻璃覆盖的照明平面构成了地板,透明地展示了地下发生的事情。那里,一条走廊被巨大的混凝土墙包围,用石头模制而成,通过精心布置的天窗获得自然光。可以通过位于起居和用餐区的楼梯进入,楼梯通向隧道,最终目的地是美食区和带湖的花园。在屋顶上,太阳能电池板放置在绿色屋顶旁边,考虑到项目的可持续性。
饰面和涂层采用中性色调,并带有沙色变化。现场混凝土和木材的组合是设计元素中脱颖而出的元素。立面和内部涂层上可见的巨石混凝土是用石头现场模制而成的,这是项目实施中的一项挑战,因为需要制作多个原型,直到最终达到理想的着色和石头的分配,然后逐一放置。就像水泥上的橡皮图章一样。
至于用于建造立面高架门的木材,由于悬垂较大,因此在建造过程中需要给予同等的重视,以保证混凝土正面的宽阔外观。
照明是间接的,力求在天花板上尽可能少地设置照明点,而自然光的入口则相当充足。光影游戏在双层高的入口处就很明显,天花板上一个巨大的斜角切口由于太阳光线的穿透而产生了一种场景效果。
室内设计项目得到了客户的大力支持和参与。它由色调与质朴的石材和木材饰面相似的元素组成,但以绿色和橙色大理石细节为标志。家具的材质组成包括天然亚麻布、皮革、绒面革、圈形棉布和羊毛——所有这些都是较为朴素的色调,而一些天然石材的亮点是赤土色调,一些是深绿色调。
家具的选择融合了复古元素,例如 Sergio Rodrigues 设计的一对 Tonico 扶手椅,以及 Arthur Casas 设计的现代元素,例如 Fusca 沙发和 Copacabana 餐柜。此外,还融入了建筑师设计的其他家具,例如 Tiles 咖啡桌、Pistão 边桌、Jet Set 扶手椅、Max 餐椅、Pan Am 沙发、Ettore 边桌、Grampo 灯、带导演椅的 Jaky 桌子和 Lurdes 书桌。Casas 还专门为该项目设计了一对床头柜,以及灯具和其他物品。
项目设计:Studio Arthur Casas
项目面积: 15791 ft²
项目年份:2023
项目摄影:Fernando Guerra | FG+SG
供应商: AllForm, Amazonas Pedras, Arali, Braston, Core BR, Enjoy House, Madecor, Marupá, Marvelar, Ornare, Pagliotto, Punto, Stone, Tecnosystem, Tresuno, Uniflex Cidade Jardim, Vallvé, Vidros Queiroz, augusto moreno
首席设计师:Arthur Casas
Co Author And Architecture Manager: Nara Telles
Co Author And Decoration Manager: Rafael Palombo
Decoration Coordinator: Fabiola Andrade
Interiors And Architecture: Ligia Damin
合作者: Nicholas Theo, Eduardo Mikowski, Fernanda Altemari, Augusto Mattos, Amanda Tamburus, Ana Maria Pedreschi, Beatriz Camasmie
3 D Team: Amanda Tamburus, Ana Maria Pedreschi, Augusto Godoi
项目承包商: MFC Construtora
项目顾问: LogiProject, Davila, Gilberto Floriano, Zamaro, Gabriel Regino, Aluizio Davila, Fitplan, MG&A, Gaia, OmStudio, Orsini, Fulltech, Wellness Collection
Dates: 2020 - 2023
Plot项目面积:26145.54 ft2
项目成市: São Paulo
项目国家: Brazil
设计师:Studio Arthur Casas
语言:英语
客服
消息
收藏
下载
最近










































