查看完整案例

收藏

下载

翻译
Architects:TETRO Arquitetura
Year:2024
Photographs:Joana França
Manufacturers:Cosentino,Bontempo,CLW,Continente Inox,I9 climatização,Jardim e Cia,LR Coelho,Lfs soluções metálicas,Lohn Esquadrias,MG Superfícies,Nardi Piscina,Terraço Paisagismo
Leading Architect:Carlos Maia, Débora Mendes e Igor Macedo
Other Participants:Bruno Bontempo, Bianca Carvalho, Bruna Maciel, Saulo Saraiva, Sabrina Freitas,
Structural:MV estruturas
Electrical And Plumbing:CA engenharia
Lighting Consultants:Allume
Landscape:Jardim e Cia; Terraço Paisagismo
City:Florianópolis
Country:Brazil
Text description provided by the architects. Florianópolis is an island on Brazil's southern coast, where nature manifests itself in a stunning display, particularly through the sea and mountains. Its beaches, with crystal-clear waters and white sands, stand out from others in the country due to the striking presence of rocks in the middle of the sea. The island, situated about 800 meters from the mainland, is connected to it by three bridges, the most iconic being the Hercílio Luz Bridge, a symbol of Florianópolis since its construction.
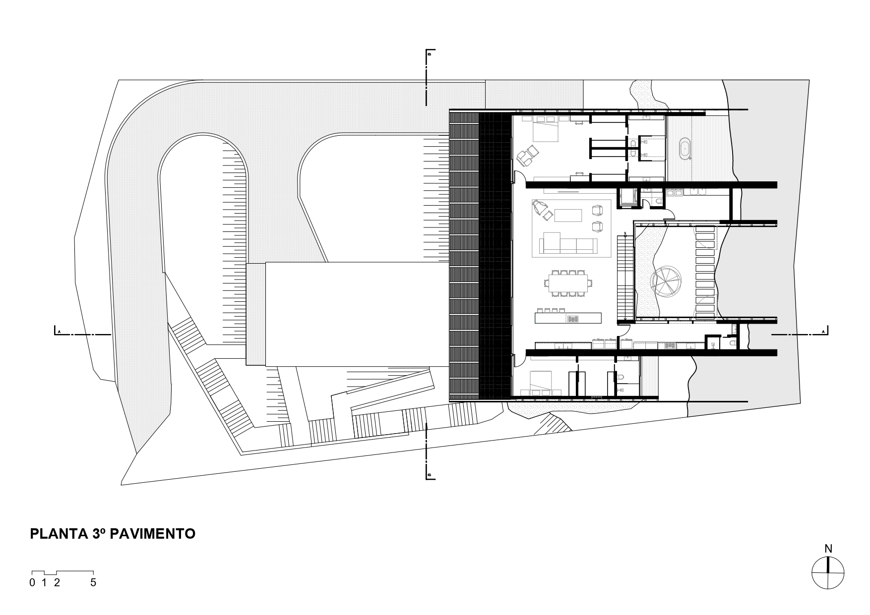
Amidst this scenery, perched on a seaside slope and facing the continental mountains, emerges Casa Ponte, with a design that sensitively responds to its environment, standing out as an architectural expression that transcends the residential function. Located on the shores of the Cacupé Sea, this residence harmoniously integrates with its surroundings, drawing inspiration from nature and local features for its design: the bridge and the rocks in the water become the main inspirations.
The approach to managing solar incidence, through generous eaves structured in steel, highlights the pursuit of efficiency and aesthetics. This solution not only meets practical demands by minimizing the effects of the setting sun but also subtly pays homage to the Hercílio Luz Bridge through steel and perforated plates, similar to those used on the bridge’s deck and the house's balconies.
The house's main structure can be described as two beams that emerge from the terrain and rest on two pillars. The bedrooms and social areas are developed around these beams. The pool, suspended above two other bedrooms, extends towards the sea on the lower level. Inside, natural stones emerge, referencing the local nature.
The carefully planned alignment of Casa Ponte towards the west offers a privileged view of the continental sea and the majestic mountains of the Serra Catarinense. This positioning takes advantage of the region's scenic beauty and creates a unique atmosphere for the residents, who find themselves immersed in breathtaking panoramas that change throughout the day.
Project gallery
客服
消息
收藏
下载
最近









































