查看完整案例

收藏

下载

翻译
Architects:Buro Happold,X Architects
Area:2840m²
Year:2021
Photographs:Fernando Guerra | FG+SG
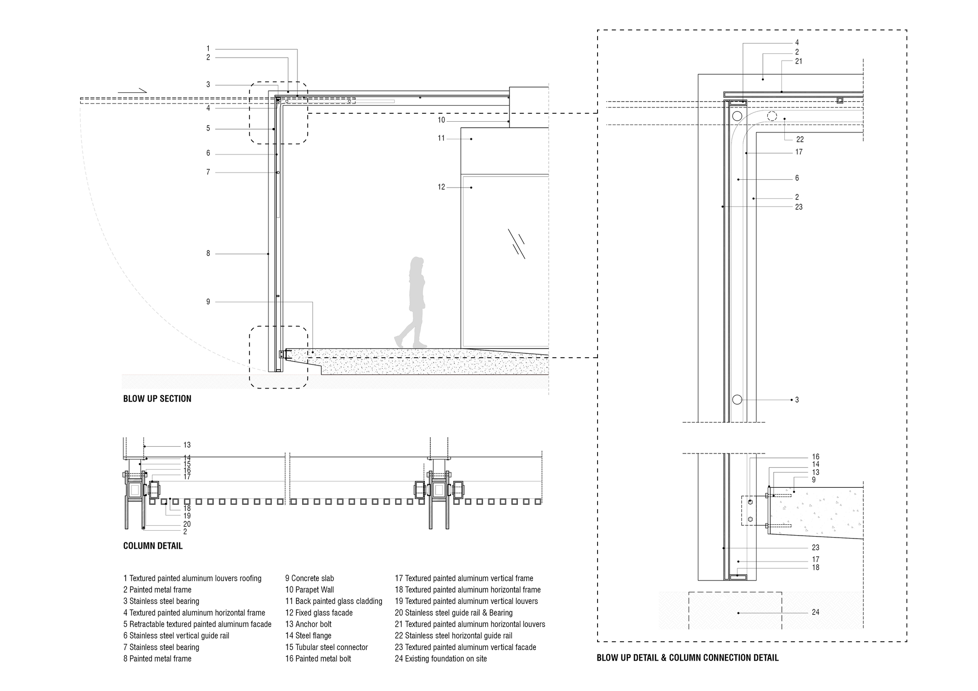
Manufacturers:Smartech Door Systems
Engineering Consultants:Buro Happold
Architect/Founder:Ahmed Al Ali, Farid Esmaeil
Design Director:Mohammad Abu Farha
Senior Architect:Marija Krsmanovic, Brian Walter Abarintos
Associate Architect:Sebestiano Baldan
Architects:Christian Geronimo, Emmerson Angeles, Nazis Khurshidkhan, Halla Al Fahmawi
Senior Visualizer:Arvin Padayo
Senior Site Architect:Islam Elsafany
Site Architect:Abdullah Bashir
Conservation Specialists & Authorship Of The Text:ARS Progetti
Program / Use / Building Function:Exhibition & Community Center, a historic house within the UNESCO World Heritage Site of Al Ain
Conservation:ARS Progetti
City:Al Ain
Country:United Arab Emirates
Al Ain – Oases & Aflaj - Bait Mohammed Bin Khalifa (BMBK) is a heritage conservation project to preserve and rehabilitate a major building in the context of the UAE’s recent history. BMBK is located in the city Al Ain, meaning literally the “Spring”, and part of the Emirate of Abu Dhabi. The location of Bait Mohammed Bin Khalifa is near the Mutaredh Oasis and its main falaj, in the city of Al Ain. As a component of the World Heritage Cultural Sites of Al Ain, the house offers valuable insights into the changing social, historical and architectural traditions of the nation during the 1950s and 1960s.
The presence of water made Al Ain an important site throughout history and contributed to the historic development of this area. The presence of oases helped structure the economic life and social organization of Al Ain in the past and this is why the majority of heritage sites in the emirate of Abu Dhabi are located within and around Al Ain. The continuous availability of water facilitated agricultural activities and permanent settlements.
Sheikh Mohammed Bin Khalifa – Family & History - Built in 1958, the House was home to Sheikh Mohammed bin Khalifa bin Zayed Al Nahyan (1909–79), the father-in-law of the late Sheikh Zayed bin Sultan Al Nahyan, Founding Father of the United Arab Emirates. It stood at the entrance of Al Ain and was among the first landmarks to greet travelers to the city from Abu Dhabi.
As the elder of the Al Nahyan family, the late Sheikh Mohammed bin Khalifa Al Nahyan was a discreet yet influential historical figure associated with important events in the history of Abu Dhabi and the United Arab Emirates. He was a central figure in Al Ain society and his house was at the heart of community gatherings. Bait Mohammed Bin Khalifa represents a significant component of a neighborhood with a unique cultural and historical background, symbolizing the community’s sense of place and identity. The layout and functions of the house reflect the traditional family structure, where public and private life, were strictly separated.
Transition Period – Pre-Oil Modernism - Bait Mohammed Bin Khalifa is a fine and rare example of an architecture typical of a short yet pivotal transitional period in the history of Abu Dhabi during which the local traditional way of life adapted to socio-cultural and economic changes prompted by the exploration and discovery of oil in Abu Dhabi in the 1950s.
The house was built using a mix of traditional materials and concrete, an innovative material at that time. The house embodies the trends of this period through the hybridization of traditional and modern architectural typologies to suit the requirements of Arab society while incorporating modern materials such as cement, steel and aluminum according to vernacular construction techniques, and the regional influences of the Gulf and the Indian Sub-Continent in decorative aesthetics. Being one of the few surviving examples from this period, the significance of the house is enhanced by its high level of authenticity.
Project gallery
Project location
Address:Al Ain, United Arab Emirates
客服
消息
收藏
下载
最近



































