查看完整案例

收藏

下载

翻译
Architects:A229
Area:3700m²
Year:2022
Photographs:Tim Van de Velde,Caroline Dethier
Lead Architects:Grégoire Houyet, Renaud Van Espen, Jaime Eizaguirre, Marcos Alvarez
Lead Team:Renaud Van Espen, Christoph Andres
Engineering & Consulting > Structural:Stabili.D
Engineering & Consulting > Other:CSDIngénieurs
City:Liège
Country:Belgium
Text description provided by the architects. Transparency and Flexibility: The New Face of HEC Liège - The University of Liège has recently opened its new office and teaching building aimed at centralizing the activities of the Haute École de Commerce (HEC) at the Louvrex site. This ambitious architectural project, located in a dense yet green neighborhood, meets functional and aesthetic requirements while respecting the existing urban heritage.
Strategic Location - The building seamlessly integrates into a varied urban fabric, with built-up areas and green spaces, particularly near the Botanical Garden. The interior of the block, already densely built, retains several green areas, emphasizing the balance between nature and urbanism. The design maintains visual permeability between the street and the interior of the block, including the seventeenth-century heritage building, thus creating a strong link between the city and the university. Volumes and Contextualization - The project features varying volumes, from ground level to R+5, in response to the surrounding urban context. By fronting the street, the building asserts the university's presence in the city center. This adaptation of volumes allows for harmonious integration into the urban landscape while meeting the specific needs of the program.
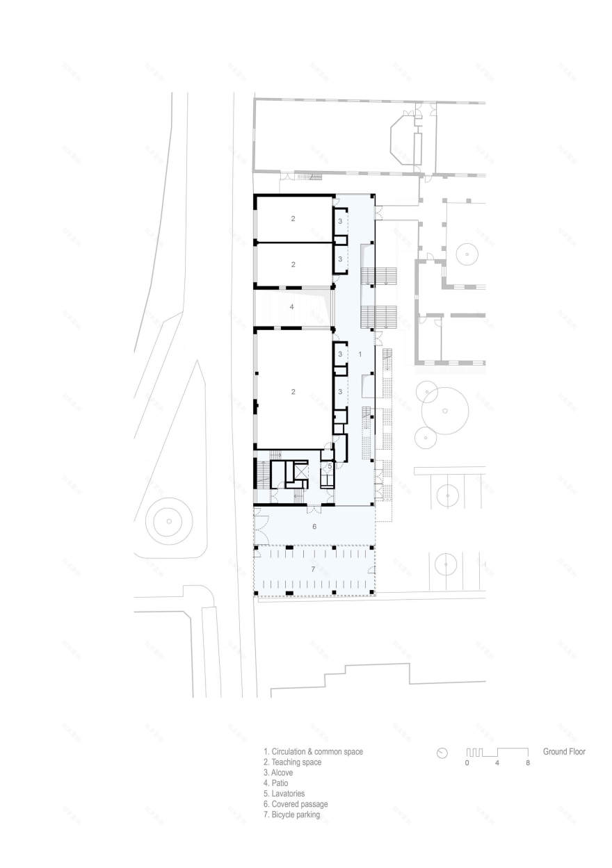
Space Organization - The building houses separate spaces for teaching and offices, while facilitating interactions between these functions. Teaching spaces are located on lower levels, with offices occupying upper floors. Clear and logical spatial organization optimizes natural light, with classrooms facing north and an "inhabited band" along the south facade, offering bright and inviting workspaces. Flexibility and Adaptability - The building's structural design emphasizes simplicity and rationality, providing significant spatial flexibility. Classrooms can be adapted as needed, and office spaces are designed to accommodate various configurations. This flexibility ensures the building can evolve with the university's needs, ensuring continuous and relevant adaptation.
Materiality and Aesthetics - The building's concrete structure, often left exposed, is complemented by wooden elements in specific areas such as the "inhabited band" and the "central cores" of the offices. The front facade, made of prefabricated architectural concrete panels, harmonizes with the urban character of the building and the existing facade, while the polycarbonate side and rear facades offer a distinctive identity, transforming the building into an urban lantern in the evening.
Conclusion - This new building for the University of Liège exemplifies thoughtful integration into the urban context, structural flexibility, and modern aesthetics. It serves as a significant example of contemporary architecture, respecting heritage while meeting the functional needs of education and research.
Project gallery
Project location
Address:Liège, Belgium
客服
消息
收藏
下载
最近























