查看完整案例

收藏

下载

翻译
Architect:Scattola Simeoni Architects
Project Year:2023
Category:Offices;Warehouses
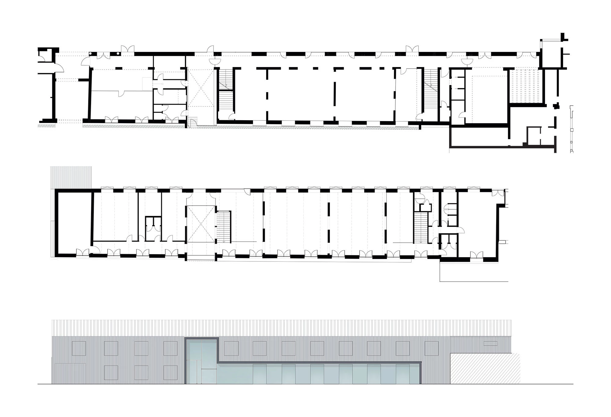
The regeneration project revitalized a disused real estate complex, once central to the Bicycle Production District in Rossano Veneto. This site, tied to the economic boom of the 1960s, had fallen into decay until the Frattin Group acquired the area with the vision of transforming it into a modern Motor Hub. The project preserved the original architectural essence of the buildings, which featured typical mid-20th-century industrial structures, while removing incoherent additions and reorganizing the spaces through new main pathways that connect all areas of the complex.
The intervention also brought back the visibility of the diverse geometries of the structures, especially evident in the north facade along Via San Paolo, where the alternation of arches and gables creates a "new silhouette" that has become a distinctive symbol for the group. Particular attention was given to the management of light, with large windows to enhance natural lighting in the offices, and precise control of illumination in the Auto Museum to highlight the exhibits. The entire complex is clad with a micro-perforated metal mesh, serving as both solar shading and a ventilated facade, creating a dynamic visual effect that changes throughout the day. By day, the building appears as a solid black mass, while at night it reveals its intricate internal structure, giving the entire complex the appearance of a "machine in continuous motion."
▼项目更多图片
客服
消息
收藏
下载
最近




















