查看完整案例

收藏

下载
PART.1
何意栖碧山
有时碧山民宿位于山水如画的黄山市黟县碧山村,这里距离联合国文化遗产西递宏村等旅游热点都只有几公里,离黄山景区主入口的车程也在一小时以内。
民宿所在的碧山村,是个非常独特的徽州古村落,这里既有烟霞遍地粉墙黛瓦的乡村风光和1600年深厚历史文化传承积淀,也是中国现代乡村文艺生活方式的代表。这里有密集的书店、手作商店和咖啡馆,有高品味的乡村艺术展览,有多家各具特色的高端民宿,有各类研学班、工作坊、文化活动,与其它旅游胜地的气质迥然不同,是一个把传统与现代,乡土与时髦无缝融合起来的独特现代乡村标本,是乡村振兴的优秀案例。
PART.2
传统与现代乡土与时髦
有时碧山民宿延续了碧山村这种独特迷人的文艺乡村气质。交通便利,自然环境得天独厚,背靠气象万千的来龙山和屏山,前临清澈见底的漳河,山水相连,视野开阔,四季田园风光如诗如画。
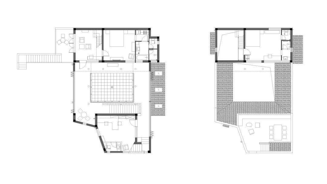
山脉和田野之间的民宿只设4间精致的客房,并有会客厅,早餐厅,戏水池以及空间丰富移步换景的多层次全景露台。
有时碧山的建筑设计,其基本视觉元素和空间格局来自皖南民居中的传统建筑元素,但运用现代设计技巧精心布局,在保留了徽州建筑审美的基础上,又避免了皖南传统民居较为封闭,采光、通风、保温隔热不完善的弊端。
民宿建筑形象内敛质朴,室内外空间丰富灵动,开阖有致。建筑师把整个建筑的内部空间都尽量向山水田园打开,把自然环境引入到建筑内部,让建筑和自然融为一体,创造出介于人工与自然之间的优美度假和居住生活空间。
民宿二楼的空中庭院,传承了徽派建筑典型的“四水归堂”空间布局,四面坡屋顶的雨水汇集到内院,隐喻财富的汇聚和积累。而四水归堂内院两侧的木制莲花门可以完全折叠关闭也可以完全打开,依托现代建筑技术,可以随意调节内院的景观视线和气流,灵活满足各个季节,各种天气的居住需求。
乡村是中国人的心灵家园,而皖南乡村,则是中国无数古典诗词和山水田园画中的乡村形象模版,代表着无数中国人的心灵故乡。有时碧山民宿的目标是创造一种前所未见的中国现代乡居生活。在这种诗意生活中,住客能满足回归乡村生活的心理愿望,也能无缝对接现代生活和现代审美,在舒适性方面更是不打任何折扣。
民宿的设备设施和床品备品都面向高端住客的需求。中央空调,地暖,中央热水系统,五星级酒店同款床垫床品,欧洲品牌的智能卫浴和洗护用品,让有时碧山的住客在享受山水田园和文化氛围的同时,也能拥有高标准的生活舒适性,获得完整的度假居住体验。
民宿建筑所处优越美好的自然人文地理环境,给了风水格局的布置以非常好的基础。建筑背靠北侧屏山作为靠山,正南方朝向碧山村标志性的云门塔,各个方向都经过了精心调整和布局。这种潜移默化的风水布置让建设完成的有时碧山民宿,在各个层面都与周围山川获得了更强和更多层次的联系,也让每个来访和居住的客人,都能直观地感受和体会风水文化这种天人合一的古老文化传承。
PART.3
有时建造有时居住有时旅行
有时碧山的4间客房各具特点其命名亦来自于客房周边的环境元素
底楼李子树私享庭院大床房
这间底楼精致客房的每一扇窗都是一副美丽的画。西侧落地窗外是小小的私享庭园。庭园上方是一棵亭亭如盖的李子树。春天开着满树白色花朵,初夏则结满清甜可口的果实。盛夏季节又像一把大伞,挡住酷暑和烈日。坐在庭院里还能眺望溪流和山景。南窗面向公共庭园和水池,花团锦簇,冬天则给房间带来温暖的阳光。
房间有舒适的1.8米大床和休闲沙发,拱形吊顶和柔和的反射灯光让整个房间充满了温馨的氛围感。房间的卫生间是干湿三分离,每个空间独立使用,互不干扰。
底楼七里香舒适花园亲子房
这间同样位于底楼的房间东侧落地门外有个独立的小花园。花团锦簇的庭园里种着满墙七里香,春天开花时,满园绿树白花香气四溢。房间前的小庭院与民宿的大门前院有通道联结,进出便利,是适合老年人和行动不便者居住的房间。
房间除设有1.8米宽阔大床外,还设有沙发床,平时布置成舒适的半卧靠椅沙发,有需求的时候可以调整为1米的单人小床,变为亲子房的设置。房间空间相对宽敞,采光良好。卫生间同样是干湿三分离,设施完善,使用方便。
二楼枫杨林四水归堂大床房
楼上的两间客房枫杨林和云门塔拥有一个共同的小型会客厅,可以作为舒适私密的两房一厅套房使用。套房会客厅的西侧露台紧邻李子树的树冠,春天时可以躺在露台的躺椅上伸手摘李子。会客厅两层通高,高敞开阔。非常适合作为阅读,饮茶,休闲的空间。
枫杨林房间面向有时碧山民宿最重要的四水归堂空中庭院。是整个民宿的空间精华。这个东西方向可以向山水田园完全打开的宽敞空间,四时四季都有不同的景观和气象。
枫杨林房间的名称来自于这个庭院东北和西南侧两组百年以上的枫杨树。这些树木高耸挺拔,给了整个建筑非常好的衬托和荫庇。
房间有舒适的1.8米大床,面向庭院的落地窗前有适合阅读与发呆的沙发。卫生间除了三分离卫浴,还有宽大的浴缸,每个卫浴空间都开有独立的窗户,采光和景观都是整个民宿中最佳的。
三楼云门塔徽派塔景大床房
云门塔房间位于民宿的三楼,通过会客厅中一个小小的钢楼梯,进入整个民宿最独特,景观最开阔的房间。这间房有徽州传统做法的木屋顶,充满杉木淡淡的清香味道。
房间地势高敞,视野开阔,可以俯瞰民宿错落有致的四水归堂屋面,也可多方向远眺周围的田园山水。最喜人的是可以通过南侧露台的景窗,眺望到碧山的地标云门塔,这个景窗把碧山悠久的建筑历史文化与有时碧山的居住体验深刻地连接起来。
有时碧山民宿这个只有四间客房的建筑,规模很小,却提出了宏大的主张。它显示出一种联结传统和现代,融汇乡土和时尚的建筑可能性,创造出符合现代生活习惯的乡村生活新方式。而这种生活方式或许可以吸引现代都市人回归山水田园,回归想象中的心灵故乡,获得更深层次的度假和文化体验。李白说,问君何意栖碧山,笑而不答心自闲。千年以后,有时碧山民宿给这个问题交出一份用心的答案。
工程概况:
业主: 黟县则闲文化发展有限公司
设计: 上海新外建工程设计与顾问有限公司
项目负责人:夏莹
用地面积:600平米建设用地
总建筑面积:318平米
设计时间:2019-2022年
开业时间:2024年8月
建筑摄影:夏莹
客服
消息
收藏
下载
最近








































































