查看完整案例

收藏

下载
Humber住宅位于多伦多Baby Point社区,由Batay-Csorba建筑事务所设计。Baby Point社区西临蜿蜒的Humber河,社区中的很多建筑都能欣赏到令人向往的河谷景色。得益于这得天独厚的地理位置与景观优势,这块面积为65’x20’的拐角地段,以其地块形态成为项目设计的驱动因素,决定了空间组织和层次。
Batay-Csorba Architects introduce the Humber Residence, a new infill project in Toronto’s Baby Point neighbourhood. Bordered to the west by the winding Humber River, many houses in the Baby Point area enjoy sought-after views of the river valley. Obtaining this view and taking advantage of the small 65’x20’ pie-shaped corner lot became coinciding drivers determining the spatial organization and hierarchy.
▼项目概览,overall of the project © Doublespace Photography
与典型的狭窄的多伦多地块不同,位于角落的场地享受了更大的布局自由,使设计能够将自然光线引入到各种生活空间中,在这种情况下,场地的长边也恰好面向了远处的Humber河。这种规划布局造就了动态的空间,将建筑向外部环境打开,让光线进入室内,同时也创造出了一处俯瞰着邻近建筑和河流的半室外露台。
Unlike the typical narrow Toronto lots, being on a corner site allowed for far more freedom to bring natural light into the various living spaces and, in this case, the long side of the site also happened to be the one facing the distant Humber River. This lent the opportunity to work in sections to devise a dynamic space that not only opened the house up to let light in, but soared up to a lookout point to see over adjacent buildings to the river.
▼街景视角,street view © Doublespace Photography
▼入口立面,entrance facade © Doublespace Photography
建筑的外观与环境相呼应,立面和陡峭的斜屋顶上覆盖着历史悠久的浅黄色砖,形成不同的纹理图案。入口和三楼的露台向内凹进,立面上的砖材与黑色烧结石板形成和谐的对比。室内设计以经济的自然材料营造出休闲舒适的氛围,反对博物馆般极简理性的美学,室内材料包括:回收的木条地板,波罗的海桦木镶板,水磨石,以及混凝土。
The exterior speaks to the context, clad in old historical buff yellow brick in varying banded coursing patterns across the facades and a steep pitched roof. The front entry and third floor deck are carved from brick with contrasting black sintered stone panels. The interior is a casual and affordable palette of natural materials for an anti-museum aesthetic, with recycled strip plank wood flooring, Baltic birch paneling, terrazzo, and concrete.
▼入口,entrance © Doublespace Photography
▼位于三楼的半室外露台,the third floor deck © Doublespace Photography
在本项目中,建筑师没有采用在狭窄地块中常见的采光天井的设计,而是将连接三层的交通空间独立出来并保持开放,通过三层的中庭空间延伸到倾斜屋顶下方的半室外露台。材料的过渡界定了该空间在家庭生活中的重要性,同时也突出了露台与住宅其他主要公共空间之间的视觉联系。
Here, rather than using punctual light wells to bring in light, as is customary in narrow lots, the three-storey circulation is isolated and left open, stretching through a grand three-storey atrium space to arrive at a sheltered outdoor balcony carved out beneath the sloping roof. A transition of materials demarcates the significance of this space within the home, while highlighting the visual connectivity between it and the other major public spaces.
▼客厅,living room © Doublespace Photography
▼厨房餐厅,kitchen-dining © Doublespace Photography
▼通高空间,double-height space © Doublespace Photography
住宅围绕着一座引人注目的三层中央天井组织,天井立面以温暖的木材覆盖,这里既是光线的过滤器,也是能够为住宅降温的拔风塔,同时也作为住宅的垂直交通空间。在顶部,玻璃门外是朝南的半室外屋顶露台,露台上设有一座日式浴缸,在这里人们可以一边沐浴,一边欣赏Humber河的全景。来自南侧的光线穿过木制的露台,在温暖而平静的琥珀色光芒中照亮室内。
The home is focused around a dramatic central three-story wood clad lightwell, functioning as both a light monitor, a ventilation chimney that cools the home, and vertical circulation. At the top, large south facing doors open onto a covered roof deck with panoramic views of the Humber River, and a Japanese soaking tub for taking it all in. Southern light is collected within the wooden liner, illuminating the interior in a warm and calming amber glow.
▼楼梯,staircase © Doublespace Photography
▼坡屋顶内空间,space under the pitched roof © Doublespace Photography
▼楼梯间细部,details of the staircase © Doublespace Photography
▼俯视楼梯,overlooking the staircase © Doublespace Photography
▼细部,details © Doublespace Photography
▼由室内看半室外露台,viewing the semi-outdoor deck from interior © Doublespace Photography
▼半户外露台与日式浴缸,semi-outdoor deck and Japanese style bathtub © Doublespace Photography
住宅建筑面积为195平方米(约2000平方英尺),以今天的标准来看,本项目是一座朴素的三卧室住宅。紧凑的建筑占地面积,要求住宅中每个房间的设计都匀称和舒适,同时也不过度奢华或夸张。儿童卧室上方与倾斜屋顶之间,是通过定制的梯子进入的隐藏式阁楼书房。一间小办公室和音乐工作室俯瞰着主卧室空间。
Measuring 195m² (2,000 sq.ft.), the Ravine house is a modest three-bedroom home by today’s standards. With a compact building footprint, each room is resolutely designed to be well-proportioned and comfortable, but not excessive. Tucked into the roof peak, above the children’s bedrooms, are hidden reading lofts accessed by custom access ladders. Overlooking the primary bedroom is a small office and music studio.
▼卧室上方阁楼,loft space © Doublespace Photography
▼视觉联系,visual connection © Doublespace Photography
▼阁楼书房,the hidden reading loft © Doublespace Photography
走廊和楼梯间被最小化,没有设置任何步入式壁橱、食品室或多余的房间,卧室紧凑,内置家具与衣柜进一步节省了空间,洗衣房被规划在交通大厅外,每平方英寸的空间都经过精心设计和利用,以响应场地紧凑的环境。精美的建筑细节,彰显了空间的质量,充满了设计对于生活方式的关注和关怀。宽敞的空间感不是由房间的大小或留白的空间创造的,而是通过探索垂直性作为中心组织原则而产生的,空间以有序的方式相互交织,产生了类似堆叠树屋的灵活空间效果。
Corridors and stairwells are minimized, there are no walk-in closets, pantries, or unused bonus rooms, bedrooms are compact with space-saving built in furniture and wardrobes, laundry is built in off the circulation hall, and every square inch of space is thoughtfully designed and utilized to respond to the site’s compact circumstances. And yet, there are beautifully considered architectural details that speak of quality, attention, and care. A monumental and voluminous sense of space is created not with vast room sizes or uninhabited rooms, but by exploring verticality as its central organizing principle, where spaces are interlocked and combined to generate multi-layered programmed spaces akin to a stacked tree house.
▼卧室,bedroom © Doublespace Photography
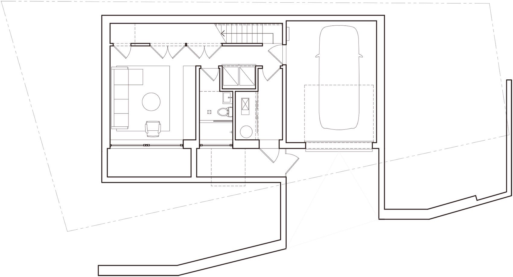
▼一层平面图,ground floor plan © Batay-Csorba Architects
▼地下层平面图,basement floor plan © Batay-Csorba Architects
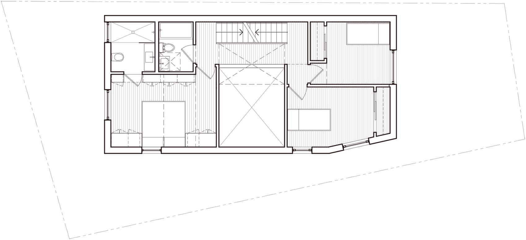
▼二层平面图,first floor plan © Batay-Csorba Architects
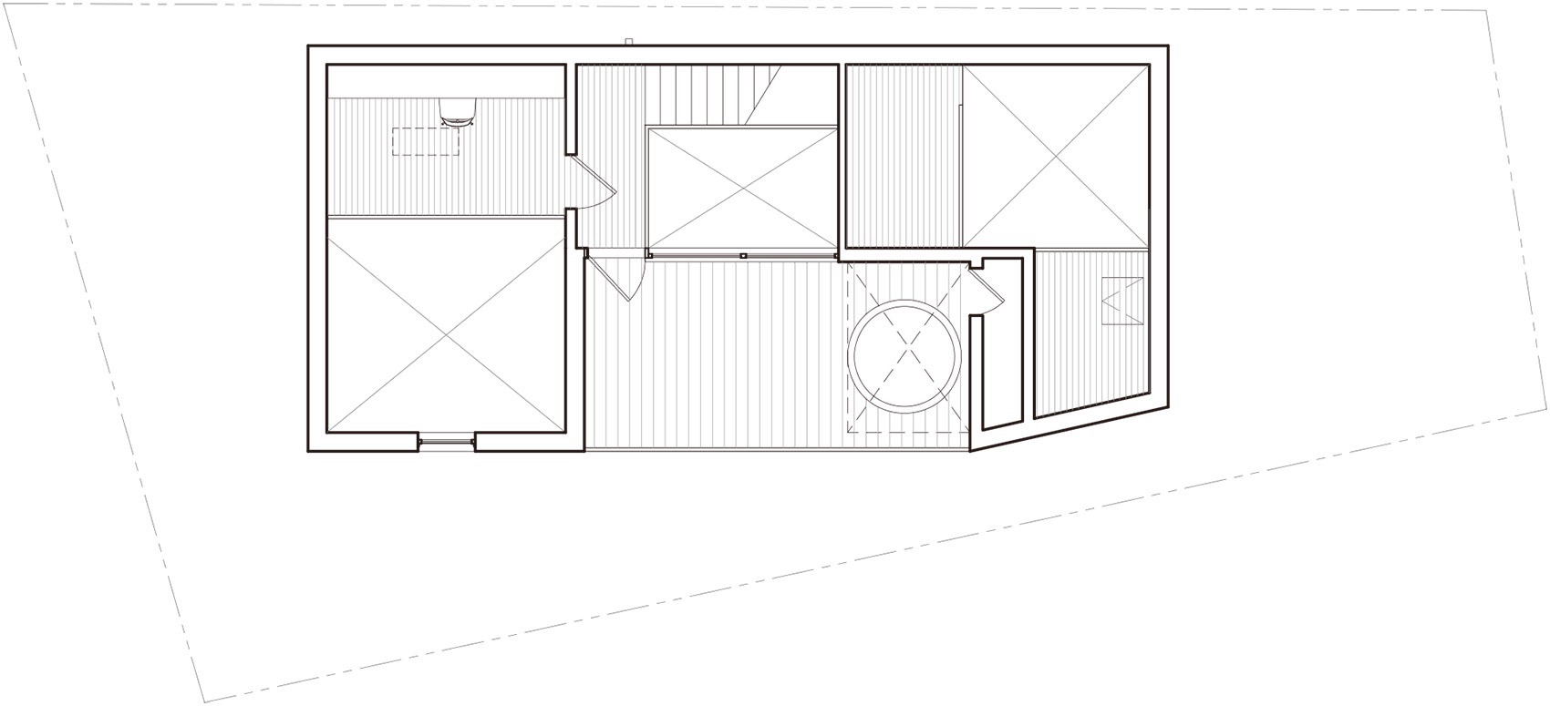
▼三层平面图,second floor plan © Batay-Csorba Architects
▼剖面图1,section 1 © Batay-Csorba Architects
▼剖面图2,section 2 © Batay-Csorba Architects
▼剖面图3,section 3 © Batay-Csorba Architects
Technical sheet
Location: Toronto Ontario, Canada
Area: 2,000 sft
Photography: Doublespace Photography
Status: Completed, 2023
客服
消息
收藏
下载
最近






























