查看完整案例

收藏

下载

翻译
Architects:ATELIER XI
Area:2000m²
Year:2023
Photographs:Zhang Chao
Manufacturers:Chuangwei,Nippon Paint,Xixiang
Lead Architect:Chen Xi
Construction Company:Pengsen Construction
Design Team:Huang Zhenfeng, Ye Fangnan, Wu Huiyang, Weng Cekai, Zhu Jing, Lin Ziya
Elderly Care Service Design Consultant:Lei Sima, Associate Professor, Tongji University
City:Hebi
Country:China
Text description provided by the architects. The Qinghuayuan Community Center is located in the Qibin District, Hebi, Henan Province. The densely inhabited residential community has a permanent population of 12,000 people, with elderlies and children comprising a considerable proportion, accounting for over one-third of the community.
Before the renovation, the building was divided into two separate entities, being the Community Service Center and a kindergarten. The two departments, independently managed and operated, cater to the needs of distinct community demographics: one for residents and the other for children.
Drawing on the latest model of integrated elderly care and childcare, this renovation project aims to merge community services, elderly daycare services, and childcare functions. Through spatial reorganization, the goal is to create a living scenario where people of all ages can help and respect each other, fostering inclusivity and coexistence. The project seeks to establish a community model exemplifying functional diversity within the concept of a "15-minute neighborhood."
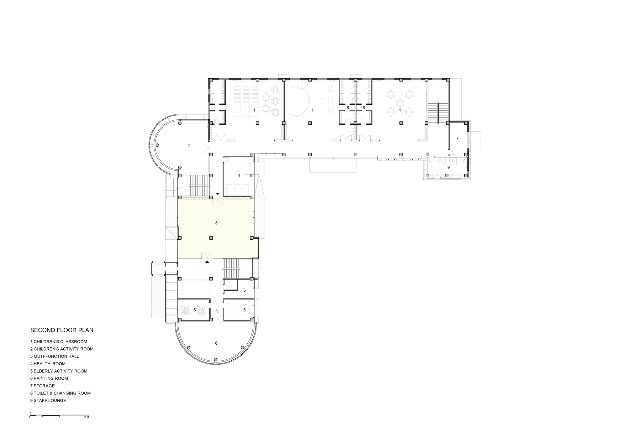
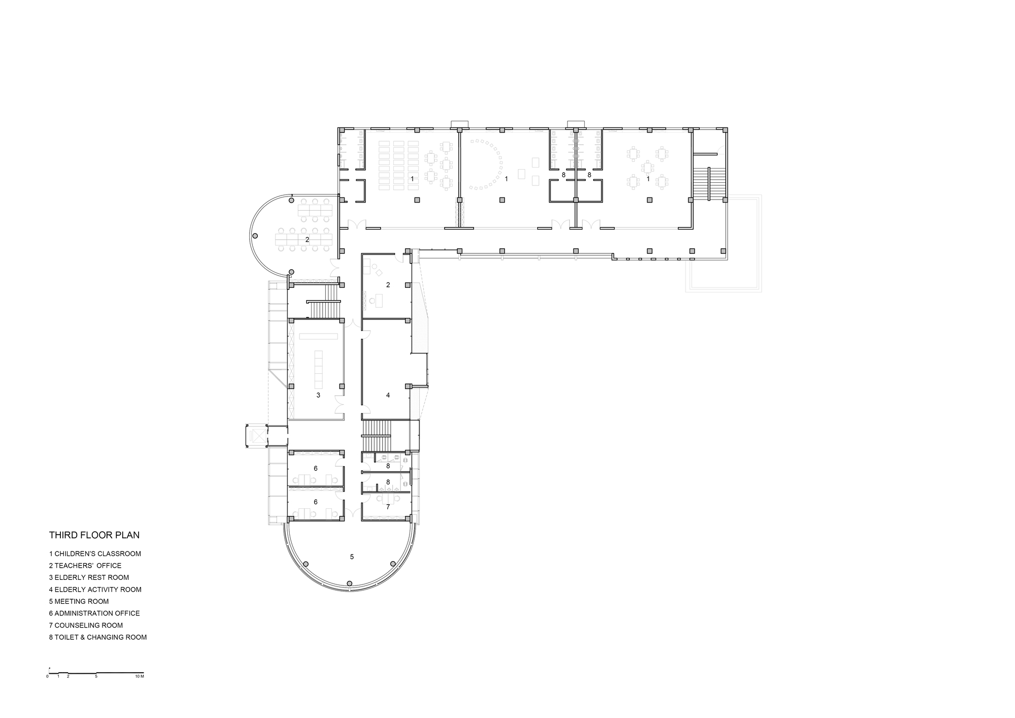
Time & Space Sharing Between Elderly and ChildrenOne of the key objectives of the architectural renovation is to create an interactive area within the facility. This area, serving as the central hub for intergenerational interactions among residents (such as the library and multipurpose hall), is strategically situated between the kindergarten and the community center. This setup allows for flexible management and adaptable operational modes. The space can be separately accessed by users on both sides during different time slots to ensure safety measures. It can also be opened to all groups during special occasions like festivals and community gatherings.
Furthermore, if parents are unable to pick up their children promptly during regular kindergarten closing hours, the children are encouraged to spend time reading books in the library, with supervision provided by community administrators.
Everyday Operation of All-Age InteractionThe newly installed elevators connect every floor of the community center, ensuring easy access for elderly, young, and disabled residents to various service functions located on different levels. Additionally, the entrance hall is reconfigured as a double-height space to enhance visual interaction among residents of different ages, thereby cultivating a sense of mutual care and sharing within the community.
The community and social entrepreneurs collaborate in the daily operation of the building, bringing in social organizations specialized in elderly day care, children's activities, and health consultation. With a focus on the elderly residents, third-party elderly care services are introduced to establish an integrated community elderly care model with joint effort from community, institutions, and home care. This initiative includes establishing learning centers for elderly education, community canteens, age-friendly fitness rooms, chess rooms, and psychological counseling services to support the daily lives of the elderly population.
The multifunctional classrooms host different group classes, such as instrument lessons, dance, choir, calligraphy, and handicraft sessions from Monday to Friday for residents to engage and learn.
A Lively and Bright Green HubThe original building facade styles were disparate and austere. In this renovation project, the facade is enveloped entirely in light green metal mesh panels, with the hope of cultivating greenery vines in the future, creating a vibrant and lively imagery of the neighborhood. Meanwhile, the interior public spaces are furnished with wooden finishes and white walls, embodying a relaxed and warm color palette and texture. When illuminated at night, the community center's interior spaces and dynamic atmosphere will be showcased on the facade, serving as a bright community lounge that symbolizes the sense of belonging and mutual assistance spirit of the Qinghuayuan community.
Project gallery
Project location
Address:Hebi, Henan Province, China
客服
消息
收藏
下载
最近




















