查看完整案例

收藏

下载
Burcht van Leiden 城堡作为当地最古老的建筑,其历史可以追溯到 1060 年,堪称是这座城市最令人回味的地方之一。就连其山下的马车房,其历史也可以追溯到 1657 年。Modijefsky 工作室的设计理念从这个地标建筑的丰富历史中汲取灵感,无缝地整合和丰富了建筑中的原始元素,例如高高的天花板、大拱门和木梁。定制的家具和灯具展示了设计对细节的精心关注,别具匠心的选材以及室内装饰织物亦是如此。
As the oldest structure in Leiden, dating back to 1060, the Burcht van Leiden castle is one of the most evocative places in the city. Just down the hill is a carriage house that itself dates back to 1657. The studio’s design concept draws inspiration from the rich history of this iconic landmark, seamlessly integrating and enriching original elements including high ceilings, grand arches and wooden beams. Bespoke furniture and lights exhibit a painstaking attention to detail, as do the carefully curated materials and upholstery fabrics.
▼项目概览,overall of the project©Maarten Willemstein
外摆区
Terrace
当客人从 Burcht van Leiden 城堡走下来时,首先看到的将是 Rumour 酒店宽敞的外摆区,外摆区的边界由两条木制的角落长凳定义,此外,树木周围还环绕着定制的圆形长凳。桌椅的组合营造出啤酒馆的热闹氛围,一张公共大桌则为更大的团体聚会提供了更合适的选择。俏皮的棕褐色遮阳伞,鸽蓝色金属家具,定制的木制座椅元素和迷人空间构图,为舒适的室内空间奠定了基调。
The first thing guests see when descending from the Burcht van Leiden is a large terrace, whose boundaries are marked by two wooden corner benches with a custom round bench encircling the tree between them. A brasserie ambiance is exuded by the collection of tables and chairs, while a large communal table hosts larger groups. Playful tan-coloured parasols, pigeon blue metal furniture, bespoke wooden seating elements and captivating graphics set the tone for the experience awaiting inside.
▼外摆区,terrace area©Maarten Willemstein
▼树木周围的环形座椅,round bench encircling the tree©Maarten Willemstein
▼细部,detail©Maarten Willemstein
底层空间 Ground floor Rumour 酒店的底层空间是一处充满了无限可能的地方,人们不仅可以在这里吃饭、喝酒,还可以在夜晚到来时于此共舞一曲。空间中充满了吸引人的艺术作品、多样化的座位选择,以及精致的定制灯具,丰富的组合能够呼应人们的各种情绪。
The downstairs space at Hotel Rumour can be whatever you desire: a place for a meal, a drink or a dance at the end of the night. It’s filled with an attractive array of art, seating options and custom lights that offer something to suit every mood.
▼底层空间,ground floor©Maarten Willemstein
▼座位区,seating area©Maarten Willemstein
▼墙边卡座区,booth area along the wall©Maarten Willemstein
▼多种座位选择,various seating selection©Maarten Willemstein
▼角落座位,seats in the corner©Maarten Willemstein
▼座位区,seating area©Maarten Willemstein
▼细部,detail©Maarten Willemstein
▼长桌,long table©Maarten Willemstein
酒吧区是用餐空间中的核心,它无缝地融入空间,米色水磨石台面与倾斜的边缘吸引着人们的注意力。吧台正面和侧面还装饰有时髦的贴面木、黄铜面板和深绿色水磨石块。吧台的后方,弯曲的金属层点缀着一座中央拱门,光滑的金属表面将拱形的光线反射到两侧玻璃架的水平线上。
The bar is a key feature that delineates the dining space. It fits seamlessly into the space while grabbing attention thanks to the counter with a beige terrazzo top and bevelled edges. The front and sides are adorned with funky-patterned veneer wood, brass panels, and dark green terrazzo blocks at the foot. On the back bar layers of reflective curved metal embellish a central arch, reflecting the arched light line onto the horizontal lines of glass racks on both sides.
▼酒吧吧台,bar counter©Maarten Willemstein
▼细部,detail©Maarten Willemstein
酒吧区后方则是一个隐秘但充满活力的空间。吧台的线条围绕拱门周围延伸,一直延伸到前廊。壁龛的颜色略深,前部设有边桌,进一步营造出“温室般的”氛围。这里是一个不错的小落脚点,人们可以一边喝着饮料,一边欣赏外面风景如画的广场。太阳下山后,三角形底座上的定制圆柱形灯具散发出温暖的光芒,照亮了整个底层空间。
Hidden around the back of the bar is a clandestine but lively space. Trace the lines of the bar and you’ll see it extends around the arched openings to continue into the front porch. Painted in a slightly darker colour, this niche features a wall table that enhances the ‘greenhouse-like’ atmosphere. It’s a nice little perch for enjoying a drink while overlooking the picturesque square outside. After the sun goes down, a warm glow is provided by custom cylinder shaped lights on triangular shaped base – which are spread throughout the entire ground floor.
▼壁龛与边桌,the niche and the side table©Maarten Willemstein
▼细部,detail©Maarten Willemstein
上部楼层
Upstairs
Rumour 酒店的顶楼主要作为休闲鸡尾酒吧,但酒吧一部分也可以被分隔出来用于私人聚会。楼梯和木制天花板梁自然地将该楼层分成三个区域。高高的木制天花板、山墙屋顶,以及裸露的横梁创造出宽敞而又亲密的氛围,同时也彰显了向本土建筑传统的致敬。
Hotel Rumour’s top floor is primarily used as a lounge cocktail bar, but part of it can be partitioned off for private gatherings. The space here is split naturally into three areas by the staircases and wooden ceiling beams. The tall wooden ceiling, gable roof and exposed beams create an expansive yet intimate ambiance that celebrates its vernacular architecture.
▼顶层空间,top floor©Maarten Willemstein
▼休闲鸡尾酒酒吧,lounge cocktail bar©Maarten Willemstein
▼吧台,bar©Maarten Willemstein
▼角落座位,seating area at the corner©Maarten Willemstein
▼灯具细部,detail of the lighting feature©Maarten Willemstein
▼私人派对空间,private party area©Maarten Willemstein
▼复古的家具,vintage furniture©Maarten Willemstein
▼舒适氛围,comfortable ambiance©Maarten Willemstein
▼细部,detail©Maarten Willemstein
顶层多功能性和娱乐性代表了 Rumour 酒店的精髓:一座历史悠久的建筑,在优雅的设计美学下重获新生,它既俏皮又精致,既亲密又宏伟,每一次拜访都将为旅客们带来不同的体验。
The versatility and playfulness of this floor encapsulate the essence of Hotel Rumour: a historic building given new life by a design aesthetic at once playful, refined and grandiose with a galaxy of details that reveals more of itself on every visit.
▼楼梯,staircase©Maarten Willemstein
▼定制灯具,custom-made lighting feature©Maarten Willemstein
▼细部,details©Maarten Willemstein
▼标识设计,VI design©Maarten Willemstein
▼品牌设计,branding© Studio Modijefsky
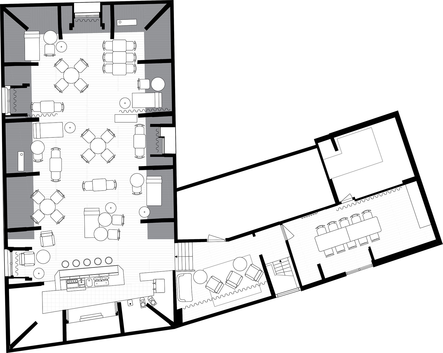
▼底层平面图,ground floor plan© Studio Modijefsky
▼顶层平面图,top floor plan© Studio Modijefsky
Project: Hotel Rumour
Location: Leiden, The Netherlands
Program: Cafe, Bar & Restaurant
Assignment: Interior design & Identity design & Branding
Status: Execution
Size: 386m2 interior & 150m2 exterior
Client: 3WO
Design: Studio Modijefsky; Esther Stam, Agnese Pellino, Felicia Ureña, Ivana Stella, Beau van der Schoot, Mathilda Legrand, Marie Pierron, Sofia Masselli, Christel Willers
客服
消息
收藏
下载
最近






































