查看完整案例

收藏

下载
随着旅行方式的升级迭代,民宿也不再只是作为旅行中的休息载体,它成为都市人群暂时逃逸的“远方居所”,被赋予了更多的功能属性、价值期望和情感体验。
这个项目位于龙岗区,民宿临海,藏于海贝湾度假村靠里的一角,北侧坐拥群山,视野开阔,远眺绵延的山脉,南望一望无际的大海,俯瞰海浪蜷缩与归航渔船,所有浪漫的诗情画意,在这里被描述的淋漓尽致。
抛开对传统民宿固有的观念,蔡叔(本案屋主)希望民宿以“亲子”的主题形式来呈现,其理念让一家人从繁杂的生活里抽离出来,回归自然本源。
业主找到我们时,建筑主体结构已经建成,由于房子空间有些局限性,设计师重新分析规划后,整个改造围绕着建筑和自然的关联展开,让建筑和自然能更好的对话。
小朋友并不是幼稚的代名词,因此我们摒弃常见的刻板印象的五彩化卡通图案,将亲子民宿的设计风格定位为「富有童真却不失美感」
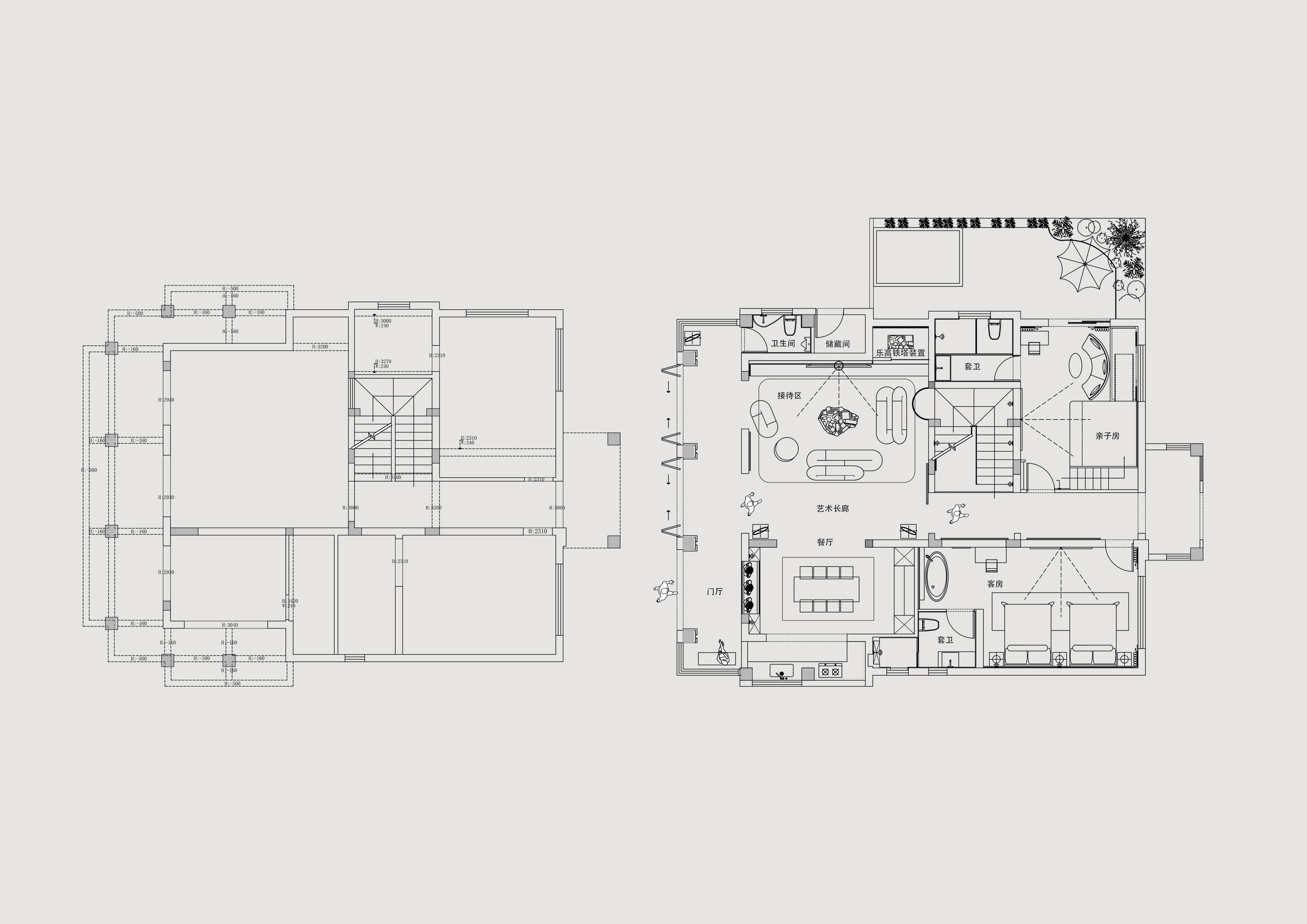
民宿整体分为两层,空间里设有6间客房,可以针对不同的需求,同时设有接待区、用餐区,楼顶有休闲露台,小朋友在愉快玩耍的时候,大人也能拥有自己的惬意时光~
推门进来,映入眼帘的是一整排手办墙,屋主女儿(小蔡)从国外回来,将来也是这里的管理者,手办,在收藏者心目中,它是一种精神图腾,是找到同道中人的通用语言,是喜爱也是信仰,色彩艳丽的手办墙在这一刻似乎在说:欢迎你的到来。
信步徜徉于宽敞的接待区,空间整体色系以高级暖咖色为主色调,在空间中又通过挂画、手办等元素为整体空间增加色彩,“宁静”与“跳脱”在这个空间里达到一种平衡的状态。
软风烟雨,万物沉静,在接待休闲区随心而坐,与家人促膝长谈,翻半本没看完的书。直至深夜,枕着星光入睡。
设计师希望将自然引入室内,建筑体块中开出一道道水平玻璃窗,能从各个角落望见窗外的风景,尽最大可能地与自然进行对话,置身其中犹如森林中自由生长的树木。
设计师在空间中也运用到很多天然的材料,如木材、石材等,以营造与自然环境相协调的氛围。这些材料不仅能够与自然环境相融合,还具有舒适和温暖的触感。
仿洞石质感的移门,粗狂、坚硬但不突兀,如这里的生活般,平淡、质朴,但不潦草。周身是静谧的氛围,肌理流动着不可言说的生命力。
电视背景墙侧边在三个乐高点缀下低调简素却又生机勃发,丰富空间层次的同时也让这面墙在一众谦虚而低调的配置中展现着自己的个性。这里大概率是小朋友玩耍的最佳基地吧!
用餐区域通过朴素的色彩,与自然相结合的建筑结构,取于山林间的景色,将安静与惬意融入此刻,舒适且饱含诗意的设计手法,是围绕设计对于每一位来访的温情回应。
空间在温润的包裹之下,没有喧嚣与匆忙,给予到访者温柔守候,在诗意自然的怀抱里,望山、见海、聊寄,阳光晴好时,暖上一壶茶,翻看一本书,感受阳光细细密密地洒在身上,和家人静享慢时光。
我们向自然索取灵感和素材,也在自然的怀抱中得到治愈滋养。光倾泻而入,展开一场沉思的对话,给予深层次的愉悦和满足感。这里是我们与自然共鸣的场所,一种心灵的治愈在其中蔓延。
室内随着空间的规划,产生了动态的变化,设计师将亲子房设计为一个“树屋”的形式,下层是休息区(除了固定床榻,房间还设置了可休息的沙发,方便家庭人多时入住),上层是小朋友玩耍基地,滑梯下来墙边保护式的叠加设计给家长和小孩更多的安全感,素朴却丰满,简单又舒适。
移步至二楼客房内,窗外绚丽的景色仿佛近在咫尺。
设计师在睡眠区域抬高一块区域做地台,上面放置床垫,旁边也放置了可移动床垫,可以满足一家几口人出行的时候入住,这一处小小的改动设计,营造了属于亲密关系的交流氛围,被缩短的社交距离、面对面的交谈姿态、都是这块小小的对等交谈区域专属的效果。
有阳光的时候,海上的粼粼波光似乎能穿透玻璃,投射到室内来,再经过珠光的二次演绎,成为某种即兴的美妙景象。浪漫、诗意、兴奋……身在其中一定还能找到更多美丽的词汇,去赞美从眼睛到精神的情绪感受。
在自然景色下,室内陈设也愈发简约质朴。素色墙面、自然材质、温润色调之下的家具与器物构成空间的全部,而流动的光影、一阵花香、一阵风吹则成为调动情绪的灵动因子,质朴的表象收敛在舒适温润的气息里,是设计师与自然共生的理念使然。
主体框架结构下,天花必不可少会有承重梁位,所以也呈现出客房天花的多样格局,设计师将原阳台区域建筑的原始形态自然袒露,卧室内天花构造以弧形呈现,构筑出流动且不规则的美感。
在这里,植物充当功能性的存在,设计师将地面做了一小块区域的抬高,预设成“画框”,不同高度、疏密程度的植物介入,形成了“自然”画笔下的艺术,并且随着时间、季节的转移而变化。使得开门见景,强调空间与自然的互动,也增强了空间的松弛感。
将浴缸设置在窗外,抬眼是万壑流青,远山辽阔,治愈静心。静享一场黄昏。
海边的恬静与清雅,安抚行人的躁动与疲乏,在此间,人更能感受到天地之静,感受到自然所赋予的净化。
阳台房房内陈设简约却又细致考究,木质和棉麻、布艺等天然材料的融合,打造一处与自然相拥的避世住所,屋内开了一道道窗户,将海景最大化的纳入进室内,光影如同玉盘滚落的大珠小珠,轻灵灵跳入各处,赋予音律般的生命力。
白日的通透视线,随着夜色逐渐柔和,在灯火处浸染月光,在卧榻上低语安眠。
记忆是个慢镜头,或是从远到近,或是在模糊中开场,面朝大海的空间内,总是让人不由自主的放松身体。
人与民宿的真实联系,更能反应和凸显设计的价值。所谓历久弥新,便是空间成为承载自然与情感的容器,人们接纳新的生命力和美好体验后再次靠岸,并驶向未来。
设计图纸
drawings
▽一层平面布置图
▽二层平面布置图
客服
消息
收藏
下载
最近


























