查看完整案例

收藏

下载

翻译
Architects:STUDIO I'll
Area:319m²
Year:2024
Photographs:Donggyu Kim
Design Team:STUDIO I’ll / Kim Hee One, Han Duck Ku
Client:Korean Electric Power Corporation (KEPCO)
City:Beobwon-ro
Country:South Korea
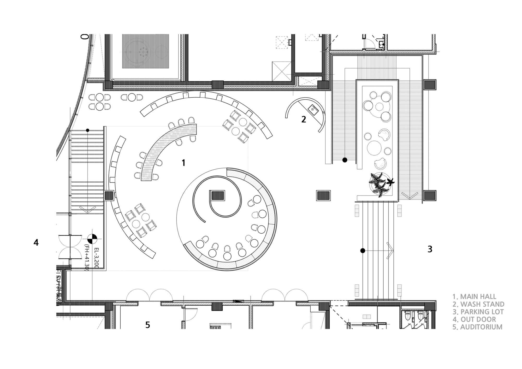
Text description provided by the architects. When I first visited the site, I felt overwhelmed. The entrance from the parking lot was elevated, exposing the interior, and the multipurpose hall's waiting area was always crowded—unsuitable for relaxation or community activities.
To address this, we designed partitions that allow for a smooth flow of space without crossing sightlines. The partition heights vary depending on their location, and the tops are softly connected to create natural, fluid movement throughout the area.
We used different materials on each side of the partitions, adding visual variety for those seated. Some partitions also include built-in bookshelves, enhancing the space's functionality.
Project gallery
Project location
Address:Beobwon-ro, South Korea
客服
消息
收藏
下载
最近




















