查看完整案例

收藏

下载
友利园位于广州市番禺区市桥街道,前身是番禺友利玩具厂,总占地约 2 公顷,总建筑面积 50000 平方米。该地块在 2010 年初步搭建了一个以电子商务为主题的综合园区。随着时代发展,到 2022 年园区的停车数量、交通动线、业态结构、园区形象等都存在滞后于园区企业需求的问题。
△ 改造前的友利园大门
项目离广州地铁 3 号线市桥站约 5 分钟车程,北靠禺山大道,东临光明南路,西侧和南侧与居民区相接。园区交通便利,生活气息浓厚。
△ 改造前的园区鸟瞰
由于园区急需业态升级优化、且园区形象与其位置重要性不匹配等经济及社会效益问题,2022 年起该项目开启升级改造设计计划。
△ 改造效果图
番禺市桥既有雄厚的历史底蕴,又受益于大湾区经济发展带来富裕的生活;同时也面临时代发展下新区的各种挑战。所以如何体现园区的新时代“番禺气质”,成为设计团队首要思考的问题。
△ 改造后的友利园园区夜景鸟瞰
项目以中间两栋高层楼栋为核心,20 栋建筑环绕布置。原项目中心因为有地下河道,建了一个利用率不高的网球场,和一些园林绿化。整个园区没有一处较为宽敞的休闲区。网球场的隔离网和绿化遮挡到园区很多建筑,进入园区后指引性和空间感知度较低。
△ 友利园总平面图
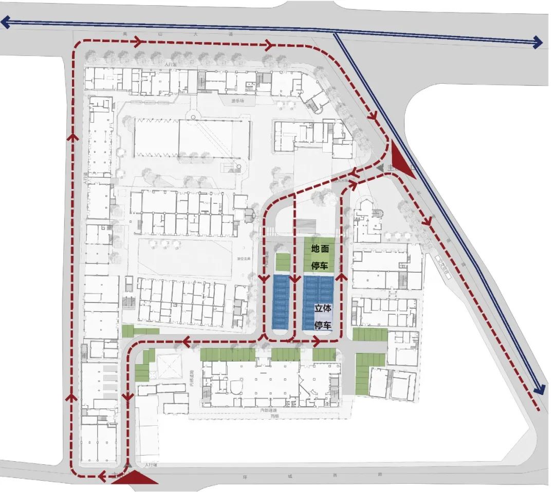
△ 车行系统和景观系统
首先拆除网球场和一些杂乱的绿化,平整出一个较为开阔的中心广场,营造「一心」,形成以广场为核心的空间布局。周边建筑围绕广场,形成一个向心力强且视线通透的围合空间,不仅展示出园区各楼栋的形象,也拓宽了楼栋内部往外的视野。
△ 中心广场改造前后对比
△ 开阔的中心广场
中心广场上布置简洁的线性铺装、一体化的城市家具绿化树池,为宽阔的广场空间增添点缀。
△ 铺装和城市家具融为一体
围绕园区的停车难题,同时兼顾视线通透、地下河道保护距离等要求,我们在广场南侧设置了一个 20 米高的立体停车场,最大限度退让出广场空间;同时得益于番禺成熟的机械停车建造技术,建成机械停车位 128 个。
△ 机械停车提高场地利用率。
为了确保安全并优化步行体验,园区进行人车分流设计,创造出多个可用于休闲、聚集、临时商业的户外休闲场所。
△ 改造前的友利园大门
「两区」即建筑中心的 1、2 号楼两栋高层核心建筑。中心广场的打造为建筑提供了开阔的展示面,同时运用传统园林中对景、框景手法,利用入口和高层建筑的空间关系强化视觉趣味性。
△ 2 号楼改造前后对比
△ 1、2 号楼立面形象
△ 建筑入口关系
毗邻禺山大道的沿街立面成为园区的对外形象展示面,作为重点打造,其他两个主入口极其周边的沿街展示面和西侧沿街展示面都把原来零散的形象化整为零作为整体统一设计。
△ 沿街立面改造前后对比
△ 沿街立面细节
「双环」为内外双环的步行系统,重点提升景观氛围和裙楼首二层的形象设计。外环部分串联园区沿街商铺,将其打造成一圈有机连续的商业动线。这些商铺在园区内外两侧都有入口,改变原先一侧为后勤界面的做法,最大限度打通园区内外,增强开放性。
△ 外环部分串联园区沿街商铺。
内环把原来人车混行的混杂局面梳理规划,围绕 3 号仓库楼形成系统的纯步行系统。
△ 内环纯步行系统
产业园的设计需要关注安全、控制成本,同时还要有视觉冲击力的设计作为亮点,才能留住优质企业。我们基于场地现状,以患为利,把原建筑一些突兀过时的建筑元素、构件作为重点节点进行艺术化处理。
△ 建筑元素艺术化处理
原设计中的外凸楼梯、电梯以及花坛立面存在厚实粗壮、比例失调的问题,我们采用可以自由掌控比例的表面材质使其协调配合;稍显呆板的花坛构件也被化零为整和重构秩序的手法变得生动有趣。为展示每栋楼体的标识性和趣味性,每栋楼梯结合楼栋号和天面梯房都打造了醒目有趣的标识。
△ 增强栋楼的标识性和趣味性。半弧形的穿孔铝板作为园区的外立面构件母题,贯穿于园区各栋楼体。建筑色彩以白色和浅灰色作为主色调,点缀橙黄色和咖啡色,营造简约清新的气质。
△ 半弧形的穿孔铝板
△ 亮眼的建筑色彩
光明南路入口大门处既是两侧建筑立面的纽带,又是沿街路面的聚焦点,因此设计时遵循大繁至简的原则,结合入口功能,将雨棚水平面和一侧垂直面做了一个双曲面衔接,形成简约飘逸的入口造型。
△ 入口大门的改造
南区的消防水箱放置于园区空地,突兀且侵占活动广场。利用水箱模块化的特征,在立面上编制摩斯密码图案,以黄黑撞色激活场域;又在水箱上方搭建钢结构平台,创造出一个高低错落的二层活动广场,使之既是能打卡拍照的艺术装置,又能具有实际使用功能。
△消防水箱的艺术化改造
原仓库空间做室内停车使用,在改造过程中将其打造成可做夹层的坡屋顶建筑。21 号楼将原先简易铁皮屋顶改造成可上人天台花园,市政过街强电收纳到招牌后方又能保证便于检修。
△ 仓库空间活化
△ 21 号楼的天台花园
照明设计与建筑设计同步进行,作为凸出建筑亮点和细部设计意图为建筑设计添彩。多数采用泛光照明,把园区的色彩关系以及细节特点通过灯光表现出来。
△ 园区照明为建筑增色
部分建筑构筑物采用了轮廓照明和透光照明,通过灯光将构筑物自身的形体特点展示出来。
△ 利用灯光展示构筑物形体。改造后的园区,最近又迎来夜市活动,充满活力的年轻群体在中心广场上尽情享受青春的礼赞,也实现了设计者最大限度提升园区活力营造松弛氛围的初心。
△ 友利园沿街夜景
项目信息
项目位置 |Location 广东省广州市番禺区光明南路 199 号
设计单位 |Design Firm 竖梁社诠释工作室
设计团队 |Design Team
主持建筑师| Design Direction 宋刚、钟冠球、许伟广、朱志远
设计团队| Architectural Design
项目负责人:庞丽雅
建筑设计:杨志豪、董信谦、黄洁、张睿、戚晋霖
景观设计:赵鹏飞、成清强
幕墙设计:深圳凯腾幕墙工程顾问有限公司
灯光设计:深圳市光艺规划设计有限公司
建筑面积|Scale of Construction
总用地面积约 2 公顷,总建筑面积约 50000 平方米
设计时间|Design Time 2021-2022
完成时间|Completion Year 2024
摄影|photographer
客服
消息
收藏
下载
最近






















































