查看完整案例

收藏

下载

翻译
Architects:large [medium] design office
Area:215m²
Year:2024
Photographs:Rémi Carreiro Photography
Interior Designer:Nadia Cannataro
Architect And Landscape Architect:Francesco Martire
City:Toronto
Country:Canada
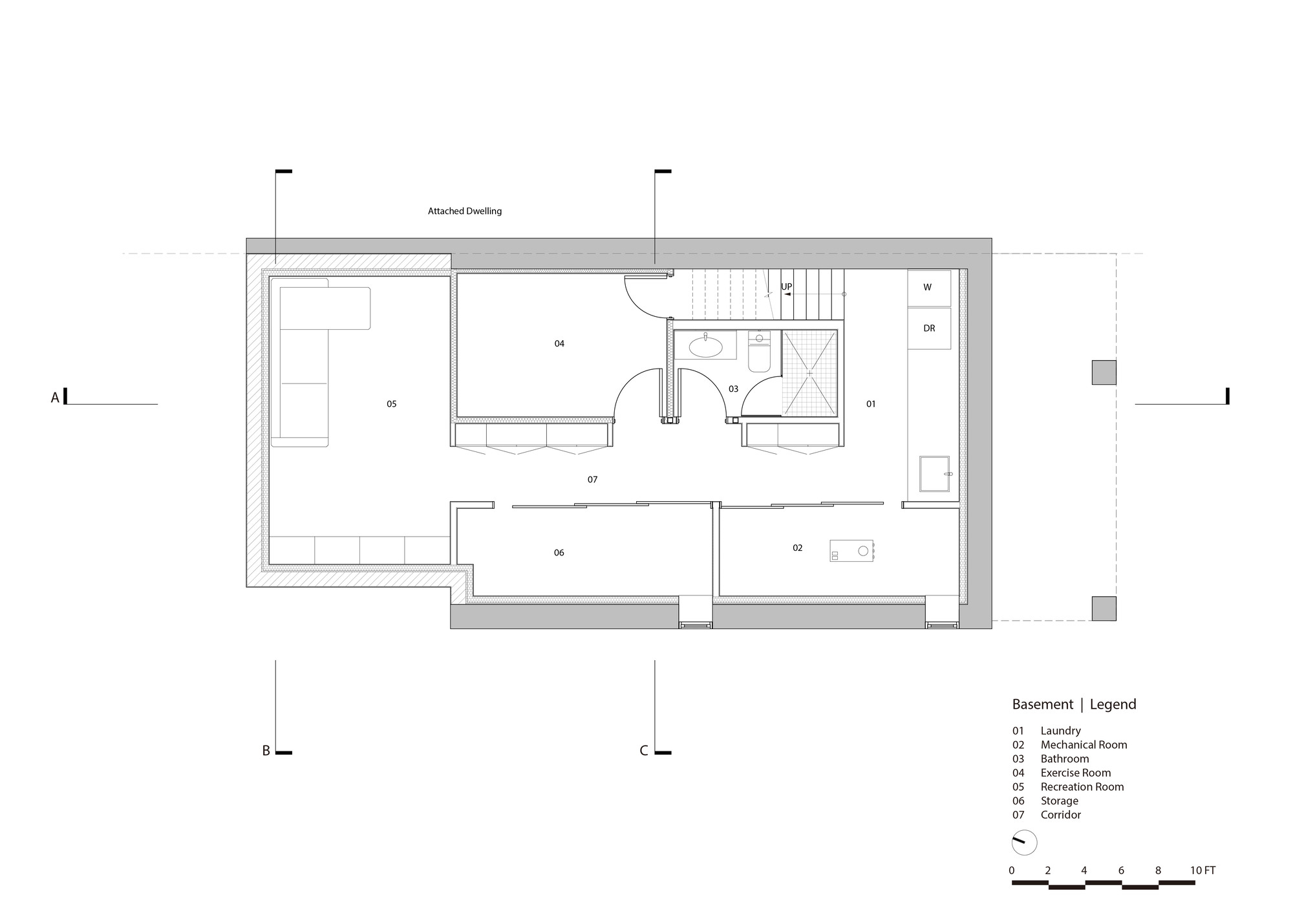
Text description provided by the architects. An additional bedroom for twin brothers currently sharing a room, and space for a proper dining table where of course the clients could enjoy meals with friends and family but could also host a variety of family-friendly activities ranging from game night to puzzles, to schoolwork. DoubleMint House is a two-story rear addition and partial renovation to a three-story semi-detached Edwardian-style home in Toronto. The project includes a fully renovated basement and a third-story walkout roof deck. The organization of the addition originates on the second floor in creating two bedrooms of very similar qualities with only subtle differences; a nod to the eventual occupants of the bedrooms. The room proportions and dimensions are very similar, identical windows are situated in each room, and the rooms participate equally in a narrow double-height space at the end of the bedrooms. The subtlety in the differences is situated in the sculpting of the ceilings and the hue of blue paint on the exterior facing the bulkhead of the double-height volumes.
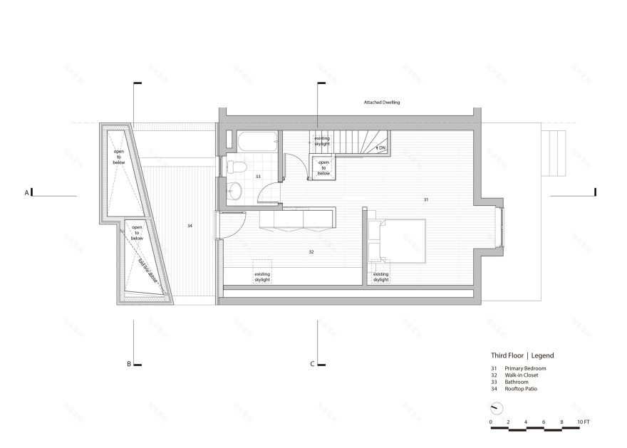
The two-story rear addition creates an opportunity to walk out from the third-story primary bedroom onto a roof deck. This was not part of the original brief but was welcomed by the clients as a replacement for the green space lost at grade by the increased footprint of the addition. A thick guard was developed to allow for a double height volume in the twin bedrooms below, to provide privacy for adjacent neighbors and the clients, and to provide a space for a green roof. The clients adore this space for book reading, coffee drinking, evening chatting and after-dinner wine sipping.
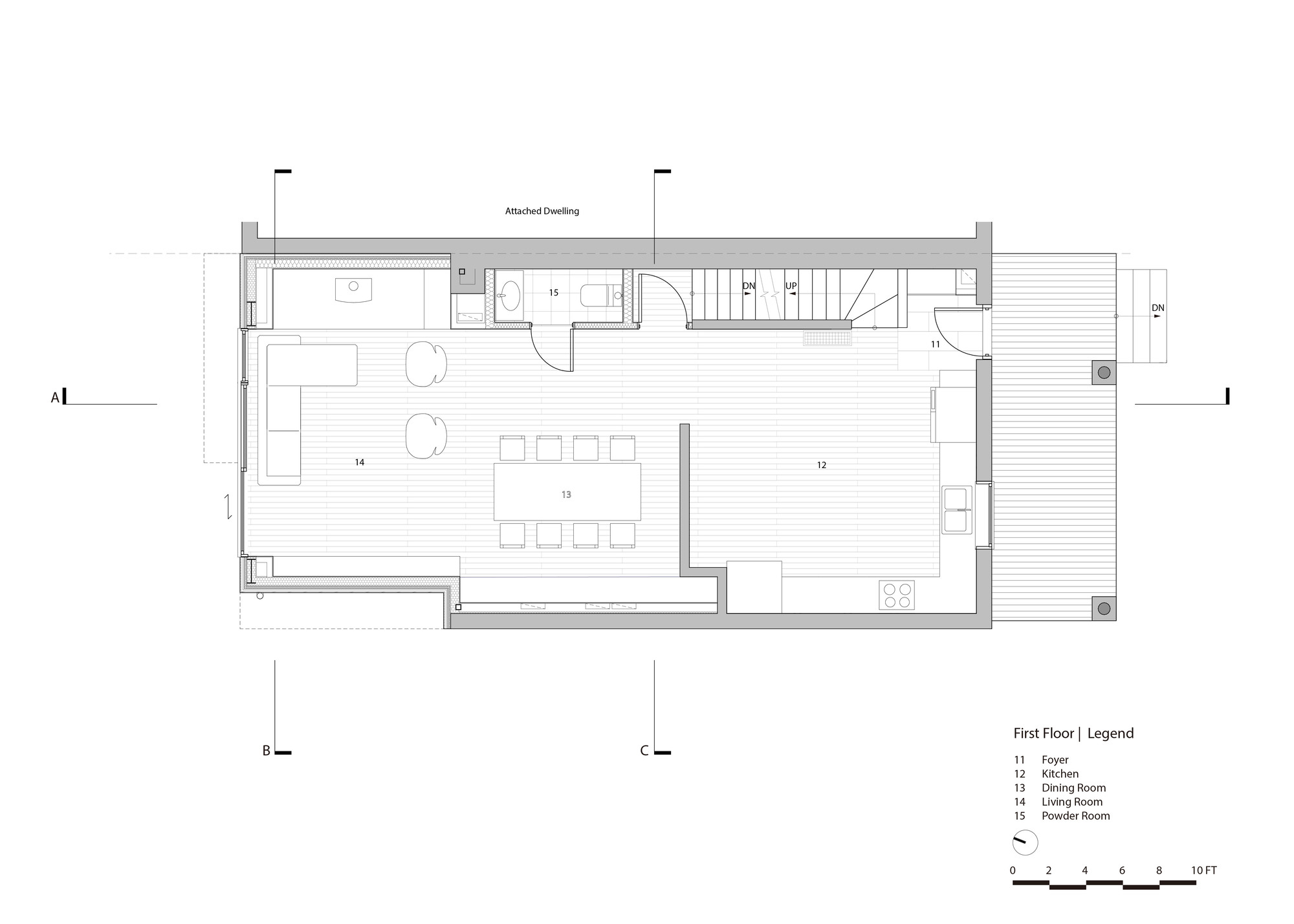
The ground floor was extended to align with the attached dwelling. It includes the existing kitchen with the extension housing a proper dining and living space. A long millwork piece on the west side and a composition of white oak panels and blackened steel on the west side are interior liners connecting the old and new footprints. The millwork piece displays a large collection of books, an ever-growing collection of vinyl records and record players, and hides an assortment of dining wares behind cabinet doors. The counter space can be used for display or as a serving space. The white oak panels camouflage two doors: one to the basement stairs and the other to a new powder room. The blackened steel lines a large niche for a wood-burning stove reused from the existing house and a two-sided set of steel shelves to store firewood. The north face is an expansive window and glass sliding door inviting indirect light to enter the space as well as producing opportunities for cross ventilation.
The house is defined by an interesting set of interactions between old and new that are neatly dovetailed, and by finding opportunities to be inventive spatially to create distinctive moments. A small open to below on the third floor aligns with an existing skylight bringing light into the corridor of the now deeper floor plate below. Interesting reflections are created by its composition of light, glass, and mirror. The thick guard creates an outdoor space while also expanding the height of the bedrooms below. Millwork and wood panels are used to provide connectivity and overlap between old and new while slotting themselves neatly into existing millwork or details.
Project gallery
客服
消息
收藏
下载
最近




























