查看完整案例

收藏

下载
这座建筑位于波尔图历史中心的心脏地带,是 19 世纪末的见证。建筑共有五层,上层为住宅,下层为商业。由于它所在的街道(Rua de Mouzinho da Silveira)被城市界面——绝大多数为底层商业,上层住宅——所完美界定,从这个角度来看,修复后的建筑基本上延续了这一角色,有助于从规划和立面处理的角度提高建筑街区的一致性和质量。
The building, located in the heart of Porto’s historic center, stands as a testament to the end of the 19th century. Comprised of 5 floors, it is intended for housing on the upper floors and commerce on the upper floor. As the street where it is located (Rua de Mouzinho da Silveira) is perfectly delimited by a continuous urban front and, for the most part, made up of residential buildings with commerce on the ground floor, from this perspective, the rehabilitated building essentially assumes, a role of continuity, contributing to the coherence and quality of the complex, not only from a programmatic point of view, but also in the treatment of the facades.
▼外观,exterior view© Ivo Tavares Studio
▼立面,facade© Ivo Tavares Studio
▼立面细部,facade details© Ivo Tavares Studio
▼露台,terrace© Ivo Tavares Studio
以保护和修复具有建筑价值的现存元素为优先,干预的本质旨在强化建筑的独特性,加强其对城市环境的影响。同样,居住类型的多样性限制了允许的类型,从而提高了建筑的灵活性,进而增强了其长期的韧性。
The nature of the intervention, giving priority to the conservation and rehabilitation of existing elements of architectural value, aims to reinforce the uniqueness of the building, reinforcing its impact on the urban context. In the same sense, the diversity of occupied housing typologies limits the types of occupation permitted, and thus increases the flexibility of the building and, consequently, its long-term resilience.
▼入口,entrance© Ivo Tavares Studio
▼楼梯,staircase© Ivo Tavares Studio
这种干预需要对建筑内部空间进行彻底的改造,然而,保留了原始建筑记忆的基本元素被保留了下来,或者当上述元素的保护状态阻碍的修复工作的情况下,采用了相同设计和材料的新元素。在隔间、室内空间、固定家具、卫生部件和材料之间的表皮中采用了明显的现代语言,与历史元素相比更有助于强化记忆。
The intervention entailed the complete reformulation of the building’s interior spaces, however, the elements considered fundamental for preserving the memory of the original construction were maintained or, in cases where the state of conservation of the aforementioned elements prevented their rehabilitation, producing elements new ones of the same design and material. The adoption of a contemporary language clearly in the design of the compartments, interior spaces, fixed furniture, sanitary parts and finishes between materials contribute, in comparison with historical elements, to reinforcing this memory.
▼卧室,bedroom© Ivo Tavares Studio
▼起居室,living room© Ivo Tavares Studio
▼厨房,kitchen© Ivo Tavares Studio
▼厨房,kitchen© Ivo Tavares Studio
▼卧室,bedroom© Ivo Tavares Studio
▼卧室,bedroom© Ivo Tavares Studio
▼浴室,bathroom© Ivo Tavares Studio
▼浴室,bathroom© Ivo Tavares Studio
使用的表皮材料和内核的选择为空间的未来使用者奠定了一个坚实的基础,方便后续(装饰的、功能的和环境的)个人元素的添加,并鼓励其占据,在这里尺度的碰撞被强调。这与公共空间采用的材料(木材和裸露的混凝土)形成鲜明对比,这些材料的纹理和颜色属于这个空间,本质上是非个人的,有自己的环境与个性。
The selection of cladding materials and cores used within the fireworks taught creates a firm foundation, where the confrontation of scales is emphasized, on how to direct the personal elements (decorative, functional and circumstance) of future users of the space, encouraging its appropriation. This clearly contrasts with the materials adopted for the common spaces (wood and exposed concrete), whose texture and color belong to this space, inherently impersonal, an environment and personality of its own.
▼公寓室内一瞥,a glimpse at the apartment interior© Ivo Tavares Studio
▼楼梯,staircase© Ivo Tavares Studio
▼室内概览,interior overview© Ivo Tavares Studio
▼局部,corners© Ivo Tavares Studio
▼首层和地下室平面图,B1 and ground floor plan© Diana Barros Arquitectura
▼夹层平面图,mezzanine floor plan©Diana Barros Arquitectura
▼2 层平面图,2F plan
©Diana Barros Arquitectura
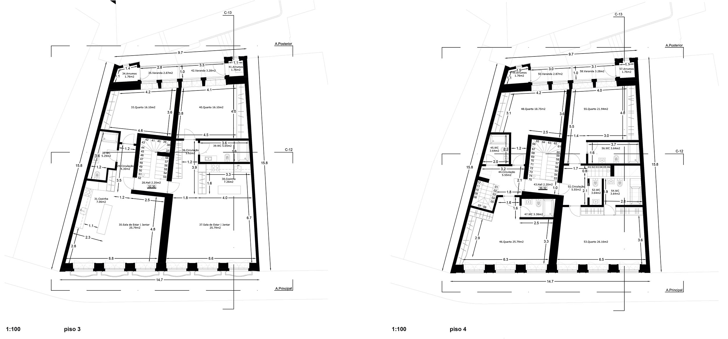
▼3、4 层平面图,3&4F plan
©Diana Barros Arquitectura
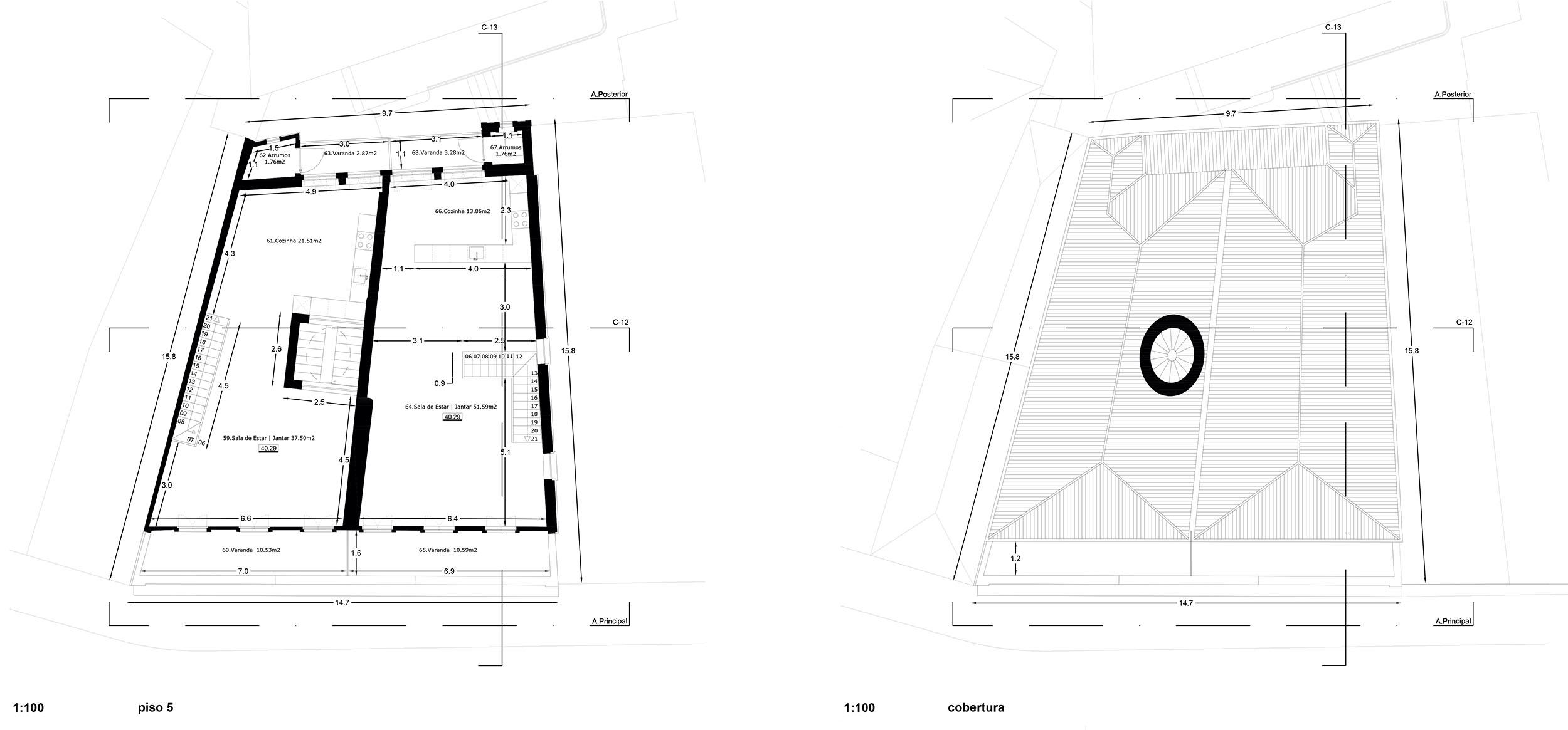
▼5 层屋顶层平面图,5F and roof floor plan©Diana Barros Arquitectura
▼立面,elevation©Diana Barros Arquitectura
▼剖面,section©Diana Barros Arquitectura
Project name: Edifício de Mouzinho da Silveira
Architecture Office: Diana Barros Arquitectura
Main Architect: Diana Barros
Collaboration: Marcos Maia; Joana Fernandes
info@dianabarros.archi
Facebook:
Instagram:
Location: Porto, Portugal. Oporto, Portugal
Year of conclusion: 2022
Total area: 820 m2
Builder: Vilacelos – Construções S.A.
inspection: ADD Building
Engineering: NCREP – Consultoria em reabilitação do edificado e património
Acoustic Design: DAJ Engenheiros Associados
Fluids Engineering: DAJ Engenheiros Associados
Thermal Engineering: DAJ Engenheiros Associados
Architectural photographer: Ivo Tavares Studio
Website:
Facebook:
Instagram:
客服
消息
收藏
下载
最近












































