查看完整案例

收藏

下载
△建筑实景概览
“博元幸福城社区中心是一座小而精的社区综合服务设施,包含室外游戏场地以及室内的社区服务站、老年活动室、阶梯式阅读区、开架书吧、儿童活动室、学生自习室以及水吧台。室外游戏场地包含一个坡面,将地面与二层平台连接,打破建筑层间边界,并与室内的阶梯式阅读区形成了环形流线。建筑的室内空间采用丰富的材质与色彩搭配,并根据不同的使用功能设置色彩主题,整体营造出愉悦的空间氛围。”
The Boyuan Happiness City Community Center is a compact yet sophisticated facility offering comprehensive community services, featuring outdoor playgrounds and various indoor spaces including community service stations, elderly activity rooms, tiered reading areas, open-shelf reading areas, children’s activity rooms, student study rooms, and a water bar. The outdoor playground includes a sloping surface that connects the ground level to a second-floor platform, blurring the boundaries between floors and creating a circular flow with the indoor tiered reading areas. The indoor space of the building is designed with a variety of materials and colours, tailored to different functional areas, thereby creating an overall cheerful and welcoming atmosphere.
01Fifth Facade - Integrating into the Public Landscape Green Island in the Large Community
Public green islands in large communities
△小区围合布局
博元幸福城社区中心位于陕西安康博元幸福城中央绿地中,是大型社区的社区中心,也是小区居民的公共客厅,社区中心与场地超大的景观广场融合在一起。整个居住区规划布局采用了大围合的模式,高层住宅围合了中央的大绿地,博元社区中心在高层住宅的俯瞰下,第五立面显得尤其重要。两层的社区中心屋面绿色与儿童游憩坡道融合在一起,形成了连续的绿色景观底盘,也满足了高层室内居住者的视觉体验。
△鸟瞰总平图
在现代城市化进程中,城市空间的稀缺和社区生活的压力日益增加。然而,一个富有生机的公共绿岛能在繁忙的都市生活中提供一个宁静的庇护所。公共绿岛不仅是休闲放松的地方,更是社区生态系统的重要组成部分。它通过提供绿化、休闲设施和开放空间,提升了居民的生活质量。
博元幸福城社区中心的绿地设计考虑到不同年龄段居民的需求,从开阔的草坪到花卉园区,再到配有健身器材的运动区域,每一处细节都经过精心规划。通过合理的植物配置,绿岛不仅具有观赏性,还在改善空气质量、调节温度和提供遮荫方面发挥着重要作用。
△与景观联系的绿岛。此外,公共绿岛也是社区活动的理想场所。博元社区中心设有宽敞的户外场地,可供居民举办各种活动,如户外音乐会、社区集市和节庆庆典。这些活动不仅丰富了社区的文化生活,还加强了居民之间的互动和沟通,促进了社区凝聚力。
△融入社区绿化的建筑
博元幸福城社区中心正是这样一个充满活力融入社区的公共空间,它为大型社区提供了一个增加家庭单元之间交流、增进邻里关系的场所。
02全龄化适用的功能内核
Functional kernel for all ages
博元社区中心以全龄化为设计核心,旨在为不同年龄段的居民提供合适的功能和服务。全龄化意味着从儿童到老年人,都能在这里找到自己的活动空间和社交场所。这种设计理念不仅考虑到了每个年龄段的特殊需求,还促进了跨年龄段的互动和交流。
△建筑黄昏实景入口
对于儿童,博元社区中心设有专门的儿童游乐区,包括安全的游乐设施和丰富的教育资源。这些设施不仅为儿童提供了娱乐的空间,还帮助他们在游戏中学习和成长。
对于青年人,社区中心提供了多功能运动场地和活动室,可供他们进行体育锻炼、社交活动和兴趣学习。
老年人则可以在专门的休闲区和社区花园中享受宁静的时光,同时还提供了适合他们的康复和健康管理设施。
△ 常设的覆盖全龄的内部功能
全龄化的设计还体现在社区服务的多样性上。博元社区中心设有社区健康中心、文化活动室和图书馆等设施,满足居民的健康、文化和学习需求。通过提供全面的服务和设施,社区中心不仅是一个休闲娱乐的场所,更是居民日常生活的重要组成部分。
03书籍与阅读 - 一个贯穿老青幼群体的主题置入
Attractionofspatial aesthetics
惟书有色,艳于童年,惟书有华,秀于成长,当阅读的习惯在家庭蔓延,书籍也就成为了家庭老幼浸润的高级爱好。安康是一个充满书香气息的城市,对于书籍的热爱也使得社区中心以书籍为主要空间主题的设计成为可能性。
△隐匿于绿化中的开架
若隐若现的图书空间隐匿于景观树林之间,走进这处可以阅读的绿意之内,在书香的氛围里汲取生活的力量,与书籍相伴,与过去、与当下的不同知识体系进行内在的交通,探索思想的出口以及精神上的需求。对于社区中的人们来说,打开家庭的边界,消融人与人之间的心理界限,在这里精神和知识都得到了升华,比沉溺于低级趣味的娱乐更有利于家庭的和睦与老幼的身心健康与成长。
△与公共台阶相连的书架
连接建筑一二层的大台阶,以开架书籍为墙面,通过逐级而下的大台阶连接了一二层的空间。台阶除了实现空间上的联通,也成为了各种活动的可能性的发生场所。
△与公共台阶相连的书架
在设计中,除了特定的功能空间以外,我们把书籍作为设计的主要元素,串联了上下一二层的空间。原木色与森林成为空间的主要色调,开架与阅览成为了空间的线索。
△与公共台阶相连的书架
04儿童空间的充分考虑
Adequacy of children’s space
△户外儿童空间
孩童是家庭凝聚力的核心,也是家庭参与社区交往的重要主题,所以儿童空间的设计是博元幸福城社区中心的重要组成部分。这些空间不仅考虑到儿童的安全和健康,还旨在通过丰富多样的设施和活动,激发他们的创造力和想象力,同时打破了家庭单元之间的封闭,开启了以孩子为主题的社区交往生活。博元社区中心的儿童空间包括室内和室外两部分。
△户外儿童空间
户外儿童活动区配备了适合不同年龄段的游乐设施,如滑梯、攀爬架和积木区。这些设施经过精心设计,确保了安全性和互动性,帮助儿童在玩耍中发展运动技能和社交能力。同时设有一个大型的儿童游乐场,包括沙坑、水池和草坪区,为儿童提供了一个与自然亲密接触的机会。
△儿童开架区
室内的儿童空间主要用于幼年孩童的日间照料和学龄儿童的放学后两小时的作业看护阅读时间。相较于以往开放的大院孩童生活,博元社区中心配套了更好的课后公共空间,为社区的孩子在放学到家长下班之间的空暇时间创造了一个安全安静且积极向上的空间场所。
△儿童活动区
除了游乐设施,博元社区中心还提供了丰富的儿童教育资源。这里定期举办各种儿童活动,如手工艺课、故事会和科学实验,为孩子们提供了学习和探索的机会。这些活动不仅丰富了儿童的课外生活,还帮助他们在娱乐中学习和成长。
△儿童活动设施
儿童空间的充分性还体现在对特殊需求儿童的关爱上。博元社区中心设有无障碍设施和特殊教育资源,同时一些儿童设施的小细节,(上图为公共空间儿童的大滑梯)确保每一个孩子都能在这里找到一个社区的庇护感和安全感。
05通用空间与家庭生活的公共性
Scenario applications in common space
△内部空间的通用性与不同使用场景
通用空间的设计是博元社区中心的重要特色之一。这些空间灵活多变,可以根据不同的活动需求进行调整和使用,为社区活动提供了广泛的场景应用。
△首层与公共台阶交接的空间是留白的通用空间
△首层与公共台阶交接的空间是留白的通用空间
△夜幕下的通用空间使用人群
博元社区中心的通用空间包括多功能厅、活动室和户外广场等。这些空间不仅适用于日常的社区活动,如健身课程、手工艺工作坊和兴趣小组,还可以用于特殊活动,如婚礼、会议和展览。多功能厅配备了先进的音响和照明设备,可以根据活动需求进行不同的布置。活动室则提供了一个更加私密和安静的环境,适合小型会议和讨论。
△二层露台预留了岛台和上下水,预留家庭户外聚餐空间。
户外广场是通用空间的重要组成部分,对于博元社区来说,家庭日的公共空间聚餐活动频次会比较高。这个开放的空间设计灵活,可以根据活动的规模和性质进行调整。无论是大型社区活动还是小型聚会,社区中心的通用空间都能灵活应对,为居民提供了丰富的活动选择的可能性。
06 社区服务空间的置入 Integration of landscape and building
△儿童活动设施
设计将社区服务中心的功能放置在入口位置,将服务与社区的公属性联系在一起。开发商自身的物业体系真正服务到社区居民的需求,同时在不同的时段对在社区中心生活的居民也能积极的引导,服务和照看。
08 户外景观与游憩场地与建筑一体化
Integration of landscape and building
△社区中心景观一体化
△社区中心景观一体化
在现代城市更新的背景下,博元社区中心的设计充分体现了景观化建筑一体化的理念。这个理念不仅强调建筑与自然环境的融合,更注重建筑本身的景观价值和美学意义。
△儿童活动设施
博元幸福城社区中心的建筑设计采用了大量的自然元素,如绿色屋顶、垂直绿化和大面积的玻璃幕墙。这些设计不仅提升了建筑的美感,还通过引入自然光和自然通风,改善了室内环境的质量。同时,建筑的外观和周围的景观和谐统一,形成了一道美丽的城市风景线。
△隐匿于绿化中的建筑
景观化建筑一体化的另一个重要方面是功能与美学的结合。社区中心的各个功能区通过合理的布局和设计,不仅满足了不同用户的需求,还为居民提供了多样的景观体验。例如,中心的中央广场设计为一个多功能的开放空间,周围环绕着绿地和树木,不仅适合举办大型社区活动,还为居民提供了一个放松和社交的场所。
△景观系统与社区中心建筑的融合
同时泳池、步道、绿化系统、家庭屋顶农田的设置,真正融入到了社区生活中,同时与社区中心的建筑结合。这种景观与建筑的无缝结合,不仅提升了建筑的使用价值,还创造了一个具有吸引力的公共空间,为居民提供了一个高质量的生活环境。
07社会机构的引入
Attractionofspatial aesthetics
△安康图书馆挂牌的安康阅读吧
社区中心在运营上与安康图书馆合作,成立了社区中的安康阅读吧,成为了安康图书馆体系中的一部分。这样使得图书陈设有了运管更新的特点,根据社区居民的借阅特点不定期的更新书籍,使得陈设的书籍不单单是一种摆设,更贴合社区借阅的特点和需求。24H 的自助阅读,为社区中心的文化生活增加了书香的气息。
08 空间美学与设计细节 Attractionofspatial aesthetics
△空间材质运用与节点处理
建筑室内一体化以及注重空间细节的落地是项目的又一大亮点。由于社区中心的功能在后期使用中存在调整的空间和余地,所以材料的细节比例、室内风格显得尤其重要,同时也能够在后续不断变换的使用场景中空间美学的吸引力是博元社区中心的一大亮点。在设计上,博元社区中心注重细节和整体氛围的营造,以现代简约的风格为主,结合自然元素,创造了一个和谐、舒适的公共空间。
建筑外观采用了大面积的玻璃幕墙和自然材质,使得建筑在视觉上与周围的自然环境融为一体。室内设计则注重使用温暖的色调和柔和的灯光,营造出一种温馨、宜人的氛围。无论是墙面的艺术装饰,还是家具的选择,都经过精心挑选,以保证整个空间的和谐和美感。
△空间美学设计
空间美学不仅仅是视觉上的享受,它还通过细致的设计,提升了居民的使用体验。UUA 对社区中心的每一个角落都经过精心设计,考虑到了功能性和美观性的结合。无论是儿童游乐区、健身房,还是咖啡厅和阅读区,每一个空间都具有独特的美学风格,为居民提供了一个视觉和心灵上的双重享受。
09后期运营的留白与通用性
White space and versatility in post ops
△通用空间留白的可能性
△通用空间
博元社区中心在设计之初就考虑到了后期运营的灵活性和通用性。留白的设计理念为未来的多样化使用提供了可能性,这种设计不仅适应了社区居民不断变化的需求,还为社区活动的多样化提供了广阔的空间。
△通用空间
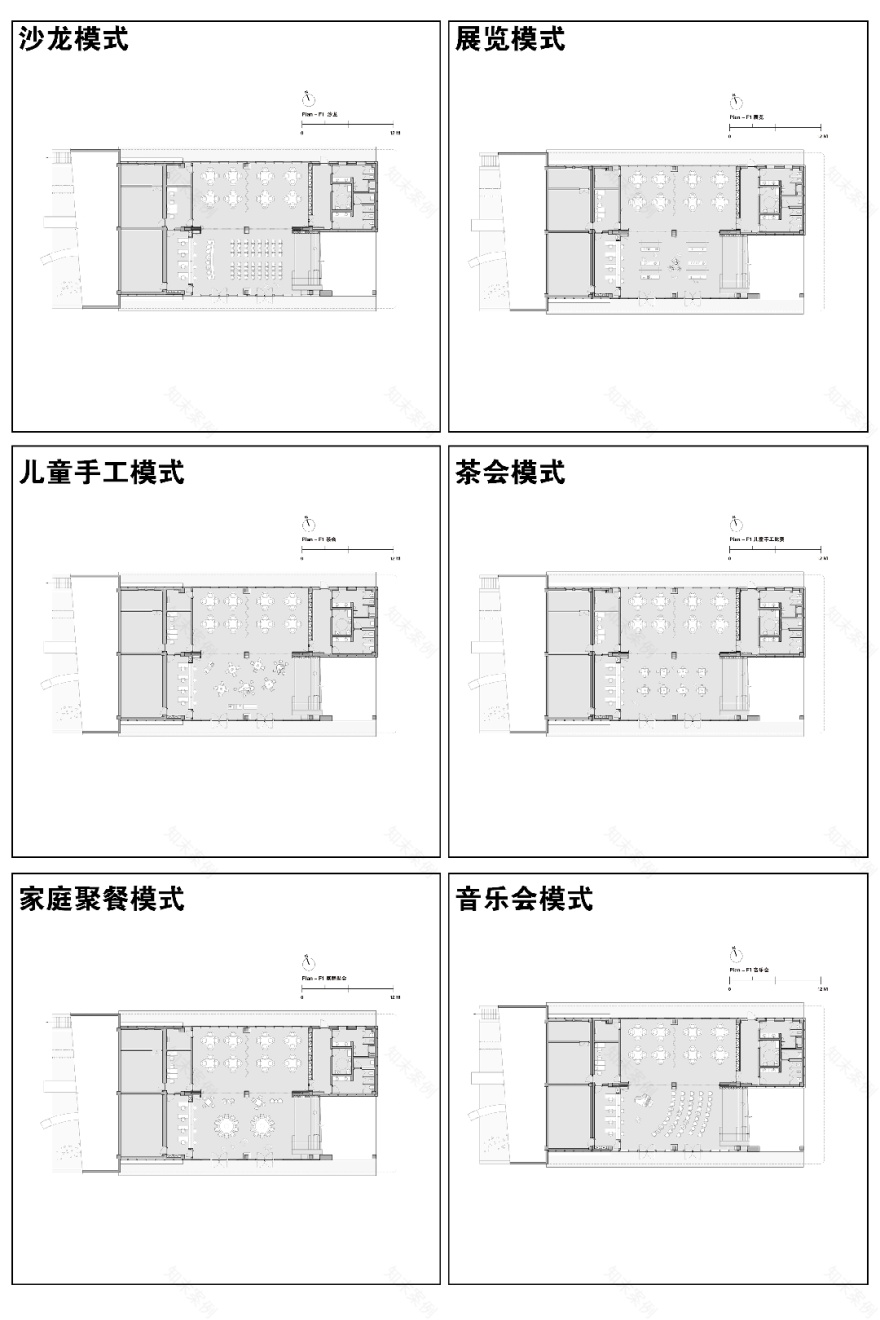
留白设计不仅体现在建筑空间的布局上,还体现在设施和设备的选择上。多功能厅和活动室采用了可移动的隔断和可调节的家具,使得这些空间可以根据不同的活动需求进行调整。无论是家庭日、聚餐、烧烤,还是生日派对、读书会、社区分享、沙龙和电影日,这些通用空间都可以灵活变换,为社区活动提供支持。
后期运营的通用性还体现在社区活动的组织和管理上。博元社区中心与社区组织和志愿者紧密合作,共同策划和组织各种活动。通过这种合作模式,不仅丰富了社区活动的内容,还增强了居民的参与感和归属感。这种灵活的运营模式使得社区中心能够不断适应社区的变化和发展,为居民提供一个永不过时的活动场所。
10小结
Future Prospects
△夜景中的社区中心
博元社区中心在城市更新的大背景下,通过一系列创新和周到的设计,成功地为大型社区提供了一个全龄化、多功能、生态友好且美学兼具的理想空间。它不仅满足了现代城市居民的多样化需求,还为城市的可持续发展贡献了力量。
博元社区中心的成功经验为其他城市更新项目提供了宝贵的参考和启示,展示了如何在现代城市中创造一个包容、创新且可持续的社区空间。博元幸福城的房价也持续稳定的走高,由于有了比较好的社区运营,小区房价在市场低迷的情况下也在当地持续稳定增长,初期幸福城业主不管自住还是投资都得到了很好的回馈。
总的来说,博元社区中心通过公共绿岛的营造、全龄化的功能布局、景观化建筑一体化的设计、灵活多变的通用空间、儿童友好的设施、后期运营的通用性和精致的空间美学,成为了一个满足大型社区全龄化需求的理想社区空间。
12平面图纸
Drawings
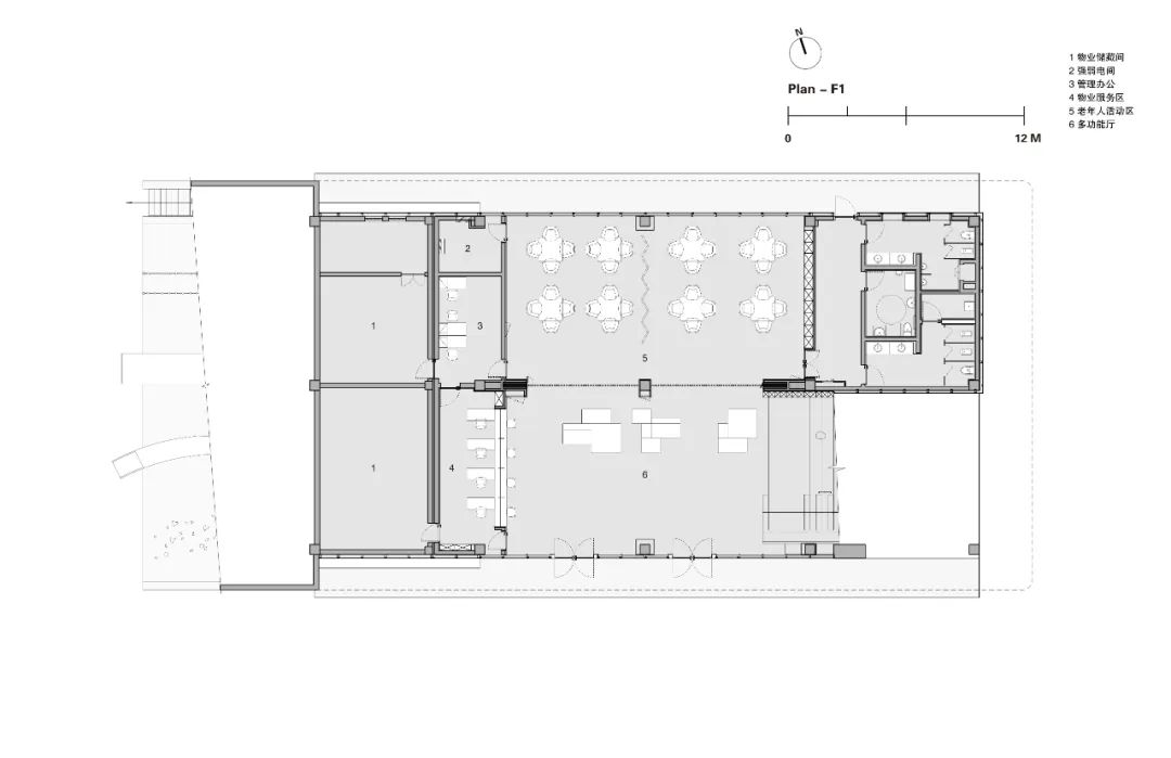
△一层平面图(常设模式)©UUA
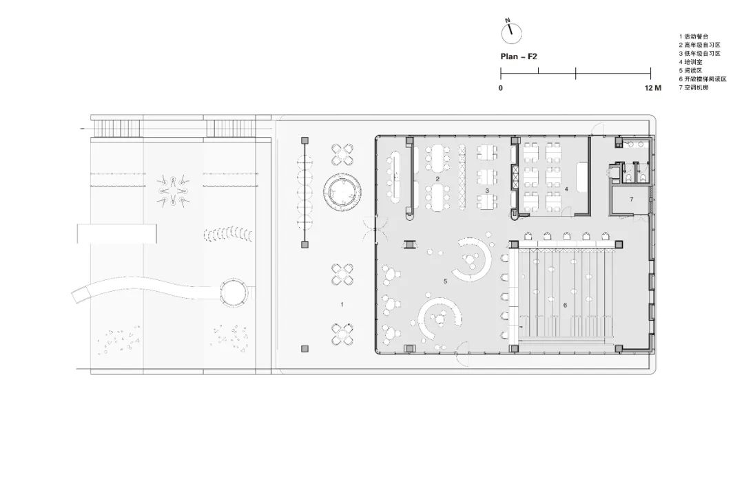
△二层平面图(常设模式)©UUA
大型社区全龄社区中心的营造
博元社区中心
惟书有色,艳于童年
惟书有华,秀于成长
阅读,让心灵澄净,让眼睛有光
阅读,和经典对话,与圣贤相遇
草长莺飞,天地清宁
当书页的芬芳浸润童年
当阅读的习惯在家庭蔓延
伴着春夏的缱绻花香
读书,岂不美哉。
项目信息:
项目名称:安康博元幸福城社区中心
项目业主:陕西安康博元
项目地点:陕西安康
项目规模:1200㎡
建筑设计:UUA 建筑师事务所
室内设计:UUA 建筑师事务所
主持合伙人:李泳征,李其郅
建筑:邓亮,贺文博,夏渤洋,林杨艾湲,杨波,王发路
室内:马兴华,方泓博,陈立业,赵胜利
结构:马凯、王胜男
设备:张璇、孙林森、李鑫
建筑摄影:直译建筑摄影
客服
消息
收藏
下载
最近









































