查看完整案例

收藏

下载
至若春和景明
波澜不惊
此案是
合肥-
庐江碧桂园时代之光
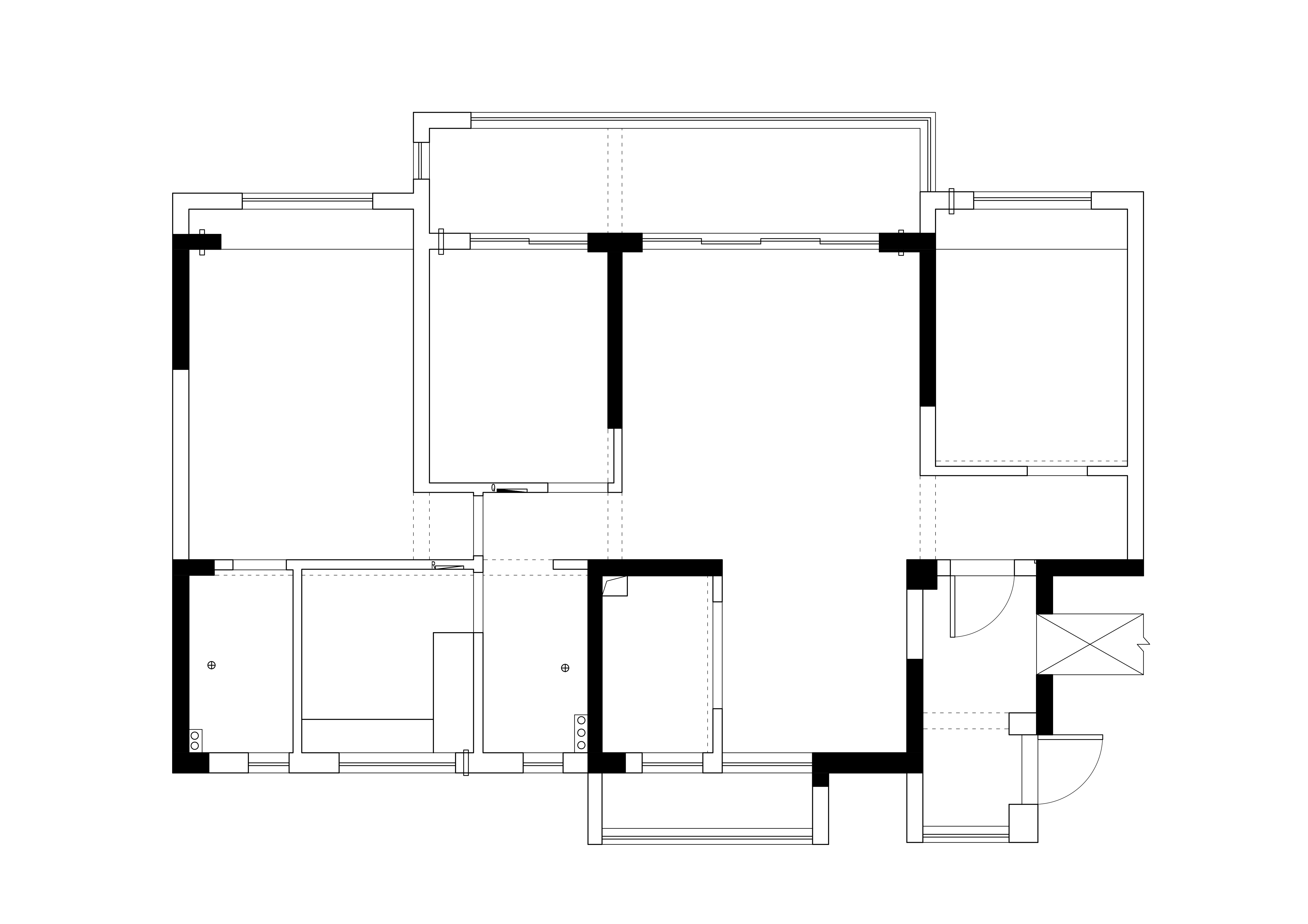
的144㎡户型,一家四口居住,性格阳光的业主希望归家是特别明亮、温暖的,有更多可以陪伴小朋友成长互动的空间,同时对收纳有较高要求。
户型上餐厨、卧室是最主要改造区域,阳台并入、收纳隐形,多处同色、注重线条比例、细节上的极简,让这个家好看、好用、更好住!
很能装?
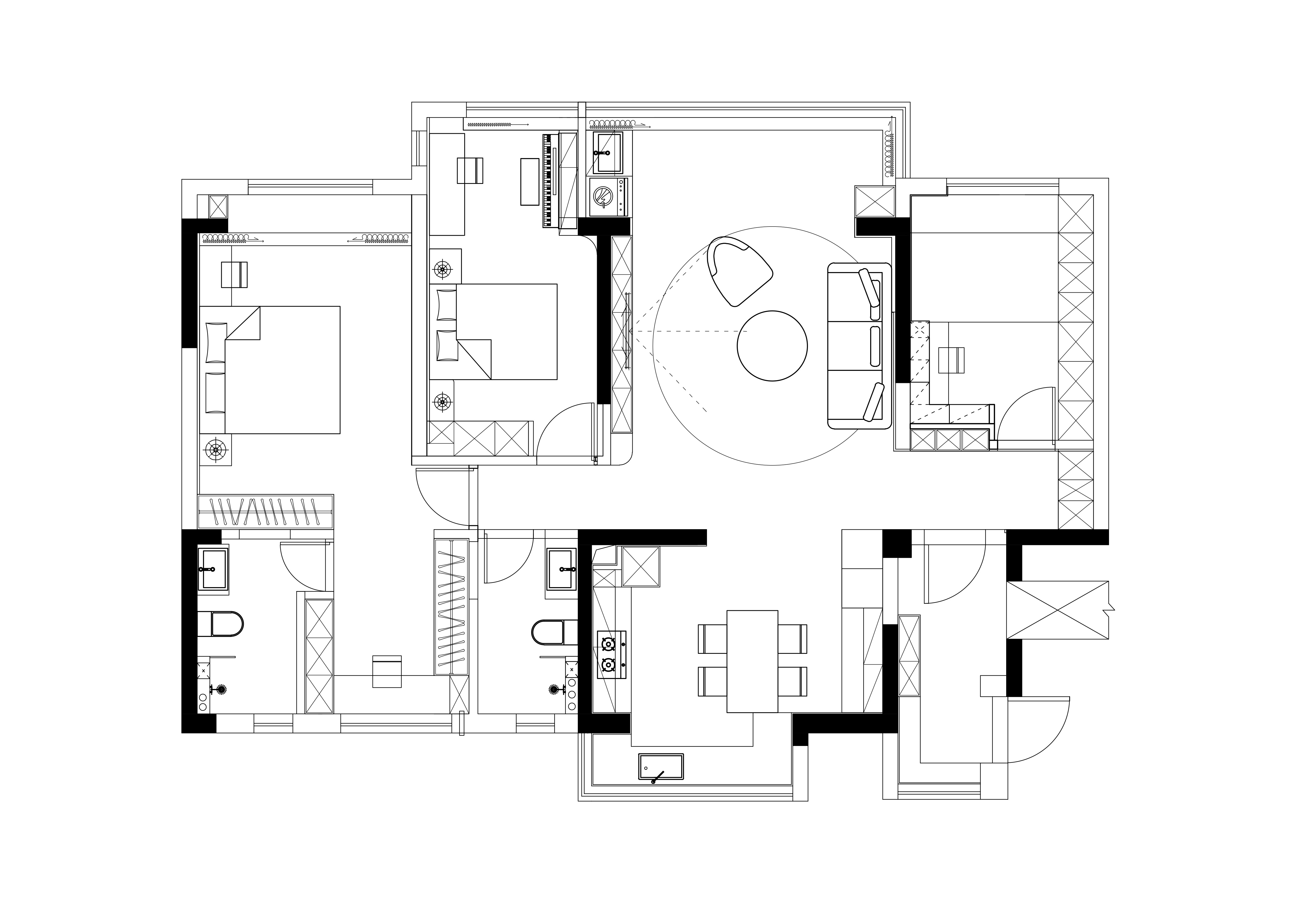
业主说:客厅一定要一整面的柜子!
阳台纳入后,客厅采光特别优秀,整墙收纳藏于电视四周,很能装又清爽,暖白色与原木色结合,空间自带治愈力,让家回归最简单的宁静。
最大改造?
餐厨是整个家改动最大的空间之一,
原始稍显局促的厨房被大胆释放成餐厨一体化
,冰箱、洗碗机等厨房电器内嵌,超大U型布局延伸备餐操作空间,方便厨房小家电的使用,明亮厨房将是未来承载很多陪伴与倾听的地方。
舍弃一间卧室?
舍弃一间次卧打造的超大主卧,重新规划动线、优化空间尺度,居住舒适度进一步提升,同时拥有三面衣柜收纳和半独立书房。浅色为主、木色铺陈,柔和又治愈的私人空间。
甜甜的儿童房内,一抹粉色童趣天真入梦,每个家庭成员都有一处自留地。
写在最后
“不赶什么浪潮、也不搭什么船,我自己有海”
私宅的设计往往会因为居住者的不同,呈现出不一样的气质。
回想起每一次和女业主的相见,都是满满阳光、随性、治愈力,还有对生活坚定的热爱,暖暖的新家即将入住,愿业主在这里收藏爱与生活,相约下一套大别墅啦~
info
项目地址:合肥-庐江碧桂园
项目面积:144㎡
项目类型:平层-毛坯
1111111
66666
整挺好
666666666666
真挺素,效果很不错,有机会学习一下施工图
学习了
整挺好
风格独树一帜666
客服
消息
收藏
下载
最近




































