查看完整案例


收藏

下载
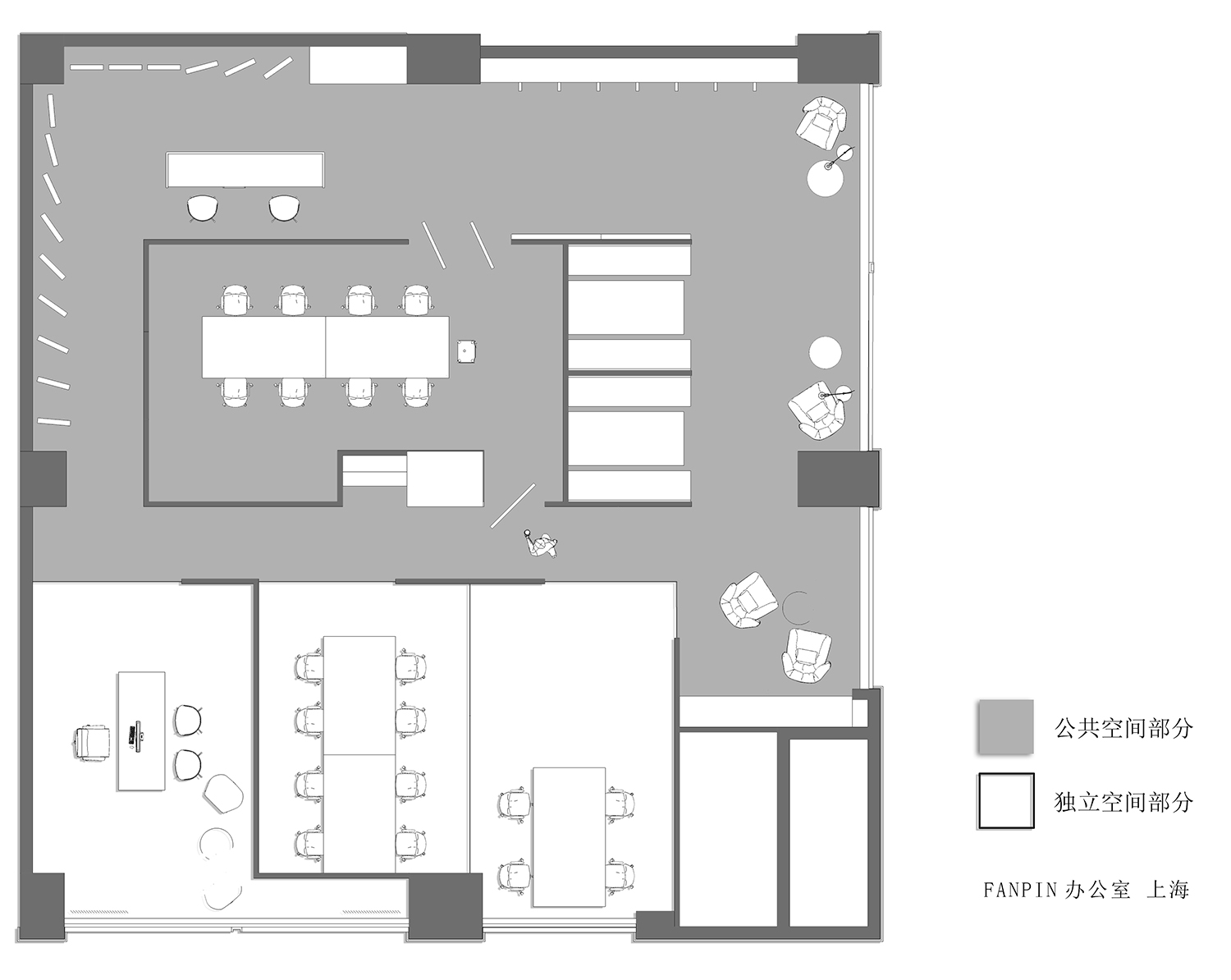
项目名称:FANPIN Office 项目地点:上海 室内面积:300平方米 设计时间:2018-10 设计师:金钟 室内设计团队:己十空间设计 主要材料:橡木皮、实木板、涂料、地毯
拍摄:车达 / 清源建筑空间摄影
本项目是我们办公与日常生活的地方,原本是一层调高空间的建筑,我们保留了原本的高度,设计了一个看上去更开阔的空间。整体还保留了原来的通透性。
进门设置了接待吧台,把公司形象墙简化的设计在了吧台后的主墙上,我们希望用一个轻松的环境去了解客户的需求或者和客户之间的交流。
办公室的窗户都在西面,我们大落地窗的区域设置了室内园景作为与内部空间的街景,平时看起来像是个半开放式的状态。
木饰面的吊顶缓和了墙面对比度较深的压迫感。
▼展示区
一墙之隔,就集合了办公、交流、材料展示等多混合空间。
办公空间的留白、开敞,换来的是更自由的办公心情。不需要花费大量的时间去塑造了一个建筑结构,更喜欢理解客户的需求和愿望,去设计一个整体的空间。
通透的办公空间不仅能带来舒适自由的氛围,而且还能够让办公空间中办公的人们在快乐的同时能时刻保有着办公的基调和热情。
客服
消息
收藏
下载
最近


















