查看完整案例

收藏

下载
一间能不被打扰的去思考和放松的小屋
A cabin where you have uninterrupted time to think and relax
人类天生就是创造者。实现自我梦想和理念,让我们感到充实。然而,我们经常会遇到当今时代特有的障碍:持续性的消息打扰,电子噪音,以及需要持续检查我们的手机的需求。这些纷扰妨碍我们充分发挥潜能,深入研究对我们至关重要的问题。因此,Dominik Ilichman和Adam Hofman创造了Hytta——一处处于自然之中的现代小木屋,在这里你可以不被打扰的创造和反思重要的事情。
▼项目概览
极简主义但突出重点
Minimalism for maximum focus
建筑师的主要目的是设计一处可以自然融于周围环境的居所,为思考和激发灵感提供充足的空间。融合了自然、私密性和高质量的工作空间的Hytta让人可以从日常生活中的喧嚣中解放自己,并且探索新的想法和真正珍视的事物。
▼融于自然
设计的目的是斯堪的纳维亚式的极简主义。没有任何不必要的元素来打扰人。同时,Hytta包括我们今天所习惯的标准,让人感到舒适,能够不受干扰地集中精力。露台和每一面的窗户将室内空间和周围环境相连,使自然也成为创造力与灵感的源泉。
空间安排
Spacial arrangement
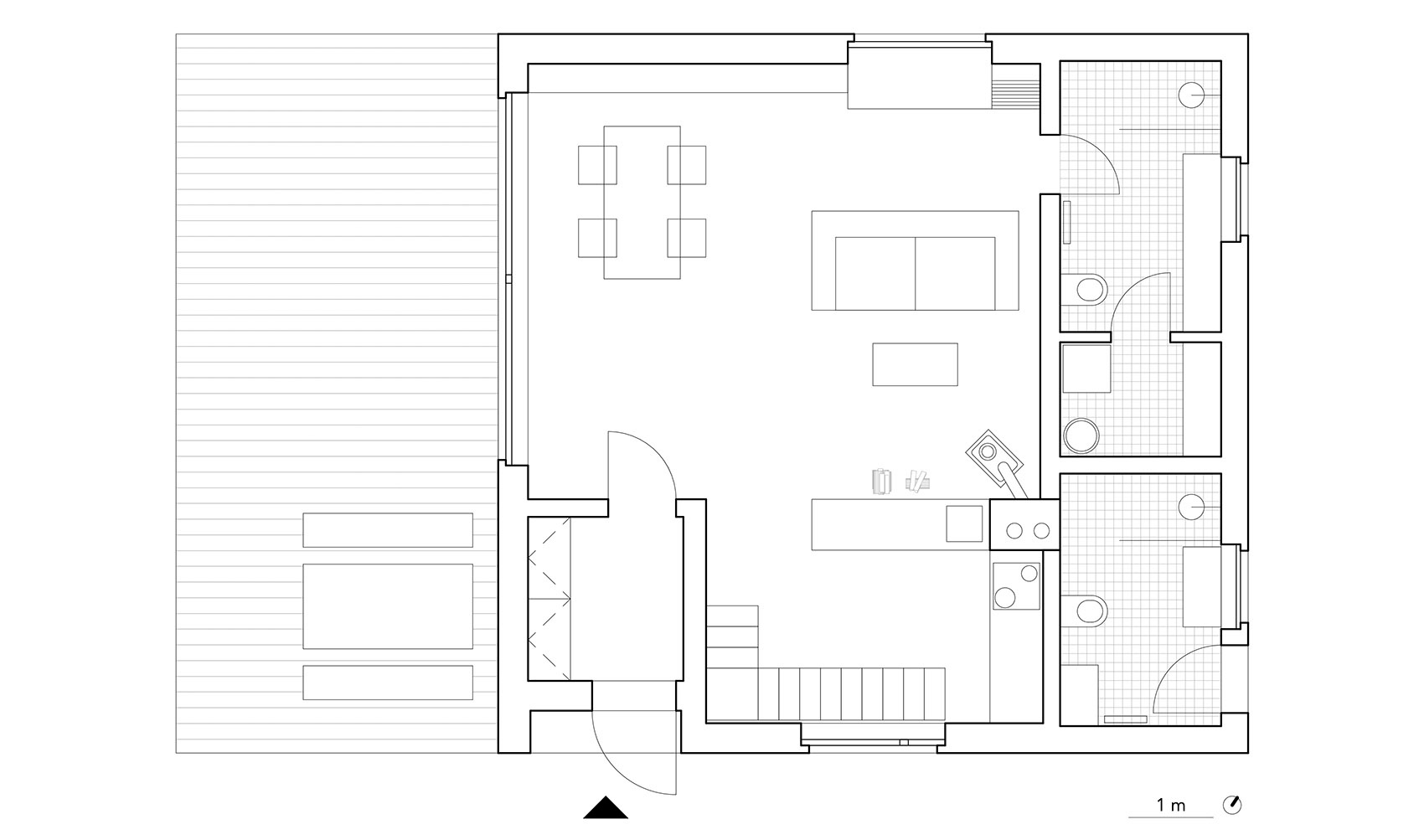
Hytta坐落于松树林边缘的一处朝南的斜坡上,将小屋和附近的社会隔绝开来,提供了足够的私密性。小屋的平面受到过去的狩猎小屋的格局影响,维护了其原有的规模。一层包括起居室、厨房、门厅、浴室、 杂物间和可以从室外进入的户外浴室。
▼小木屋
主要的居住空间有一个高耸的斜坡屋顶,为创造性提供了宽敞的空间。从客厅可以进入浴室,黑色砂浆和家具提供了引人注目的亲密氛围。精致的金属板制成的厨房中的楼梯,它由钢索悬挂,优雅地升至主卧室。主卧室朝东,清晨的阳光从大窗户洒下,让您在舒适的床上欣赏大自然的唤醒。还可以从卧室进入一处舒适的角落。第二个角落位于主客厅上方的小阁楼中,可以通过楼梯进入。两个角落都提供了额外的睡眠区域,使 Hytta 最多可舒适地容纳六人。
▼客厅
▼厨房
▼餐厅
在客厅中,橡木制成的餐桌不仅是用餐空间,也可以作为工作空间。技术设施,包括电脑显示器,可以很方便地从图书馆的一个柜子里延伸到桌子上方。Starlink网络服务和生物动力照明进一步提高了工作空间的质量,生物动力照明在天黑后不会发出蓝光,从而促进睡眠。Hytta的主要供热由烧木头的铁炉子提供,同时地热也提供辅助的温度控制。
▼厨房
▼浴室
▼可以睡觉的角落
芬兰桑拿浴室带来高质量的放松体验
Finnish sauna for quality relaxation
高质量的放松体验也是不被打扰的创造性的重要组成部分。这就是在Hytta的几米外有一处带有冷浸浴缸的现代芬兰桑拿浴室。该设施位于一处微微倾斜的地形上,当你享受桑拿时可以俯瞰不受干扰的林中景色。桑拿室占地6m x 3.5m, 其中包含休闲区、淋浴间和芬兰桑拿房本身。和Hytta一样,桑拿室同样体现了斯堪的纳维亚极简主义精神,炭化木覆层外墙也使其融入了周围的自然环境。建筑是用土螺钉锚固的,通过一个钢制坡道进入设施,给人一种轻盈的愉悦感。
▼芬兰桑拿浴室
▼夜晚室内
▼夜景
▼夜景局部
▼场地区位
▼场地区位
▼木屋二层平面
▼木屋立面
▼木屋剖面
作者:Adam Hofman,
创意概念和建筑师;Dominik Ilichman,
网站:
项目地点:Lípa nad Dřevnicí
建筑面积:75 m²可用建筑面积:99 平方米
地块面积:10 000 平方米
客户:Adam Hofman 和 Dominik Ilichman
;
感谢分享
客服
消息
收藏
下载
最近








































