查看完整案例

收藏

下载

翻译
Architect:Chiasma Factory;YOHAKU Architects
Location:Matsuyama, Ehime, Japan; | ;View Map
Project Year:2023
Category:Offices;Factories
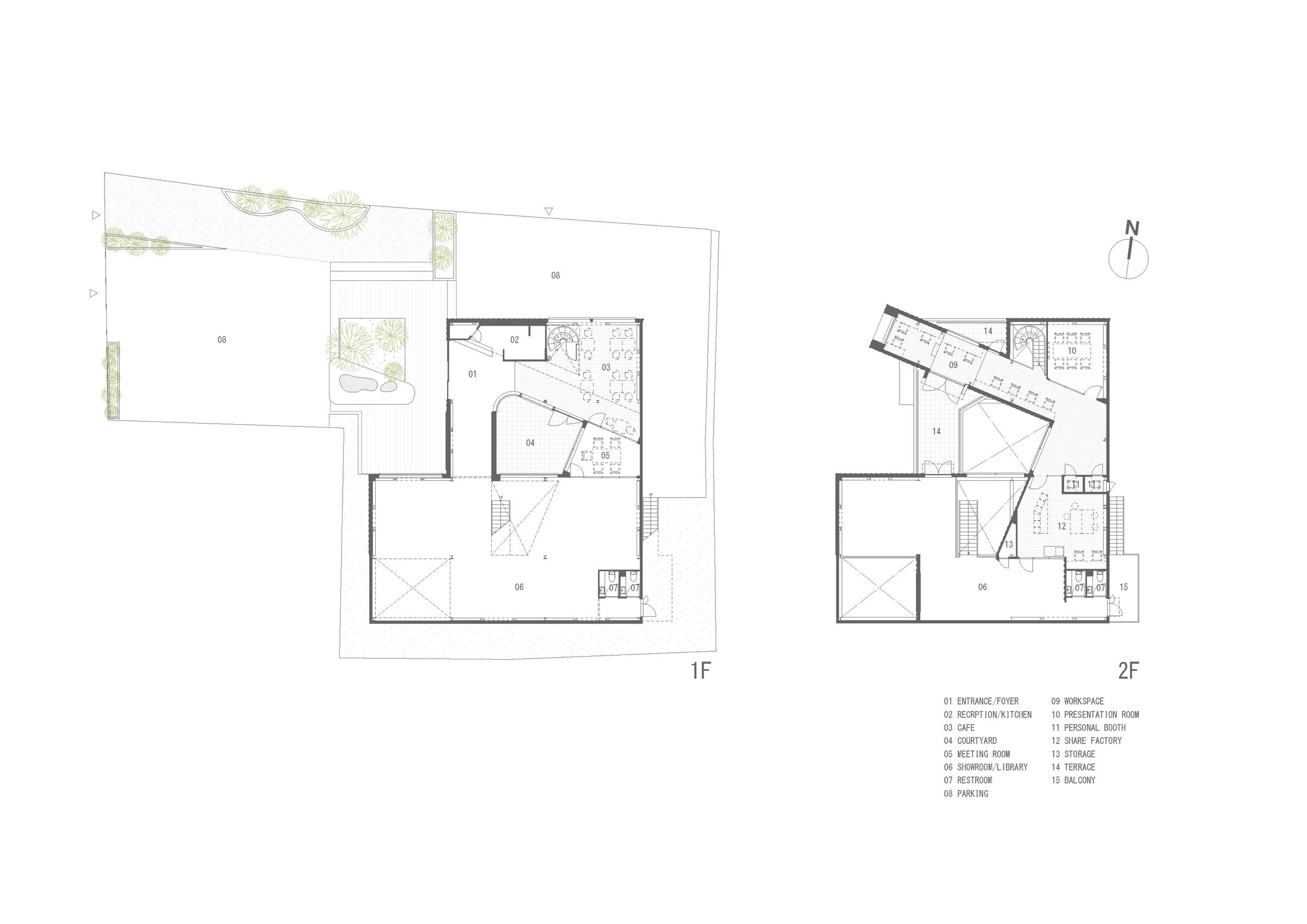
Located in the suburbs of Matsuyama City, Ehime Prefecture, ASD KonneKt is a multifaceted facility designed to foster new communication within the architecture and interior design industries and their customers. This project was initiated to address the challenges faced by local small and medium-sized enterprises in the architectural field. The two-story steel-framed building, with a total floor area of 467m², combines a showroom, café, co-working office, and a co-factory, aiming to invigorate the architectural community in a regional city.
From the outset, the client envisioned the facility as an "open and adaptable place, similar to a campsite," with an "industrial atmosphere reminiscent of a manufacturing site." To meet these expectations, the design team utilized original steel panels to create an exterior mimicking stacked shipping containers, incorporating industrial materials into the interior to achieve the desired ambiance.
The site's location along a major road ensures easy access for the citizens. The project's design centers around the concept of sharing, consolidating various functions within one facility to address the spatial and resource constraints faced by the target users. This setup allows users to share showrooms, meeting rooms, and workshop spaces at a lower cost, facilitating information exchange and collaboration.
ASD KonneKt transcends its role as a mere mixed-use commercial building by providing a hub for the local architectural community to connect and grow. This project opens new possibilities for the architectural sector in regional cities nationwide, providing a new venue for interaction among local residents and breathing fresh life into the suburban landscape of Matsuyama. The distinctive appearance of the building not only makes a visual impact but also establishes a landmark presence in the area. The completion of the project stands as a testament to innovative thinking in architecture, symbolizing the potential for new architectural endeavors in regional settings and attracting widespread attention.
▼项目更多图片
客服
消息
收藏
下载
最近








































