查看完整案例

收藏

下载

翻译
Architects:SLIC Architecture
Area:1230m²
Year:2022
Photographs:Bien Alvarez
Lead Architects:Bryan LIangco, Andrew Sy, Clarisse Gono
Interior Design:SLIC Architecture
City:Laiya
Country:Philippines
Text description provided by the architects. The Quarry house is a residence nestled 70 meters above the coastline of the Philippines. Not only is it located in a very remote area, but the entire property is tilted at a 40˚ angle, making conventional construction difficult. So instead of a boxy volume containing the entire program, the architecture divides the core spaces into shared and private villas and then scatters them throughout the site, closely following the existing topography.
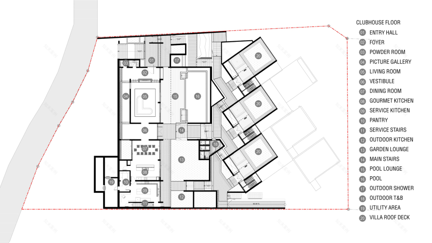
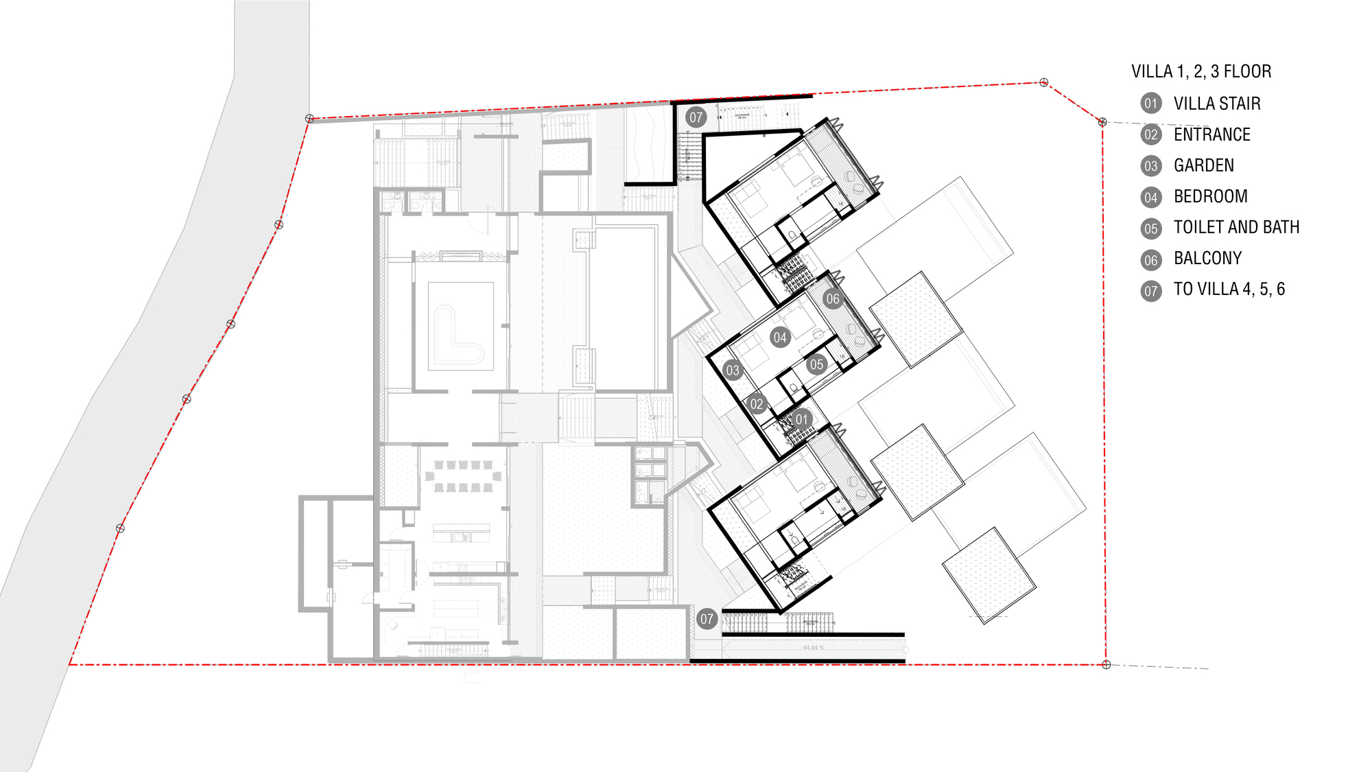
The program consists of a 2 storey cliffside communal space and 6 villas scattered downward. The shared space contains living, dining, kitchens, outdoor lounges, and a 10-meter-long pool. Each villa has its own suite, roof patio, garden, and spacious balcony. The staggering of the villas gives private sunrise views for the residents while the pathways that cross in between them become contemplative spaces because of bricks exclusively developed for this project.
The owner wanted to develop a load-bearing brick that could double as a low-maintenance finishing for his home. The SLIC team collaborated on pigment, composition, waterproofing, and the bush hammer finish with them. The result is a locally sourced, compressed soil brick that can be rotated into various configurations and would require little to no maintenance. These were used extensively throughout the site from perimeter walls to stair treads. They were also used to make an outdoor shower by simply threading a water line through the holes of the brick.
The textured bricks not only add character to the home but are meant to complement the roughness of the nature that surrounds the property. Landscaping that could blend with this existing jungle was prioritized, with pockets of green placed every few meters inside and out. An interesting note is that since its completion, the Quarry House has become a sanctuary for birds and other animals, who freely use the naturally treated swimming pool as a source of water. Although quite an isolated house, great care was taken to provide the creature comforts of urban living, electricity and heating are supplied using solar power and there is a satellite internet connection for residents to use.
The interiors compliment the simplicity of the form, pairing book-matched limestone flooring with cream-colored lime plaster walls. The extensive use of limestone in the interiors is a nod to the fact that the plot the home lies on is composed of limestone soil. A majority of the furniture was custom-made, from the limestone dining table and kitchen island to the solihiya-clad cabinets and chairs. The layout of the communal spaces reflects the client’s desire to host intimate gatherings, with all spaces excluding the vestibule having relatively low ceilings (2.5m) and using indirect lighting. Listening was very important and the project is the result of following the existing conditions of the site and respecting the nature surrounding the property. Complimenting these circumstances is the sparse material palette with the striking protrusions of the compressed soil brick rounding out this home away from home.
Project gallery
客服
消息
收藏
下载
最近
























