查看完整案例

收藏

下载

翻译
Architects:Bloom Architecture
Area:600m²
Year:2020
Photographs:Hiroyuki Oki
Lead Architects:Antoine Meinnel, Bloom Architecture
Engineering & Consulting:Paradise Phnom Penh
Lead Team:Antoine Meinnel
Design Team:Kong Lim, Heng Thanak, Ny Kechseang
City:Phnom Penh
Country:Cambodia
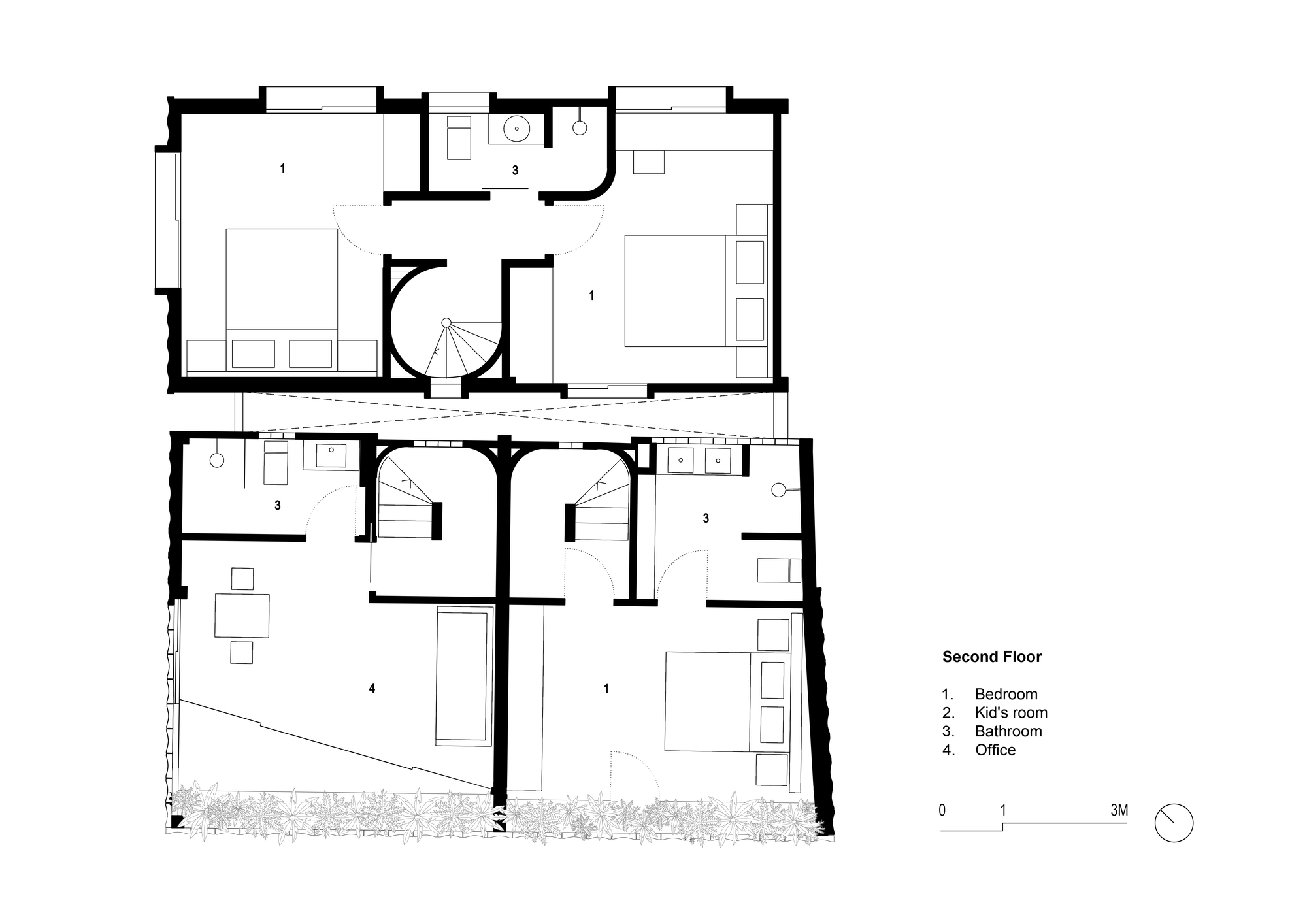
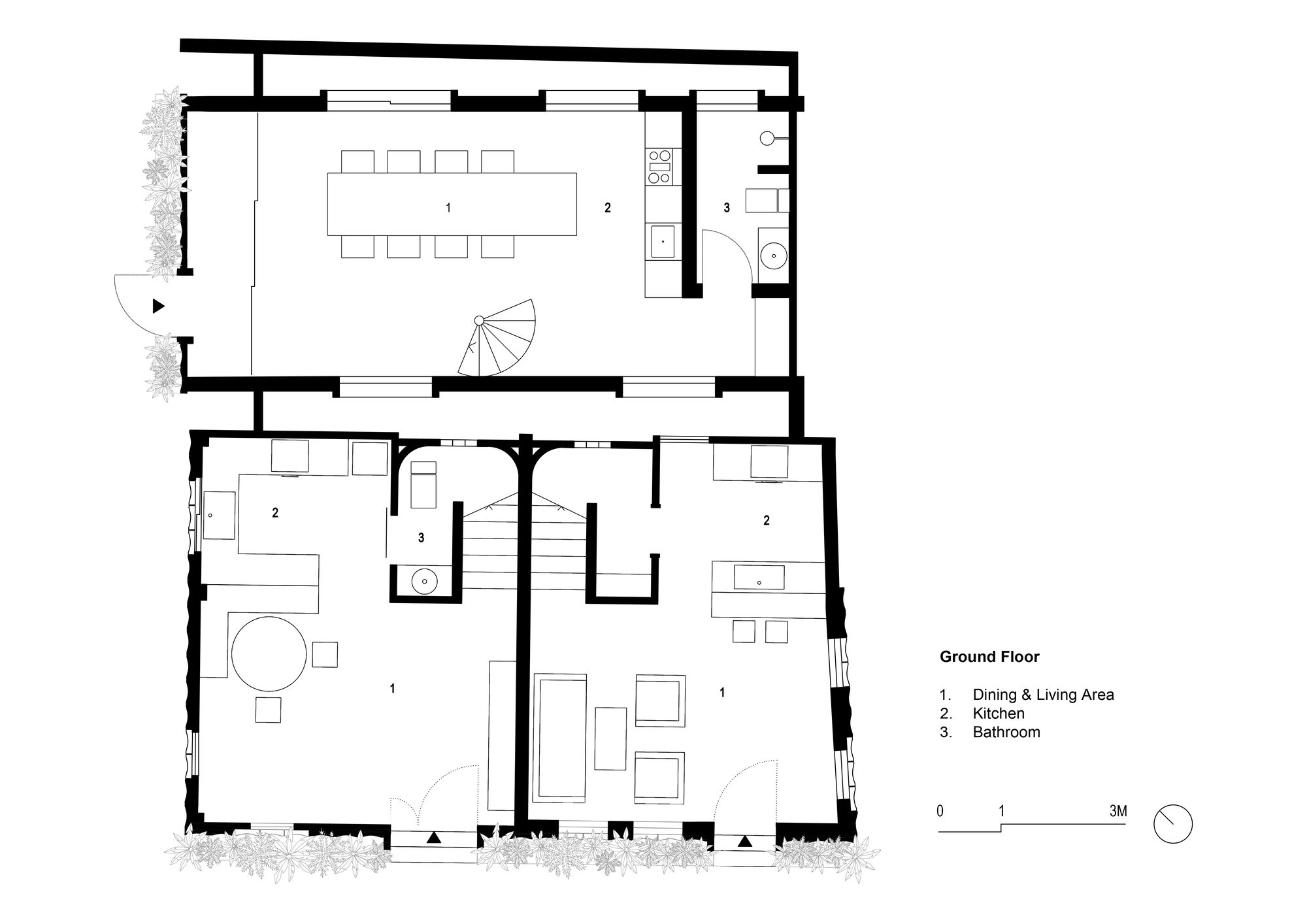
Text description provided by the architects. Bloom designed this collection of 3 small houses in 2019, with the aim to create a surprising green environment, a haven in disconnection from one of the most dynamic streets of Phnom Penh. Inside a colonial residential block, the project creates a sense of place by turning the challenge of accessing through a narrow alleyway into the opportunity to create a small residential community. It was critical to keep a village scale, a unique feature in the city center of Phnom Penh, hence the shapes of the houses were inspired by the preexisting vernacular wooden Cambodian houses sitting there.
The 4 levels of private houses have reduced footprints and shared boundary walls. This innovative modern typology was developed as an alternative for city centers where density is paramount and real estate cost prohibitive. The openings are irregular and positioned to allow light on the ground floor while maintaining privacy.
The views become more prominent on the upper floors. The first two levels of the facades were designed like a double-layered facade using a custom pattern of local handmade cement block. The craftsmanship of this material provided the right balance between aesthetics and durability. The laterite orange color of the cement block screen is given by natural pigments, it provides the perfect substrate for lush tropical vegetation.
Maintaining the domestic scale for the project and adding a greener feeling to the interior of the residential block was meant to create a sense of belonging for the dwellers, a community, 30-something urbanites and designers, with their kids and dogs, creatively share the alleyway, a courtyard and shared rooftops.
Project gallery
客服
消息
收藏
下载
最近


























