查看完整案例

收藏

下载
2024 年 7 月,Unknown design 为 DQ Natural 完成了服装展厅和办公空间设计,项目位于杭州江南岸艺术园区,“随性自然”——是品牌主理人对生活的理解,我们以此为切入点,以空间的方式为 DQ Natural 呈现了新的解读。
In July 2024, Unknown design completed the design of the clothing showroom and office space for DQ Natural. The project is located in Hangzhou Jiangnanan Art Park. “Spontaneous and natural” – is the brand manager’s understanding of life. We use this as a starting point to present a new interpretation of DQ Natural in a spatial way.
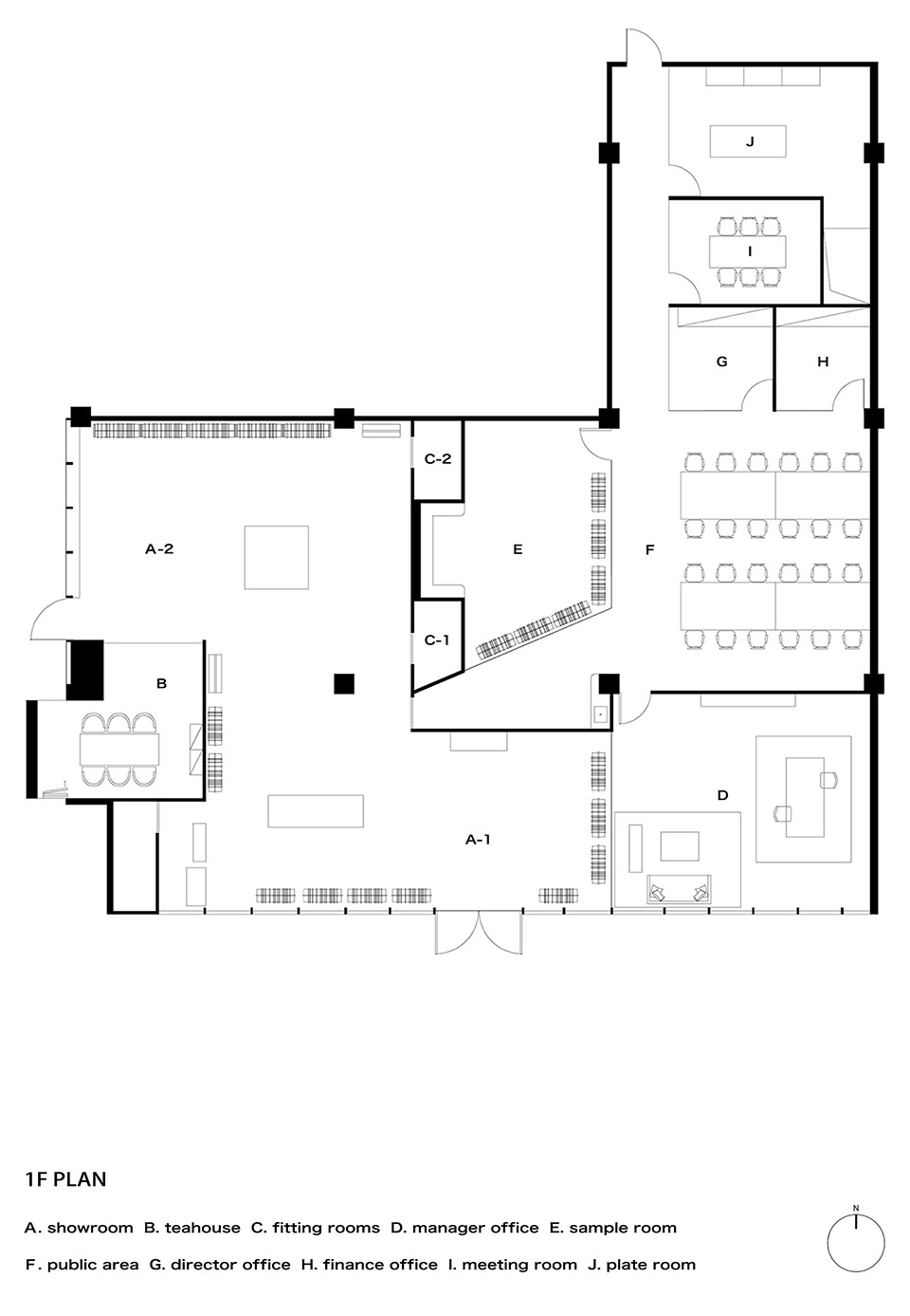
▼项目概览
project overview
©Act studio·Li Hao
▼随性自然的空间主题,“spontaneous and natural” theme©Act studio·Li Hao
“光是一种把空间戏剧化的重要元素”,结合场地的东、南朝向优势,我们设计利用自然光,在室内创造出随季节、时间、天气变化而变化的动态光影效果,同时采用体量纤细的门窗型材,降低视线干扰,延伸了空间的呼吸感。
▼平面布置图,Graphic layout plan©Unknown design
“Light is an important element to dramatize a space.” Combining the site’s east and south orientation advantages, we designed to utilize natural light to create dynamic light and shadow effects indoors that change with the seasons, time of day, and weather, while adopting slim volume window and door profiles to reduce visual disturbances and extend the sense of breathing in the space.
▼利用自然光的设计,utilize natural light©Act studio·Li Hao
▼延伸了空间的呼吸感,extend the sense of breathing in the space©Act studio·Li Hao
展厅顶部以法式石膏雕花装饰,配合隐藏式灯带,让灯光沿线框边缘柔和扩散;地面采用水磨石工艺,环保又耐用,其无序的骨料纹理和连续表面,进一步强调了空间的自然性。
The top of the showroom is decorated with French plaster carvings, together with hidden light strips, allowing the light to softly diffuse along the edges of the wireframe. The floor is made of terrazzo, which is both environmentally friendly and durable, and its disordered aggregate texture and continuous surface further emphasize the naturalness of the space.
▼展厅顶部以法式石膏雕花装饰,The top of the showroom is decorated with French plaster carvings©Act studio·Li Hao
▼配合隐藏式灯带,together with hidden light strips©Act studio·Li Hao
可移动的货架系统,让陈列布局可根据不同展示策略即时调整;天然青玉石展桌,以其清透的纹理质感彰显石材之美。茶室区域,设计以地台高差和洞石隔断,丰富了空间的游览意趣。
The movable shelving system allows the display layout to be instantly adjusted according to different display strategies; the natural lapis lazuli display table highlights the beauty of stone with its clear texture. The tea room area is partitioned by floor height difference and travertine, enriching the interest of space tour.
▼天然青玉石展桌,the natural lapis lazuli display table©Act studio·Li Hao
▼茶室区域, the tea room area©Act studio·Li Hao
▼丰富了空间的游览意趣, enriching the interest of space tour©Act studio·Li Hao
办公区设计以功能为主导,透明的玻璃隔断,让不同区域之间视线共通,水磨石和木地板的地面组合,形成清晰的分区效果。此外,我们巧妙利用空间结构,将茶水台集成于承重柱与墙体间隙中,实现了空间的有效再利用与功能性扩展。
The design of the office area is function-oriented, with transparent glass partitions that allow the line of sight between different areas to be shared, and a combination of terrazzo and wooden flooring to form a clear zoning effect. In addition, we cleverly use the space structure, the water table is integrated in the gap between the load-bearing columns and the wall, realizing the effective reuse of space and functional expansion.
▼透明的玻璃隔断, transparent glass partitions©Act studio·Li Hao
▼让不同区域之间视线共通, allow the line of sight between different areas to be shared©Act studio·Li Hao
▼办公区域, office area©Act studio·Li Hao
▼将茶水台集成于承重柱与墙体间隙中
the water table is integrated in the gap between the load-bearing columns and the wall©Act studio·Li Hao
高管办公室,也作为洽谈室和直播室使用,西面墙体采用“半高墙”(half wall)隔断,在提供隐私的条件下,为后部办公区引入自然采光,降低了空间对人工照明的依赖。
The manager’s offices, which are also used as meeting and broadcasting rooms, are partitioned by a “half wall” on the west side, which provides privacy and natural light to the rear office area, reducing the space’s reliance on artificial lighting.
▼西面墙体采用“半高墙”隔断, partitioned by a “half wall” on the west side©Act studio·Li Hao
▼高管办公室, the manager’s offices©Act studio·Li Hao
▼为后部办公区引入自然采光
which provides privacy and natural light to the rear office area©Act studio·Li Hao
设计不仅仅是创造美,更是创造一种与自然相协调的生活方式,人与自然最基本的关系,指引我们在 DQ Natural 项目中,深入探索材料的本质与功能性设计,践行长期主义理念,赋予空间穿越时间的力量。
Design is not only about creating beauty, but also about creating a lifestyle in harmony with nature. The most basic relationship between man and nature guides us in the DQ Natural project, exploring in depth the nature of materials and functional design, practicing the concept of long-termism, and empowering space to travel through time.
▼与自然相协调的生活方式, creating a lifestyle in harmony with nature©Act studio·Li Hao
▼更衣间, changing room©Act studio·Li Hao
▼夜景, night view©Act studio·Li Hao
项目名称:DQ Natural
项目类型:服装展厅&办公空间
设计公司:Unknown design 非知名设计
设计团队:Mk.Zhu.Jeffrey
完成时间:2024 年 7 月
项目地址:浙江省杭州市
建筑面积:760㎡
施工单位:ASPARK 匠星装饰工程
灯光照明:光迹灯光
摄影:Act studio·Li Hao
Project Information
Project name:DQ Natural
Project type:Clothing showroom&office space
Design:Unknown design
Leader designer&Team:Mk.Zhu.Jeffrey
Completion year:2024.07
Project location:Hangzhou,Zhejiang Province
Area:760㎡
Construction team:ASPARK Jiangxing Decoration Engineering Co.
Lighting:Guangji Lighting
Photograph:Act studio·Li Hao
客服
消息
收藏
下载
最近



























