查看完整案例

收藏

下载

翻译
Architects:Cote Architects
Area:390m²
Year:2024
Photographs:Hoang Le
Manufacturers:AutoDesk,Eurotile,INAX,Kenwin
Lead Architect:Hoang Viet Hung
Contractors:COTE Arch
Design Team:Nguyen Ba Vuong, Vo Thanh Thuy, Le Van Hoang Hai, Vo Doan Hung
Structure Engineers:Nguyen Minh Hoang
Lighting Designer:Dien Quang Hue
Mep & Hvac Consultants:COTE Arch
City:Hue
Country:Vietnam
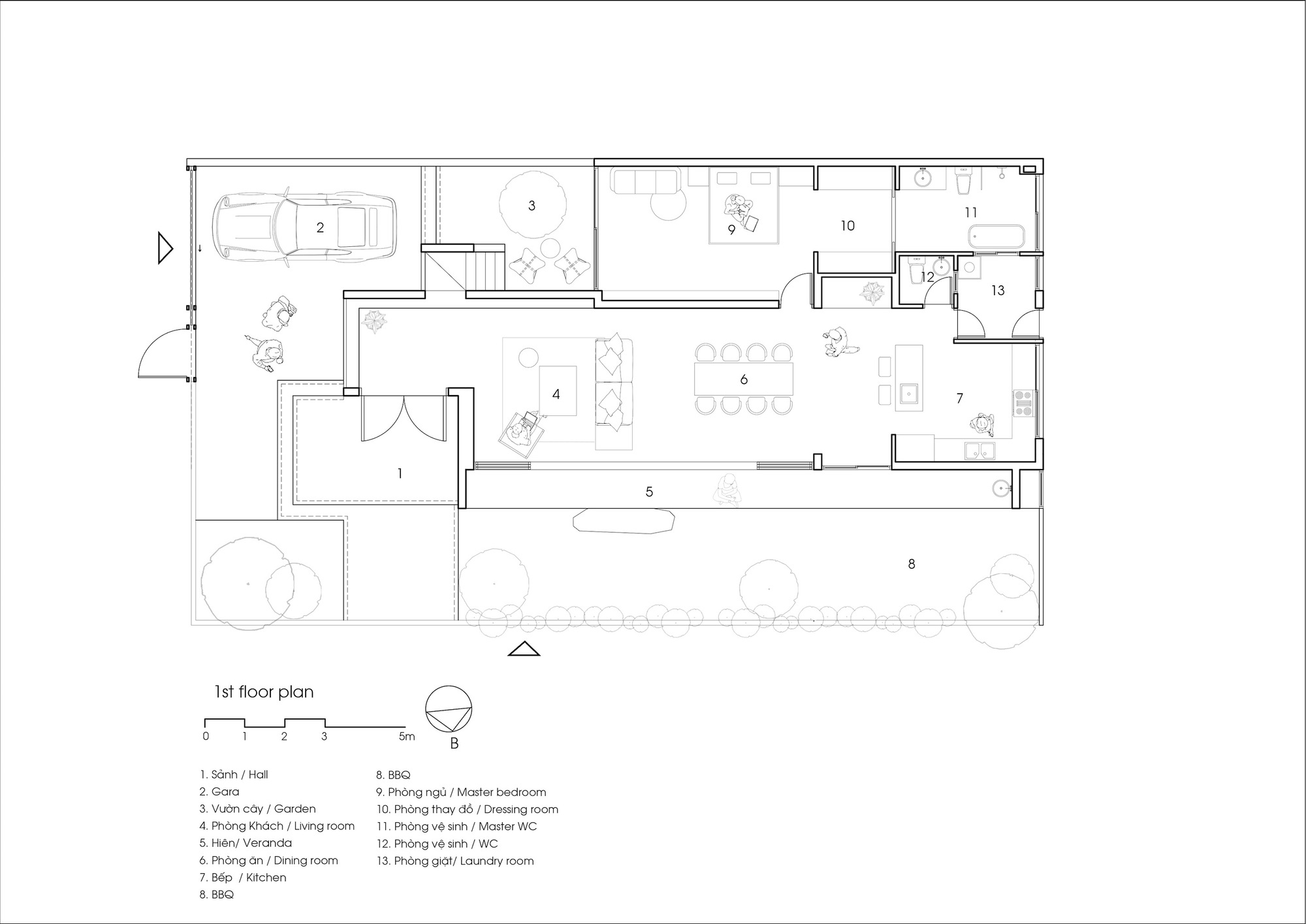
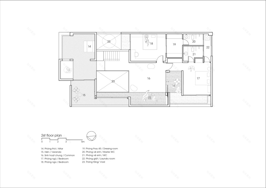
Text description provided by the architects. PVT House is located in a peaceful residential area in Vỹ Dạ Ward, Huế City. A key feature of the site is the adjacent lush garden, which offers an expansive, airy environment closely connected to nature. This proximity allows the house to enjoy open views, abundant natural light, and a tranquil, fresh atmosphere.
The house is positioned on one side of the plot to create a courtyard that serves as a transitional space between the porch and the garden. This courtyard functions not only as an area for outdoor activities like BBQs but also as a bridge connecting the living space to nature, fostering relaxation and harmony. The ground floor features interconnected communal spaces, all oriented towards the garden. Sliding glass doors are extensively used, and when fully opened, they erase the boundary between indoors and outdoors, offering seamless spatial continuity while maintaining the necessary privacy for the owner.
The house consists of two stacked rectangular volumes, oriented horizontally. This layout not only maximizes views but also creates a fluid connection with the landscape. The lower volume extends along the garden, embracing the greenery, while the upper volume, larger in scale, serves as a protective shell, shielding the lower volume from the elements. This shell creates verandas and loggias that allow for natural ventilation and light regulation while protecting the interior from direct weather exposure.
The entire house, including the ceilings and walls, is constructed from exposed concrete, retaining its natural texture to minimize finishing costs. This raw concrete is ideal for Huế’s tropical, humid climate, offering durability against water infiltration and mold. The unfinished aesthetic of the concrete contributes to the house’s sustainability and natural appeal, harmonizing with the local environment.
Moreover, PVT House integrates traditional ventilation techniques into its modern design, with an air gap between the two concrete roof layers that dissipates heat and keeps the interior cool. The interplay between solid and void spaces ensures both effective airflow and a harmonious balance between privacy and openness.
The design philosophy of PVT House emphasizes sustainability, utilizing natural elements such as light, wind, and greenery to enhance the quality of life. This approach not only improves the living environment but also provides health benefits and relaxation for the family.
Project gallery
客服
消息
收藏
下载
最近





































