知末
知末
创作上传
VIP
收藏下载
登录 | 注册有礼

智能盒子,英讯尔智能生活馆丨中国武汉

2018/07/30 00:00:00
查看完整案例
微信扫一扫
收藏
下载
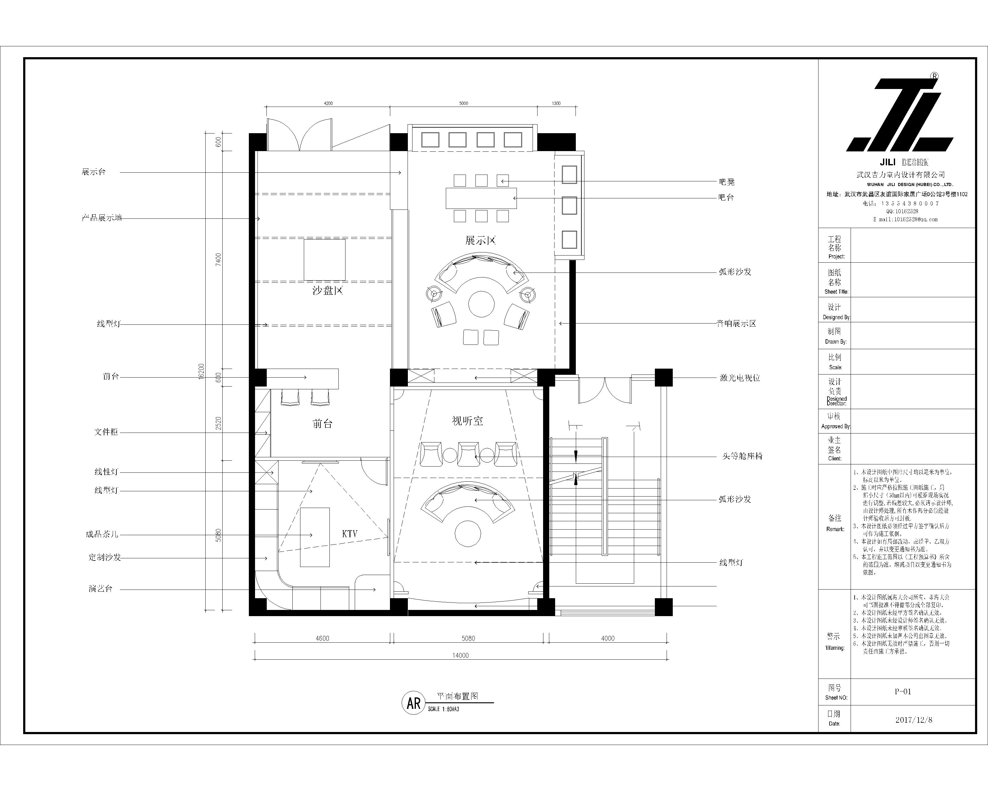
项目名称:智能盒子/英讯尔智能生活馆
项目地点:武汉友谊国际家居广场五楼
设计单位:武汉吉力室内设计有限公司
智能盒子,英讯尔智能生活馆丨中国武汉-3
智能盒子,英讯尔智能生活馆丨中国武汉-4
智能盒子,英讯尔智能生活馆丨中国武汉-5
智能盒子,英讯尔智能生活馆丨中国武汉-6
智能盒子,英讯尔智能生活馆丨中国武汉-7
智能盒子,英讯尔智能生活馆丨中国武汉-8
智能盒子,英讯尔智能生活馆丨中国武汉-9
南京喵熊网络科技有限公司 苏ICP备18050492号-4知末 © 2018—2020 . All photos and trademark graphics are copyrighted by their owners.增值电信业务经营许可证(ICP)苏B2-20201444苏公网安备 32011302321234号
客服
消息
收藏
下载
最近