知末
知末
创作上传
VIP
收藏下载
登录 | 注册有礼

文化中心

2020/12/14 19:33:36
查看完整案例
微信扫一扫
收藏
下载
翻译
文化中心-0
Entrance
文化中心-2
文化中心-3
文化中心-4
文化中心-5
文化中心-6
Interior Shot for Gallery
Site Plan
文化中心-9
文化中心-10
文化中心-11
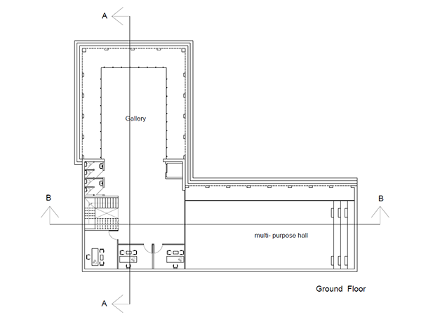
Plans
文化中心-13
文化中心-14
Elevations
文化中心-16
文化中心-17
Sections
文化中心-19
文化中心-20
Site Analysis
南京喵熊网络科技有限公司 苏ICP备18050492号-4知末 © 2018—2020 . All photos and trademark graphics are copyrighted by their owners.增值电信业务经营许可证(ICP)苏B2-20201444苏公网安备 32011302321234号
客服
消息
收藏
下载
最近