查看完整案例

收藏

下载
Hi EAU,街角的咖啡店又见面了!
Hi EAU, the coffee shop on the street corner. Nice to meet you again!
▼门头外观,storefront appearance © 高含之
Atelier A新作EAU2.0坐落于上海市徐汇区永康路85号。特殊的转角地理位置、美食以及户外休闲区让他一度成为永康路上地标一般标志性的咖啡店。时隔几年,EAU终于在原址涅槃新生。Atelier A助力此次EAU的全新回归。在设计上,Atelier A致力于保留最具记忆点的街角外立面,同时融合EAU的设计起源,打造一个如水般轻盈的街角室内咖啡店。兜兜转转,EAU 2.0终于回到原地。所以我们希望能尽可能的保留原来的一些元素,让曾经熟悉的这个品牌的人更有归属感。EAU,在法语里是“水”的意思。本次品牌也做了全新升级,2.0版本的LOGO上也有一些蓝色的元素。所以本次的设计我们围绕“水”为主题,打造一个以蓝色调为主的室内空间。
Atelier A’s new project EAU 2.0 is located at 85 Yongkang Road, Xuhui District, Shanghai. Its unique corner location, and the combination of drinks, bakery and outdoor leisure made the original EAU a landmark coffee shop on Yongkang Road. After several years, EAU has finally reopened on its original site. Atelier A is responsible for the all-new return of EAU. In terms of design, Atelier A is committed to preserving the most memorable corner facades while incorporating the design origins of EAU to create a light and airy indoor coffee shop on the street corner. After twists and turns, EAU 2.0 finally returned to its original position. We hope to preserve some of the original elements as much as possible so that people who were familiar with this brand can have a sense of belonging. EAU means ‘water’ in French. The brand has also undergone a brand new upgrade this time. So for this design, we focus on the theme of “water” and create an indoor space with a blue tone as the main color.
▼以蓝色调为主的室内空间,a blue tone interior space © 高含之
EAU is located at the corner of Yongkang Road and Xiangyang South Road. The customer area space is an irregular trapezoid. The exterior wall adopts a low saturation milky yellow color scheme that is consistent with the surrounding buildings, and the blue logo in the center restores the original texture of 1.0. Two iconic large windows provide both outdoor resting spaces and a good view indoors. We added a wall skirt under the wall, using yellow and gray horseshoe stones to blend more naturally with the colors of the wall and sidewalk, while protecting the wall and waterproofing. The door and window frames are wrapped in dark afara wood. For waterproofing reasons, we have wrapped a piece of brass under the wooden door panel to prevent rainwater from corroding the solid wood.
▼室内空间概览,interior space overview © 高含之
推开木门步入室内,左手边是吧台,右手边是一排靠墙和靠窗的座位,格局和 1.0版本基本保持一致。为了从视觉上将各个独立的部分联系起来,我们将吧台外立面和靠墙的座位墙面包覆了高度一致的木板,连着窗台一起,巧妙的绕屋一圈形成了一个环形,像是泳池的边缘。地面铺置了带釉变的蓝色手工转,延申至墙面做400高踢脚墙裙,釉变的色彩像是水面经过阳光照射形成深浅不一的蓝色涟漪,有置身于夏日泳池中的清凉感。
在细节上我们希望突出自然状态和手工感。墙面大面积的使用抹泥的工艺,保留了墙面肌理。墙上的蓝色手绘是设计师根据EAU 的平面视觉系统所做的壁画,强调手工绘画的瑕疵和随性,呈现出避免精密设计的粗糙之美。轻盈的蓝色圈圈如同水族馆中的气泡,轻快漂浮惬意清爽。
Pushing open the wooden door and entering the room, you will see the bar on the left. On the right-hand side is a row of seats against the wall and window, with a spatial layout that is basically consistent with version 1.0. In order to visually connect the independent parts, we wrapped the exterior of the bar counter and the seat wall against the wall with wooden boards of consistent height, connected to the window sill, cleverly circling around the house to form a circular shape, like the edge of a swimming pool. The ground is covered with glazed blue handmade tiles, which extend to the wall and are made into a 400mm high skirting wall skirt. The color of the glaze changes like blue ripples of varying depths formed by sunlight shining on the water surface, giving a refreshing feeling of being in a summer swimming pool.
We hope to highlight the natural state and handmade feel in the details. The large-scale use of plastering technology on the wall preserves the texture of the wall. The blue hand-painted mural on the wall is created by the designer based on EAU’s flat visual system, emphasizing the flaws and arbitrariness of manual painting, presenting a beauty of crudeness instead of over-precise design.
▼靠墙的座位像是泳池的边缘, seatings against the wall are like the edge of a swimming pool © 高含之
在墙面背景比较简单的情况下,我们在店面的中央定制了一个“游泳圈”。定制的超大尺寸吊灯,既呼应了“水”的主题,同时承担起店面的视觉重心,从室外透过窗户它可以达到一个吸引目光的焦点的效果。手工纸的圈体和红色钢骨架,透出温暖的光芒,置身其中有满满的安全感。
▼泳圈吊灯图纸,swimming ring pendant light drawings © 上海彦文建筑工作室
In the case of a relatively simple wall background, we customized a “Swimming Circle” in the center of the store. The customized oversized pendant light not only echoes the theme of “water”, but also serves as the visual center of the store. It can achieve an eye-catching focal point effect through the window from the outside. The handmade paper circle and red steel frame emit a warm glow, giving one a sense of security when immersed in them.
▼“游泳圈”吊灯, “Swimming Circle” pendant light © 高含之
家具选用的是深色系的木质家具,新老家具搭配使用色调统一。三个高度,利用家具的高度差打造视觉层次。窗台是最低点,所以靠窗边的桌子选用了稍微低一点的高度,中间一层用稍微高一点的桌面,靠近墙面的桌子最高,从窗户看进去会有高低错落的感觉。
The furniture we chose is dark wooden one. The combination of old and new furniture uses a unified color tone. We utilize the height difference of furniture to create three levels. The window sill is the lowest point, so the table next to the window is slightly lower. The middle level has a slightly higher tabletop, with the table near the wall being the highest. Looking inside from the outdoor window, there will be a sense of staggered height.
▼家具细部,furniture details © 高含之
在小巧的空间中,我们也试图创造一些惊喜和细节上的雕琢。在吧台的背后是EAU的菜单,和其他菜单不同的是,这是一份手写菜单,且是写在砖面上的。当我们得知店铺需要定制菜单,正好铺装吧台后方的砖块有余量,我们便特别设计将砖块贴在此处。光滑规则的砖块在做旧粗糙的墙面中十分亮眼,手写菜单也增添了趣味性和手工感。窗帘我们也有特别的设计。在普遍使用挂钩来固定窗帘的当下,我们选择了最老式的做法,在窗帘上预留一条一条的布边,打成蝴蝶结绑在杆子上。不规则的绑法和形态各异的蝴蝶结,仿佛是小时候家里的手工,亲切温馨。
In the small space, we also try to create some surprises and intricate details. Behind the bar counter is the EAU menu, which is different from other menus in that it is a handwritten on the brick surface. When we learned that the store needed to customize a menu and there was a surplus of bricks behind the bar counter, we specially designed to stick the bricks here. The smooth and regular bricks are very eye-catching in the old and rough walls, and the handwritten menu also adds fun and a sense of craftsmanship. We also have special designs for the curtains. Nowadays, hooks are commonly used to secure curtains, but we have chosen the oldest method, cutting strips of fabric above the curtains, tying them into bows, and then tying the curtain fabric to a pole. The irregular binding method and various shapes of bows look like handmade products from childhood families, making people feel warm and comfortable.
▼砖面手写菜单, a handwritten menu on the brick surfaces © 高含之
▼平面图,plan © 上海彦文建筑工作室
▼外立面,facade elevation © 上海彦文建筑工作室
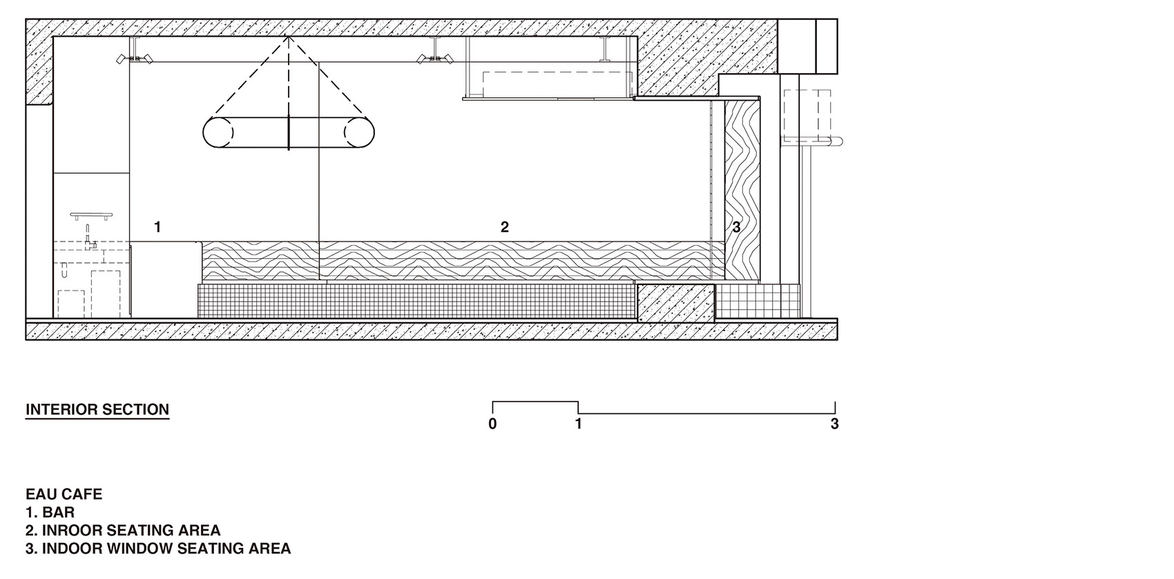
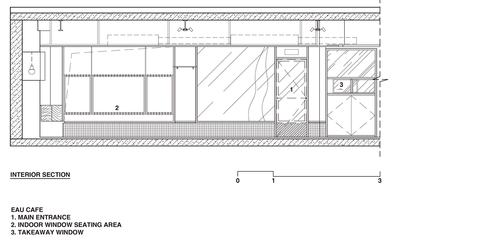
▼室内剖面,interior sections © 上海彦文建筑工作室
项目名称: EAU咖啡店
项目地址:上海市徐汇区永康路85号
建筑事务所/公司/机构/单位: 上海彦文建筑工作室 (Atelier A)
项目竣工: 2024年 5月
建筑面积: 83 Sqm
主创建筑师团队: 朱彦文 ,王媞
摄影师:高含之
客服
消息
收藏
下载
最近






















