查看完整案例

收藏

下载
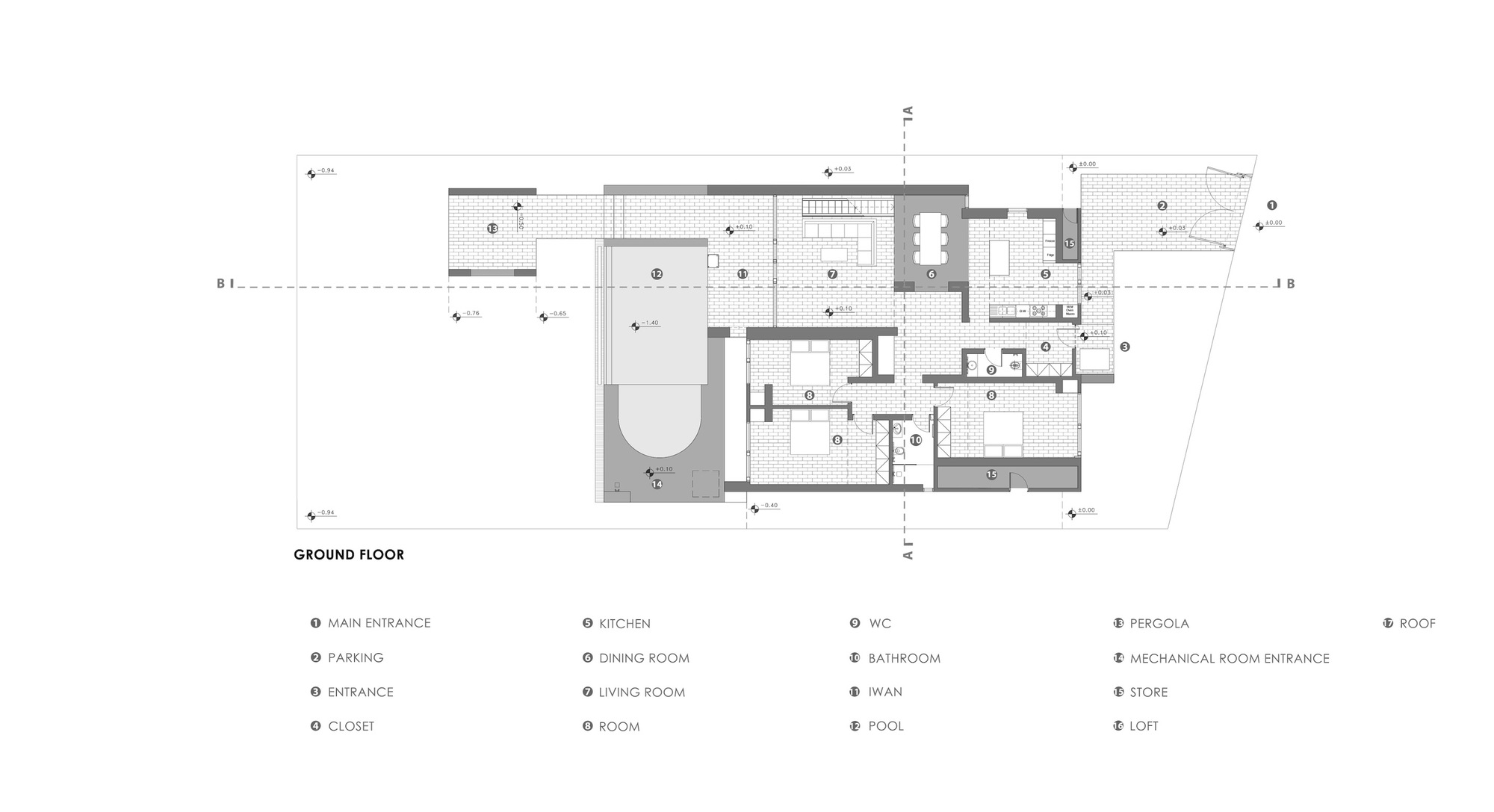
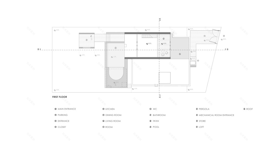
IWAN 是一种高于周围环境的座位,通常建在建筑的外部。IWAN 通常由一个拱门组成,三面封闭,向中殿开放。伊朗过去建筑中最著名的 IWAN 例子是 TAQ KASRA。这个项目是一种练习和体验,旨在与伊朗辉煌的一段历史联系起来。它试图将过去最著名的建筑原型之一 IWAN 与一座破旧的别墅联系起来,这座别墅本身属于伊斯兰革命前现代主义引入时期;这座别墅建造已经 50 年了。
为了能够在伊朗建筑的不断流动中为我们这个时代提供解释,我们试图打破历史参考与后现代之间的界限。| IWAN | 的原型无论其魅力和令人印象深刻的形式如何,都为这片土地的普遍气候创造了一个独特的空间,在空间的愉悦性上是无与伦比的。
第一次参观这栋老式平房,我们感觉像是一个极其压抑的避难所,屋顶很矮,甚至连院子里美丽的树木都几乎看不见,再加上墙壁很厚,窗户很小。
整个建筑的屋顶无法升高,但如果我们可以将面向庭院的客厅升高,那将是一个巨大的收获。因为在这个小建筑里,客厅是空间的核心,也是举办活动的场所。因此我们建造了一个跨度为 7 米的大拱门。拱门从南侧和我们的 | IWAN | 延伸并面向主庭院,从北侧在屋顶层创造了一个新的客厅。
之后,我们决定在庭院的中心建造一个类似的替代方案,并通过我们在这两个拱门之间创建的道路与周围的自然建立牢固的联系。正是在这里,一直从一侧向外开放的IWAN向两侧开放,矗立在现代凉亭和古老原型KOOSHK之间的边界上。在那个大拱门| IWAN |和小拱门| KOOSHK |之间,我们还放置了一个连接到连接处的水池,在它们之间传播清新和凉爽。
我们考虑的另一件事是以某种方式为空间添加|游戏|元素。|秋千|是伊朗最古老的游戏之一。这是一种令人振奋的游戏,迄今为止,许多波斯诗人的诗歌中都提到过它。砖块的存在以及对过去建筑细节和符号的处理使得它不是对过去的精确再现,而是展示了其原始根源。此外,为了增加时间对细节的影响,我们将光与拱门混合在一起;发光砖一层一层地坐落在拱门的砖结构上,在空间中散发出柔和的光线。
项目设计:Super Void Space
项目面积: 400.2501349m²
项目年份:2023
项目摄影:Mohammad Hosein Hamzehlouei
首席设计师:Nima Mirza Mohamadi
设计团队: Rana Siaghi, Shamim Parvane
Civil Engineers: Pedram Zarpak, Morteza Bagheri
Mechanical & Electrical Engineers: Pedram Ahmadi, Kamran Naraghipour
Supervisor: Reza Sahavan
Executive Manager: Nima Mirza Mohamadi
项目成市: Karaj
项目国家: Iran
设计师:Super Void Space
语言:英语
客服
消息
收藏
下载
最近



































