知末
知末
创作上传
VIP
收藏下载
登录 | 注册有礼

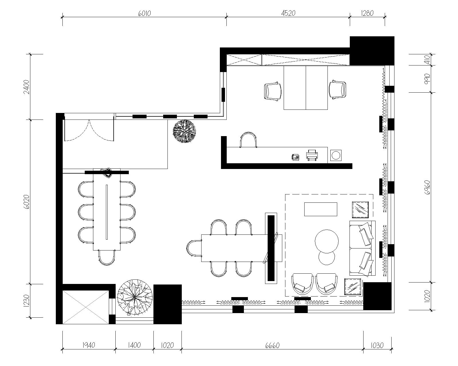
素雅写意,80 平米全开放式写字楼办公空间设计

2019/06/11 00:00:00
查看完整案例
微信扫一扫
收藏
下载
一个80平米的
写字楼办公空间
以素雅 写意为基调
全开放式空间
利用不同形式的隔断
划分出多个场景
使之相对独立
但在动线及视线上
又相对灵活互动
素雅写意,80 平米全开放式写字楼办公空间设计-9
素雅写意,80 平米全开放式写字楼办公空间设计-10
素雅写意,80 平米全开放式写字楼办公空间设计-11
素雅写意,80 平米全开放式写字楼办公空间设计-12
素雅写意,80 平米全开放式写字楼办公空间设计-13
素雅写意,80 平米全开放式写字楼办公空间设计-14
素雅写意,80 平米全开放式写字楼办公空间设计-15
素雅写意,80 平米全开放式写字楼办公空间设计-16
素雅写意,80 平米全开放式写字楼办公空间设计-17
素雅写意,80 平米全开放式写字楼办公空间设计-18
素雅写意,80 平米全开放式写字楼办公空间设计-19
素雅写意,80 平米全开放式写字楼办公空间设计-20
素雅写意,80 平米全开放式写字楼办公空间设计-21
素雅写意,80 平米全开放式写字楼办公空间设计-22
南京喵熊网络科技有限公司 苏ICP备18050492号-4知末 © 2018—2020 . All photos and trademark graphics are copyrighted by their owners.增值电信业务经营许可证(ICP)苏B2-20201444苏公网安备 32011302321234号
客服
消息
收藏
下载
最近