查看完整案例

收藏

下载
从海边来的人几乎注意不到这座坐落在青翠山脚下的庭院住宅的体积。将绿地与沙地分隔开的薄板遮蔽着一座几乎看不见的房子,它融入了景观之中。
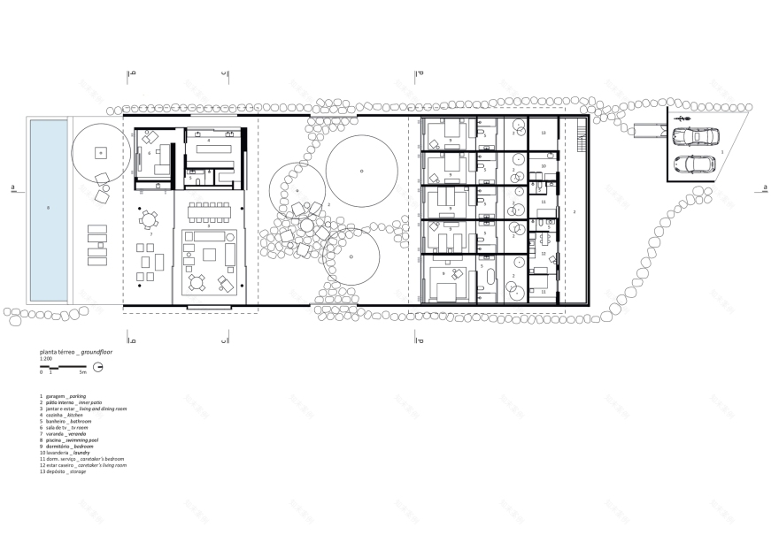
两个宽而低的体量坐落在狭长的地块上,中间是郁郁葱葱的庭院。前面的体量向地平线敞开,从内部框出大海和天空。客厅、泳池露台和内部庭院的窗框完全打开,融为一体,让您体验赤脚生活。厨房和电视室位于一个盒子里,盒子外面包裹着桉树百叶窗。
同样的材料封闭了后面的体量,让自然光通过过滤后的通道进入五间套房。每个套房都有自己的庭院,为每个浴室带来光线和流动的空气。
房子干净整洁的线条在材料上保留了一个不完美的空间,创造了重视简单和自然的氛围。除了桉树百叶窗外,其他设计也增添了质朴而有质感的感觉,比如房屋两侧的原始砖墙和裸露的混凝土地板。
家具的精确选择也通过结合不同的形状和温度来寻求尖锐和舒适之间的平衡。质朴的元素、柔软的表面、自然和纹理材料与尖锐、干净和简约的设计作品的混合唤起了对现代主义的热带诠释。
项目设计:studio mk27 - marcio kogan
项目面积: 600.2501349m²
项目年份:2020
项目摄影: Pedro Kok
供应商: Lightworks, Lumini, Marvelar, Pedras Bellas Artes, Plancus, Topseal, mado
Architecture: Studio mk27 - Marcio Kogan + Samanta Cafardo
室内设计: Diana Radomysler
Landscape Desgin: Rodrigo Oliveira
Author: Marcio Kogan
Co Author: Samanta Cafardo
项目团队: Mariana Ruzante, Renato Perigo, Renata Scheliga, Eloá Augusto
Communication: Carlos costa, Mariana Simas, Nathalia Lima
结构工程: Leão & Associados
MEP: DLameza engenharia
Air Conditioning: Thermoplan
Automation: Gilberto Floriano
建筑公司: Lock Engenharia
项目成市: Mangaratiba
项目国家: Brazil
设计师:studio mk27 - marcio kogan
语言:英语
客服
消息
收藏
下载
最近

































