查看完整案例

收藏

下载
郝泽伟设计工作室 | 游木之宅
室内是建筑的灵魂,是人与环境的联系,是人类艺术与物质文明的结合。
HALL
- 化整为零,突破原始格局,使用理性的设计语言重构空间秩序。以简洁的木、白线条构建空间骨架,虚与实、光与影,或穿插、或咬合、或透视,空间关系层层递进,传递出丰富的空间张力。
PUBLIC AREA-不破不立,破而后立。结合客户需求,调整原有房屋结构。在公区中置入一个“白色盒子”,围绕这个盒子形成“洄游动线”。这个“白色盒子”将公区和私区串联起来,弱化原始过道狭长、逼仄的空间感受,将原本单一的动线变成“洄游动线”。
MIGRATORY ROUTE
白与木
洄游动线“规划得更加流畅、自然,让人们在空间中行走活动更加方便、舒适。打破了传统设计思维,将家居空间变成一个互动、通透的整体。不但提高空间的利用率,而且增强家庭成员之间的互动和沟通。
PRIVATE AREA-细节决定成败。从清晨的第一缕阳光到夜晚的星辰月光,坐在卧室落地窗前,感受不同时段的变化,人与空间无声对话,家成为我们最信赖的倾诉对象。
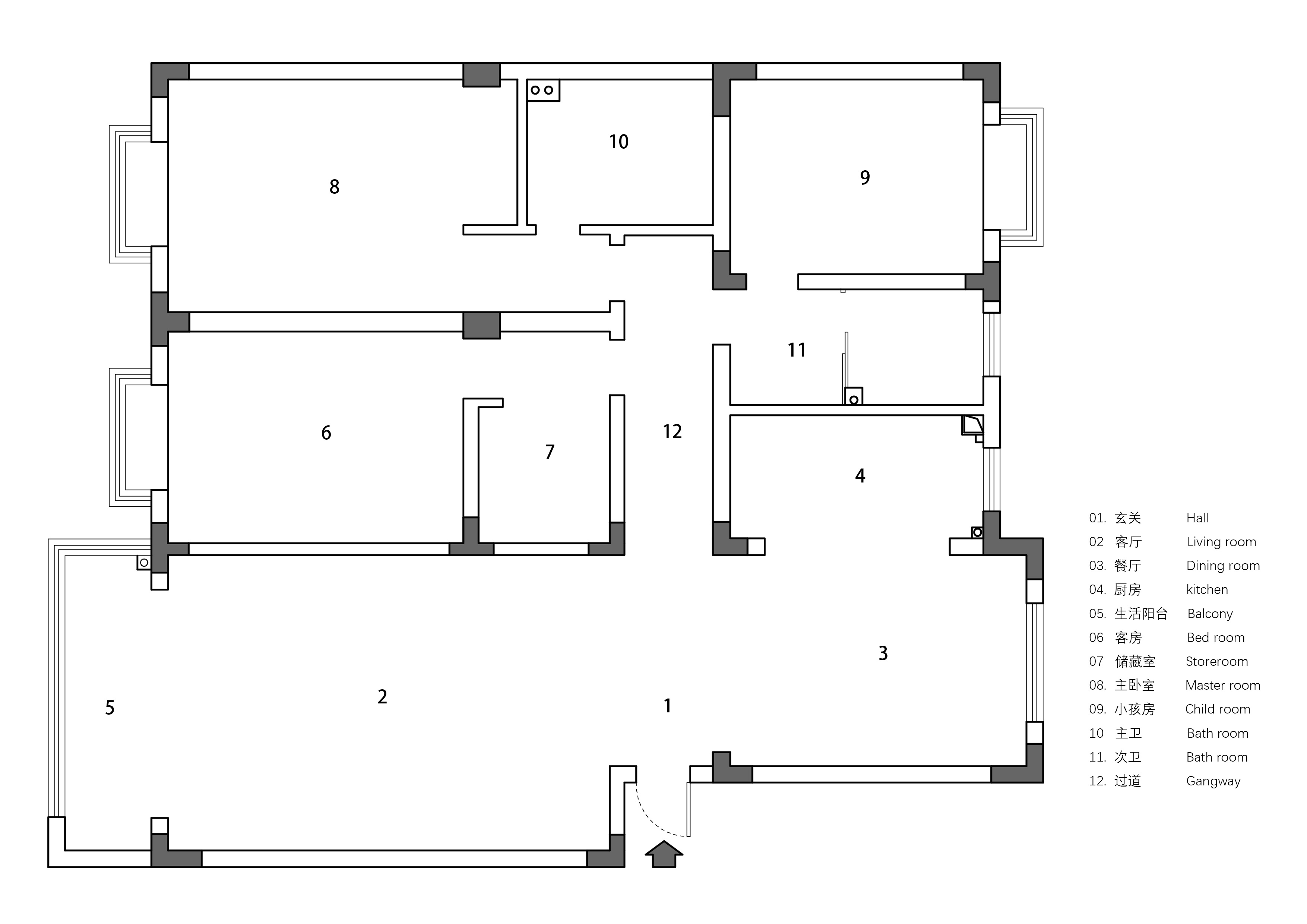
《原始结构体》
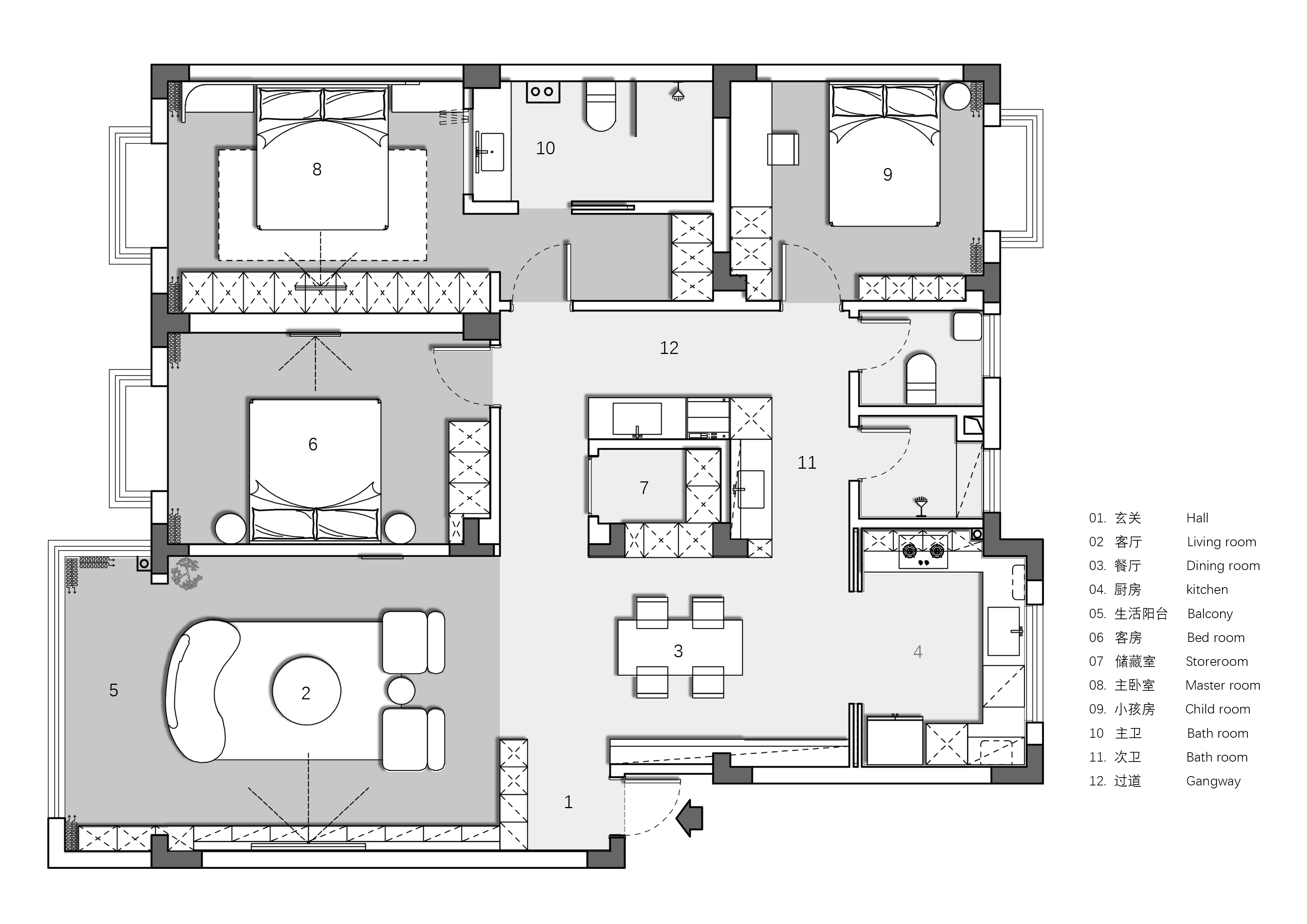
《平面布置图》
项目地址 | 合肥 | 徽州人家
项目面积 | 150㎡
设计单位 | 郝泽伟设计工作室
项目摄影 | 白夜视觉
郝泽伟设计工作室(HZW DESIGN STUDIO)成立于 2018 年,是一家新生代个人设计工作室,坐落于美丽的大湖明城“安徽-合肥”。由一支富有激情的年轻设计团队组成,有着很好的专业素质和服务意识,能总揽全局,做到所见即所得,确保设计作品安全落地。公司专注于商业空间、高端会所、中高端私宅等领域的空间设计,主张设计来源于生活、又服务于生活的设计理念,致力于创造满足人们物质和精神生活需要的室内环境,打造高品质的空间设计。|T.18715513485 郝泽伟设计工作室地址:中国|合肥|瑶海区宝文国际大厦 908 室很棒自然舒适公卫的实景图片没有吗谢谢,学习中,优秀的作品值得更好的学习 6666666666666666666666666 舒服的味道感谢楼主的分享 6666666666
客服
消息
收藏
下载
最近





































