查看完整案例

收藏

下载

翻译
Architects:MailenDesign,Peter Bradford Architects
Area:385m²
Year:2023
Photographs:Peter Landers
Structural Engineer:SD Structures,SD Engineers
Main Contractor:Syntheto Construction
Quantity Surveyor:Astute Quantity Surveyors
Interior Design:Mailen Design
Fireplace Specifier:Victoria Stone
Client:Saro Castagna and Alexis Campbell
Building Control:SD Engineers
City:Staplehurst
Country:United Kingdom
Text description provided by the architects. Weald House by Mailen Design and Peter Bradford Architects is a four-bedroom, new-build house nestled into a verdant plot in Kent, United Kingdom. The two practices have collaborated to create a single-story home which adopts the local vernacular architecture to celebrate surrounding meadows and luxuriant foliage beyond. Long-standing Islington residents, clients Saro Castagna and Alexis Campbell, purchased the plot of land to build a family home. With four adult children and a large extended family, they wanted to move from their London townhouse to a home with sufficient space to host large groups together. The plot was sold with planning permission and an existing scheme that the clients' felt was alien to the rural landscape; a multi-level, ostentatious design that disregarded its natural context and failed to take full advantage of the beautiful meadows and woodland beyond. Saro and Alexis had a clear idea of what they wanted; a low-lying build that respected the surrounding landscape.
Mailen Design and Peter Bradford Architects were commissioned to collaborate on the design; the two practices had previously worked together on another residential project. Saro and Alexis provided visual references in their brief which highlighted Japanese minimalist architecture and modern homes in New Zealand. Throughout lockdowns in 2020, the architects had frequent Zoom meetings with Saro and Alexis to understand their vision and collaborate on developing the initial layout. With Italian roots, Saro's love of cooking for family and friends inspired a large, open-plan kitchen and dining space at the heart of the plan. Saro explained his culinary process spatially; highlighting the importance of his proximity to the kitchen cabinetry, oven, stove and his loved ones. Saro's dream was to then position this process in front of a view of the surrounding natural landscape. Another key part of the brief was a study that allowed Alexis to enjoy the natural setting while working from home.
Weald House stands as a contemporary interpretation of the familiar agricultural black barn. The initial design of the house featured polished concrete flooring and maximum glazing throughout. However, the clients wanted to have a feeling of security and privacy without losing the beautiful panoramas. Consequently, the design was adapted to meet the competing needs for openness and privacy. From the drive and the public approach, the rear side of the building is solid, with doors and windows secreted in the frame to provide access and light without revealing the southerly aspect. The south-facing views, away from public view, are dominated by full-height glass doors and windows, opening out onto the long meadow framed by lush woodland. The intentional placement of windows and rooflights which frame the natural views cast everchanging sunlight on the internal rooms and corridors. A strong alignment between the client's vision and the architects' approach to context resulted in a refined material palette internally. Establishing a sense of calm, large, light grey porcelain tiles ground the home while chalk-painted walls allow the surrounding landscape to take center stage.
The architects adopted a conscious responsibility to the peaceful site, with neighboring buildings including a historic brick farmhouse and a black-clad, grade II-listed barn. Situated at the end of a gravel driveway, the house's facade balances privacy and security with visual sensitivity and intrigue. Black cladding extends across the rear elevation and wraps around the entirety of the building to create a cohesive volume that embeds seamlessly into the plot. Each board varies slightly in depth and profile, establishing a gentle tactility to reflect the imperfect beauty of the natural surroundings. A black zinc, pitched roof crowns the home, defined by a highly-detailed fine edge that cleverly conceals a rain gutter.
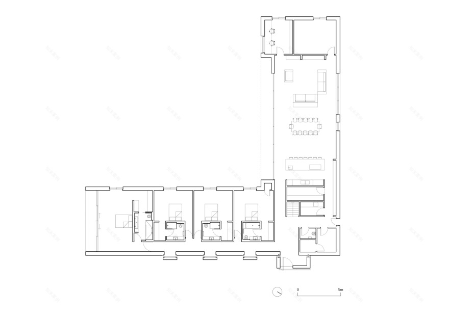
The main door opens at the intersection of the L-shaped plan, where a WC and boot room are tucked neatly in the corner. A short corridor leads into a voluminous, open-plan kitchen, dining and living space where wall-to-wall glazing frames a sweeping view of a meadow and a luxuriant treeline to one side. At one end of the room, a matte black kitchen is positioned behind a custom-built, blackened stainless steel island with an induction hob, sink and pull-out storage drawers. Pantry storage and a laundry room are tucked between here and the main entrance, next to an oak staircase that ascends to an airy mezzanine above, with views over the kitchen and living space below and three roof lights that frame leafy tree canopies. Creating a convivial atmosphere when cooking and hosting, a dining space sits adjacent to the kitchen island. Extensive glazing slides open onto a paved terrace where the same grey porcelain tiles continue underfoot, blurring the distinction between the internal and external living spaces. Deep eaves in the pitched roof protrude over the elevation to create a sheltered area outside, allowing far-reaching views to be enjoyed throughout the seasons.
At the opposite end of the kitchen and living space, an open fire with a thick concrete shelf acts as a focal point against a black paneled wall that conceals two doors on each side. One door leads into a separate snug and the other into a home office with a verdant outlook. The other section of the house stretches out to the left of the front entrance, comprising four bedrooms that sit off a long hallway, each with an ensuite bathroom, in-built storage and views of the surrounding meadow. Three box protrusions along the hallway provide glimpses of the driveway, aligned with roof lights that cast shifting sunlight down the wall opposite. Cleverly camouflaged, a door is set amid a black paneled wall at the end of the hallway, echoing the paneling in the main living space, opening into the master bedroom where expansive glazing allows the natural landscape to serve as a backdrop.
The architectural team was present through the building process to work collaboratively with the builders to execute their detailed designs. Through careful consideration of orientation, material selection and placement of glazing, Weald House functions predominantly off-grid and is supported by 45 solar panels and two air-source heat pumps. The pitched roof extends out over the front and rear elevations to regulate internal temperatures through the seasons, but also functions to capture rainwater in subterranean tanks. The roof lights allow light to flood in and shift across the walls throughout the day. At night the moon floods in repeating the ever-shifting patterns of light and shade.
Weald House reveals a highly collaborative process, with the architects working closely with the team at each stage of the project to realize the clients' vision; a sensitive and contemporary interpretation of the black agricultural barn that reflects its context. Ben Mailen, Project Architect, Mailen Design said: 'The process of designing and working with the client often involves becoming part of the family yourself. The true success of the project was a united vision to create a home that breathes the essence of its natural surroundings.' Saro Castagna and Alexis Campbell, Clients, said: 'Peter and Ben saw our vision, sincerely understood what we were trying to achieve and gave us ideas that inspired us. The result is a home that is completely personal to us; supporting the way we want to live and allowing us to have an intimate dialogue with the surrounding natural landscape.'
Project gallery
客服
消息
收藏
下载
最近






















































