查看完整案例

收藏

下载
月下餐厅项目诞生于杭州重点历史文化街区,是位于大兜路沿运河历史街区的建筑改造项目,毗邻浙江省重点文物保护景点-香积寺。自2009年以来,运河集团对整个历史街区进行了逐步提升改造,旨在保护和重新诠释运河沿线文化圈。
▽玻璃大面的设计给予了建筑更为显眼的进出关系©SALOME STUDIO
月下餐厅的概念灵感源自唐代诗人李白《月下饮酒》中所描述的场景:“且须饮美酒,乘月醉高台”,意在营造远离城市喧嚣,享受自然馈赠的恬淡闲适氛围。以中国传统文化的特质为概念基础,结合现代都市生活方式,在概念创意过程中,应用对比鲜明的中国传统园林建筑元素及现代建筑典型用材,如:月形拱门(庭院入口门)、木窗立面装饰、天然石材以及现代双立面遮阳体系、室内空间“去装饰化”理念。
▽建筑一角© SALOME STUDIO
▽项目外部不再使用灯光©SALOME STUDIO
环绕餐厅周边的城市文脉,“传统”与“现代”的建筑语言的不断交替,也恰巧将项目置于相当中心的位置。在这里,建筑风格的变化呈放射状,而餐厅恰好处于城市风格转变的边界,因此需要寻找一种设计风格,力求在陪伴游客于这一历史文化街区,留住大兜路的记忆。因此,项目建筑采用“双面”组织设计,西侧俯瞰历史街区的内侧巷道:保留了白砖墙的传统语言和黑色陶瓦;东侧面向丽水路,辅以现代化建筑语言,项目与城市文脉的融合也因此呼应概念本身的出发点。
▽建筑一角© Forme
▽坐在院内的休息的食客© Forme
根据街区政府部门的指示,该项目被定位为沿河历史街区的入口之一,因此该项目不仅被定义为一家餐厅,更是两个截然不同的城市环境之间的纽带:摩登和传统。当然,我们不能忘记建筑本身的功能:一个需要平衡隐私和舒适的餐饮场所。
▽概念上试图保留建筑历史部分并赋予现代手法© Forme
我们怎样才能融合和表现以上元素?答案便是在立面透明度的控制上寻求解决方案,立面采用了根据浙江历史建筑的典型比例设计的木质遮阳系统。这种效果确保了不受树荫庇护的立面避开阳光直射,也在夜晚灯光的照映下呈现出柔和的阴影明暗效果。
▽窗户的分格©SALOME STUDIO
朝南的立面,由于之前经营者的装修影响,原有的立面元素秩序完全被消除,窗系统和现代固定装置的使用,在街区的历史背景下呈现出一种风格上的陡然突变,我们的解决方案是通过将窗系统改造为简洁的敞开式玻璃,最大限度地减少窗系统元素带来的风格不协调。这带来了一种转变,丰富了二楼墙壁的意义,将其转变为一个展览空间。从外及内,看到的是是庭院讲述着餐厅与美食的烟火故事;从内而外,俯瞰的是周边历史建筑,娓娓道来运河城市的昨日今天。
▽玻璃大面提供足够的视野©SALOME STUDIO
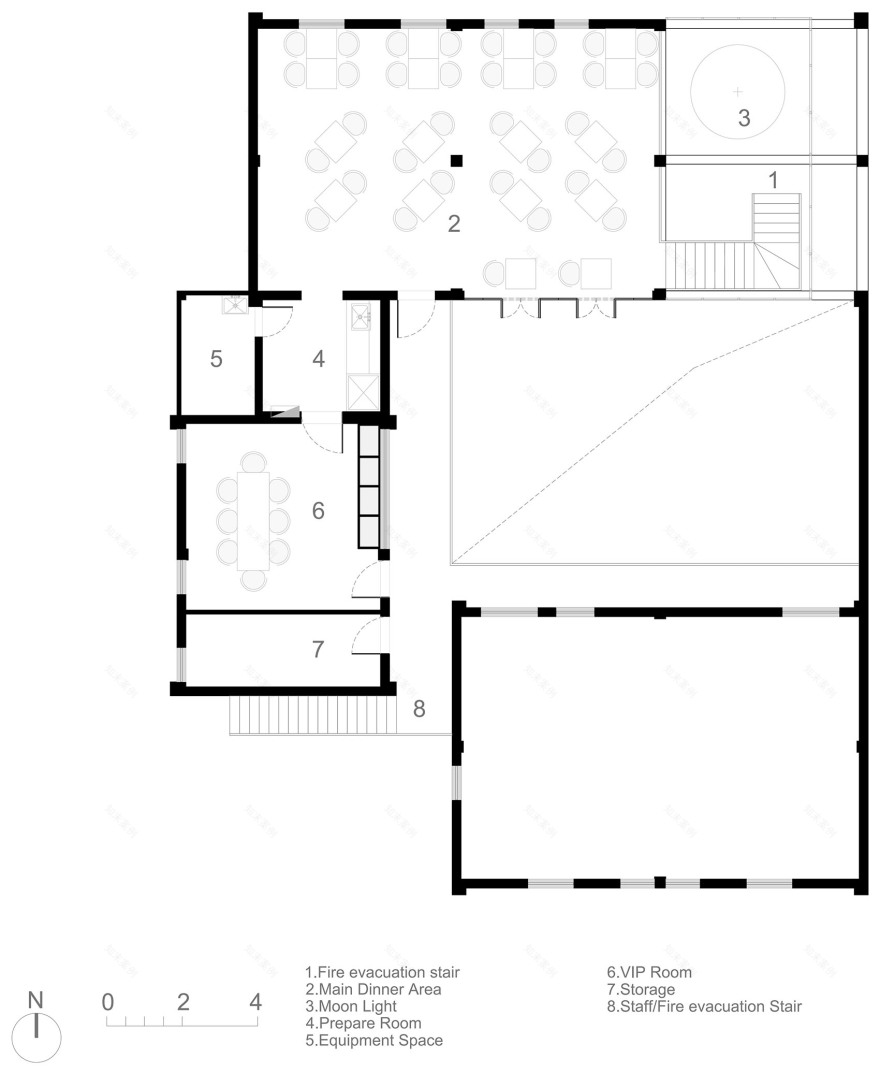
走进餐厅内部,项目主要分为两层,一层的西区布局了厨房和吧台空间。走上二楼空间,东立面特别的挑空设计,创造了
一个内景观阳台,透过通高的大落地玻璃,俯瞰城市,品味生活。二楼的西侧,设置了一个私密包厢,抬头是外露的双坡屋顶,平视是一面讲述葡萄酒万种风情的墙壁,体现的是优雅的餐厅主理人对葡萄酒的热爱与赞美。阳光透过中式窗户的几何图案和落地玻璃,洒在墙壁的装饰肌理上,落在长虹玻璃上,形成了一种阴影交替的装饰元素,在包厢里享受一杯美味的午后葡萄酒,品尝一餐精致优雅的晚宴,顿生一种“慢品人间烟火色,闲观万事岁月长”的安然恬淡之意。
▽人类的共同记忆是停下脚步©SALOME STUDIO
▽根据窗外的明度变化©SALOME STUDIO
▽建筑上使用的“剥离”理念©Forme
再回到首层,典型的中国传统四合院建筑,进行着强烈的内外空间融合。南侧的折板玻璃墙可完全打开,与庭院花园的空间完美衔接;在春天,朝东的立面上,一面大大的折叠窗创造了一个有趣的空间,坐观城市风景,摆上精致好看的餐盘,佐以春日的绿叶清风,享受一份独有的、快节奏的惬意午餐。
▽三扇窗分别正对常青树©Forme
▽室内的静谧感© Forme
室内装饰和软装材料的选择则基于“自然”的概念,不过多进行“人为”装饰,因此选择了无复杂加工过程的材料,例如:混凝土,发文不锈钢,微水泥、抛光混凝土、木材和长虹玻璃。考虑到房屋经过一系列先前的改造后,其原有结构特征的完全丧失,其本身的结构已经不再是木材,而是钢筋混凝土,我们选择通过“去装饰化”手法,突出混凝土的自然表现力,与传统的“覆盖性装饰”手法相反,我们试图 “发现”建筑的原始面,并将其转换为装饰元素。
▽设计上利用阴影来丰富室内的纹理。午后©Forme
▽每个餐位都具有自己独特的风景©SALOME STUDIO
与项目建筑和室内部分结合的便是其内部庭院,呼应项目室内的风格趋势,砾石铺装的灰色调与银杏树叶的黄色调形成色彩反差,创造出一种更丰富的感官体验。我们也保留了对杭州这一城市非常重要的中国园林传统元素,例如东面的拱形入口和当地石材铺装而成的小径。对厨房大石窗的崭新诠释,在透光的同时也能稍许遮蔽来往客人的视线,窗内人影,若隐若现,展示着美食烹饪的美好过程。
▽景观部分选用石砖©Forme
在灯光选择上,餐桌灯光我们选择使用充电氛围灯,不仅保证了桌子布局的更大自由度,其概念也遵循了项目主题“月亮”的元素,营造一种“花前月下,隐于自然,畅饮闲聊”的轻松氛围。这一点不仅再现了室内空间概念的诗意,也透过落地玻璃,融合到现代摩登的城市环境中。
▽得益于灯光和长虹玻璃的组合设计©SALOME STUDIO
▽轴侧图©Forme
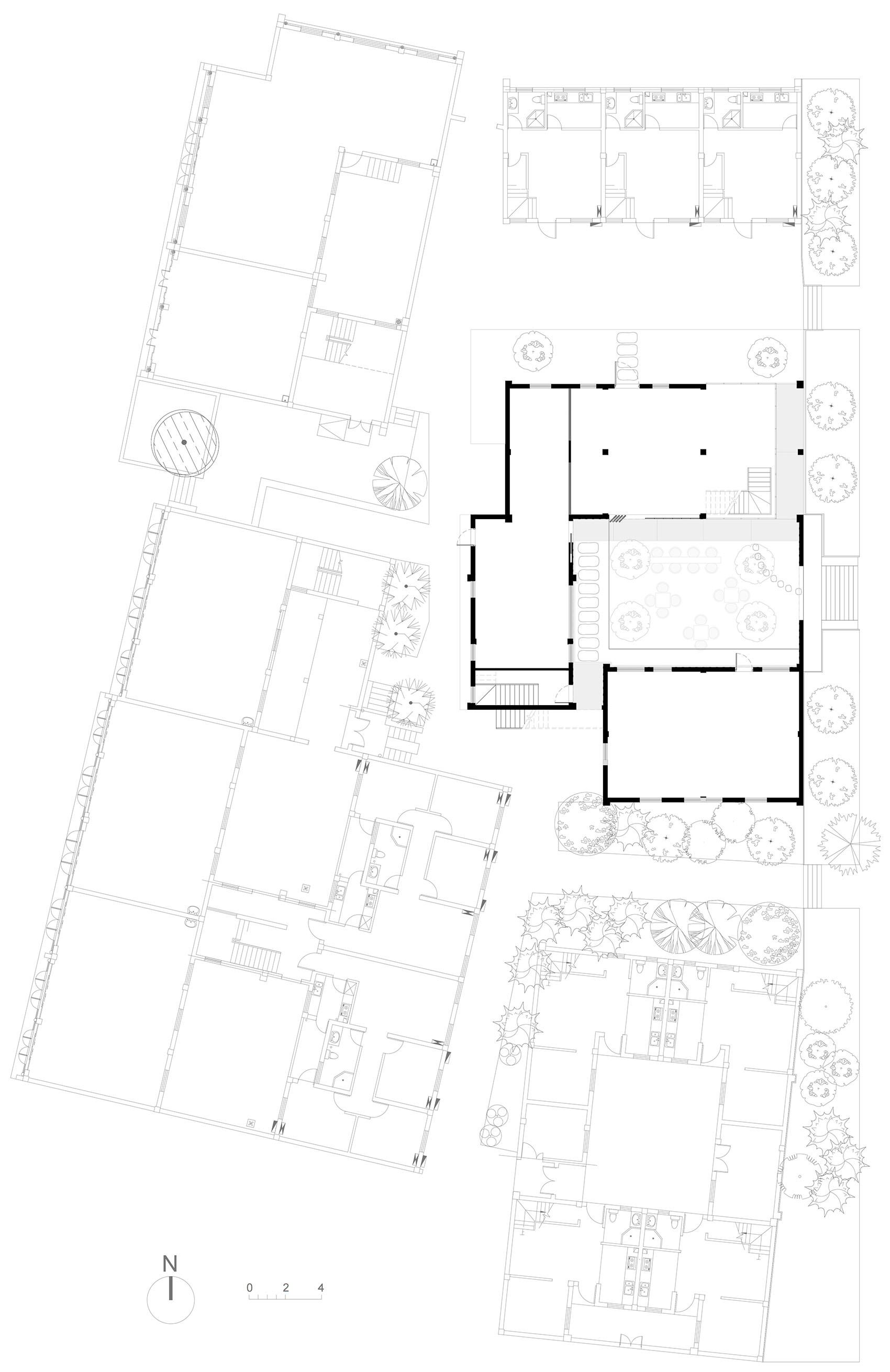
▽总平面图©Forme
▽一层平面图©Forme
▽二层平面图©Forme
▽负一层平面图©Forme
▽立面图©Forme
项目名称:月下
项目类型:餐厅,建筑改造
设计方:非木建筑工程管理有限公司
项目设计:杭州非木建筑工程管理有限公司 (建筑,室内,景观)
完成年份:2022
设计团队:Claudio Milanesi (主设),李哲桢,蔡舜欣,唐得智,李东洋
项目地址:浙江省杭州市拱墅区大兜路248号
建筑面积: 862 sqm.2501349㎡
摄影版权:SALOME STUDIO , 非木建筑工程管理有限公司
合作方:杭州蓝匠装饰有限公司 (施工方)
客户:邵群芳女士
材料:混凝土,钢材,木材,超白玻,长虹玻璃
客服
消息
收藏
下载
最近












































