查看完整案例

收藏

下载
设计任务 Task 本项目是一栋从独栋住宅到双户住宅的翻新和扩建项目,本项目呈现了对居住区进行密集化的方案。业主的要求是为子孙后代打造一个可持续的住宅,这要求除了生态设施之外,设计者需要进行重新致密化设计。
From a single-family house to a two-family house consists of the renovation of a single-family house and the extension to a two-family house. The project shows a possible form of subsequent densification of existing settlements. The client’s desire to create a sustainable property for future generations meant that, in addition to ecological implementation, redensification was also an obvious choice.
▼项目概览
Overall view© Dominic Kummer
▼建筑近景,Close view© Dominic Kummer
当地建筑理念 Local architectural idea
本项目坐落在一个典型的住宅区内,当地建筑密度较低,以独立住宅为主。因为多层住宅对建造场地环境有要求,所以设计者将本项目定位在两种类型之间,结合了较高密度的住宅与花园两种生活方式。
The house is located in a typical residential area with a low building density of self-referential detached houses. It is not possible to build multi-storey residential buildings in every environment. The project positions itself between the typologies and combines a higher density and living with a garden around the house.
▼建筑立面,Facade© Dominic Kummer
▼立面细部,Facade detials© Dominic Kummer
方案落地 Realization 设计目标是为打造一个供两个家庭生活的空间,并尽可能保留建筑的原有结构。设计者对这栋始建于 20 世纪 60 年代的房屋进行了改造,增加了一个开放式楼梯,是扩建了阁楼部分。
The intention was to create space for two families while preserving the fabric of the family property as much as possible. The existing building from the 1960s was thermally renovated and an open staircase was added, and the attic was extended.
▼厨房,Kitchen© Dominic Kummer
▼餐厅,Dining room© Dominic Kummer
对建筑立面的翻新和顶层的扩建表达了设计者对项目的全新诠释。他们将石膏材质的外墙和较小的开窗进行调整,符合了业主对木质外墙的愿望。在对外墙结构进行改造后,可以采用低热能代替原油的燃油锅炉为建筑物进行供暖。
The refurbishment of the shell and the addition of the top floor led to a new interpretation of the façade. The original character of the plaster façade with its small openings was further developed in line with the client’s wish for a timber façade. Thanks to the upgraded envelope, the building can now be heated with geothermal energy instead of the old oil-fired boiler.
▼餐厨近景,Detials of kitchen and dining area© Dominic Kummer
▼阁楼空间,Loft space © Dominic Kummer
室外区域主要提供进出方便和娱乐的功能,这个区域完善了整体项目。中央空间被打造为一个开敞、半私人的户外区域,这里是本项目真正的附加价值。
The additional outdoor areas, which are used for access and recreation, complete the volume of the existing building. The resulting intermediate space creates real added value as an atmospheric, semi-private outdoor area.
▼室内楼梯,Stairs© Dominic Kummer
▼从室内看向木质立面,View from the interior towards the wooden facade © Dominic Kummer
▼天窗,Skylight© Dominic Kummer
▼材质细部,Material detials© Dominic Kummer
室内 Interior 立面安装了大型的窗户,增强了室内外时间的联系。首层与花园直接连通,较高楼层则与凉亭相邻。顶层的空间因为扩建的阁楼而大大增加。空间的高度和天窗为室内带来了充足的自然光线和自然通风。
Generous openings emphasize the relationship between the individual residential units. The first floor apartment leads directly into the garden, while the upper floor is closely connected to the loggia in front. The interior of the top floor benefits from the added attic space. The room height and the skylights allow for light-flooded, airy living.
▼项目区位
site plan© MWArchitekten
▼地下层平面图,
-1 floor plan© MWArchitekten
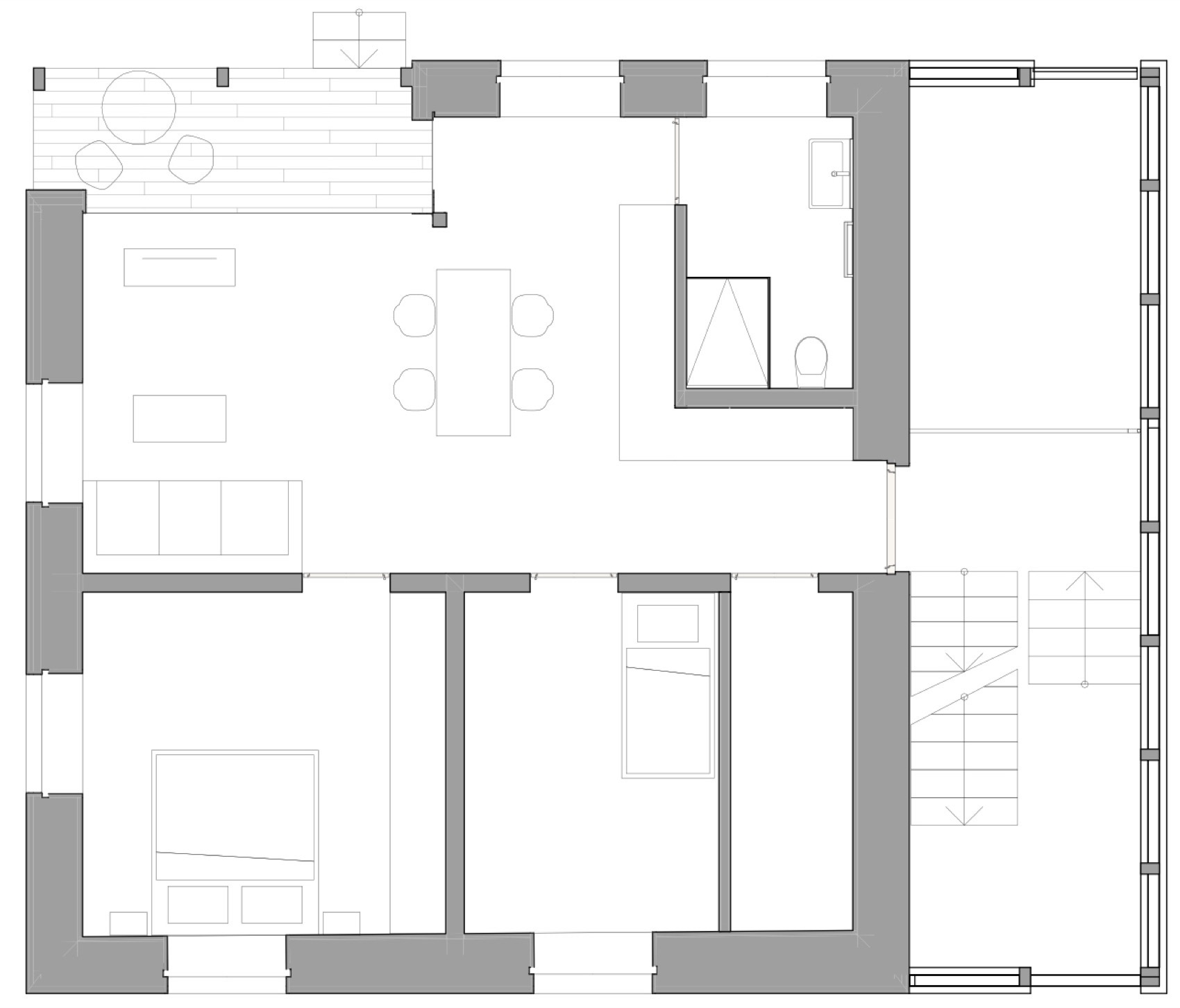
▼首层平面图,ground floor plan© MWArchitekten
▼二层平面图,first floor plan© MWArchitekten
▼立面图,elevation© MWArchitekten
▼剖面图,section© MWArchitekten
Project Information
Project name: From a detached house to a semi-detached house
Client: Private
Architect: MWArchitekten
Social Media:
Email: Info@MWarchitekten.at
Address: Marktstraße 48, 6845 Hohenems, Austria
Specialist planning:
Project- Office management Architecture: Lukas Peter Mähr: maehr@mwarchitekten.at
Collaboration architecture: Robert Gentner, office@mwarchitekten.at
Collaboration architecture: Tobias Moritz, office@mwarchitekten.at
Structural engineering: Daniela Helbock, Baupysik Weithas
Structural engineering: Martin Fetz, FS Project,martin@fs-p.at
Construction management: Martin Fetz, FS Project, martin@fs-p.at
Start of planning: 2.2022
Execution: 4.2024
Plot size: 1050
Living space: 240
Basement: 60
Construction method:
– Existing solid
– Renovation: Timber frame construction
– Facade timber construction
Special feature:
– Urban densification
– Energy-efficient refurbishment from standard G to A
– Ecological construction method
– Wood from here
Execution Company:
Master builder: Bader Bau, herwig@bader-bau.at
Sun protection: Blank, janine@blank.at
Timber construction: Dr. Holzbauer,
Interior doors: Tischlerei Walch, info@tischlerei-walch.at
Electrical: Phitsanu-Elektro, info@phitsanu-elektro.at
Plumber: Bechter Best, wolfgang.bechter@best-servicetechnik.at
Windows: Isele fenster, info@iselefensterbau.at
Carpenter: Künzler joinery, info@kuenzler.at
Energy coefficient: 49.36
Construction costs: –
Completion: 4.2024
Location: Feldkirch
Function: Residential
Photographer: Dominic Kummer
Address: Schwarzenberg, Vorarlberg
客服
消息
收藏
下载
最近
































