查看完整案例

收藏

下载

翻译
Architects:Lukas Imhof Architektur
Area:3500m²
Year:2022
Photographs:Hannes Heinzer
Manufacturers:Bricosol AG
Structural Engineering:Rolf Soller AG
Project management:Construct Baumanagement GmbH
Design:Lukas Imhof, Jean-Brice de Bary
Project Management, Planning, Drawing:Carmen Diaz-Marotto Rivas
Program / Use / Building Function:Primary school
City:Landschlacht
Country:Switzerland
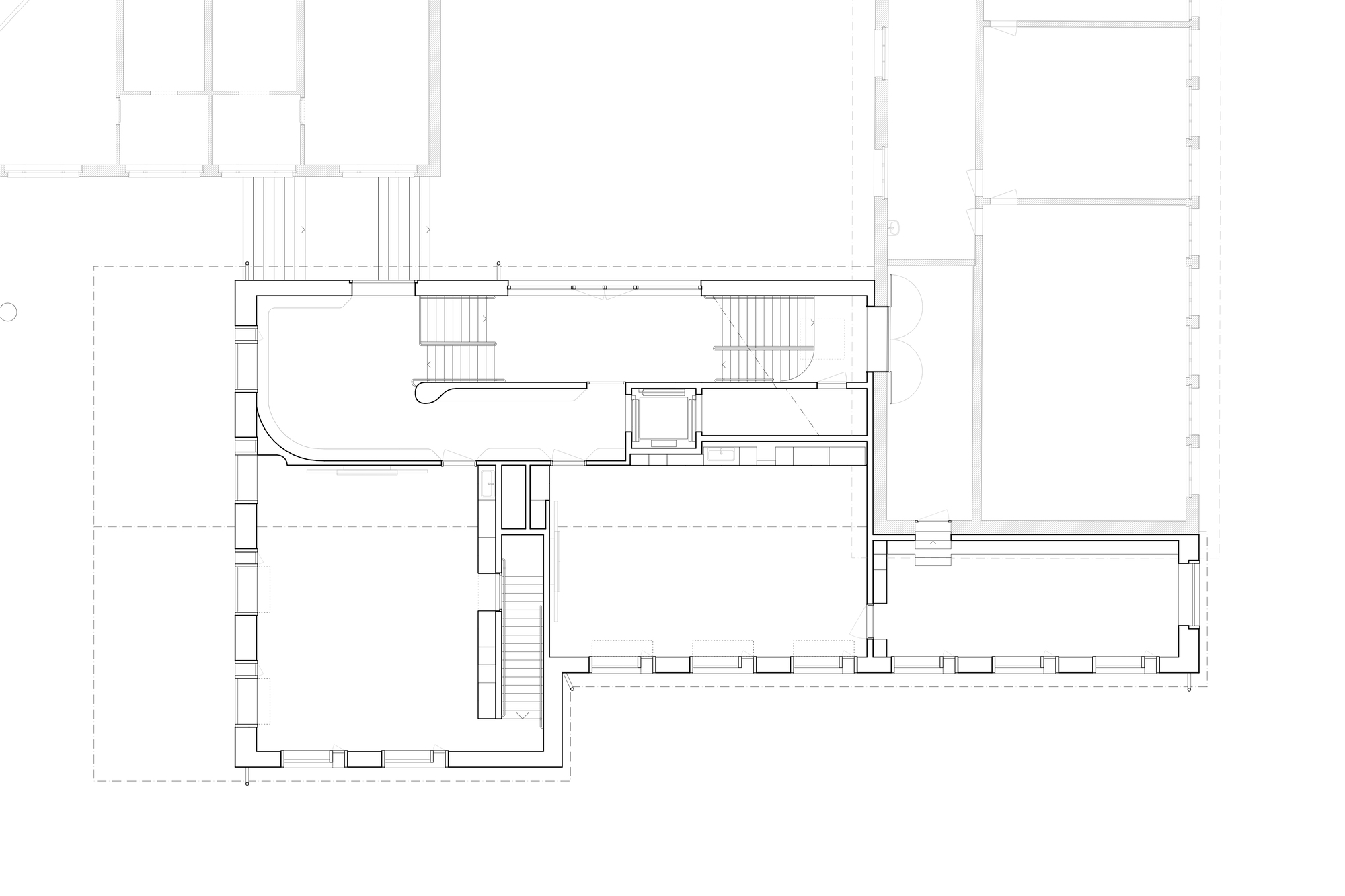
Text description provided by the architects. Program - Extension of an existing, partially listed school complex as a new building/extension with new surroundings. The extension contains classrooms, group rooms, a library, a new workroom and new access to the old and new buildings.
Description - The existing school complex with the listed core school building, the multipurpose hall from the 1980s and a kindergarten were to be extended with additional classrooms.
We interpreted the task in such a way as to create a new spatial order on the site: a new main entrance for the entire complex with a public entrance square on the one hand, and an intimate play and learning courtyard inside the complex on the other, with the third outdoor space being redesigned as a "green schoolroom" under the mighty existing oak tree.
We are addressing the issue of sustainability with unagitated and economical "low-tech" solutions. Large areas of glazing are replaced by "sensibly" large windows with glass with a low solar control function. A large and accessible storage mass enables passive heat storage. Night cooling and geothermal probe heating with geo-cooling regulate the indoor climate.
To ensure the best possible system separation, we decoupled components with different lifetimes and minimized interconnected component layers (no suspended ceilings, no glued-on floors, etc.). Electrical cables were not laid in concrete, but remain accessible and traceable in a crawl space and integrated into carpentry work. Ventilation ducts are integrated into the carpentry work - for example as a bench. The outer wall made of single-stone masonry has no other structural layers apart from an inner and outer render.
Project gallery
Project location
Address:Schulstrasse 25, 8597 Landschlacht, Switzerland
客服
消息
收藏
下载
最近

























