查看完整案例

收藏

下载

翻译
Das Gebäude befindet sich nördlich Braunschweigs im neu entstehenden Viertel am Ringgleis, an der Kreuzung Nordanger und Am Nordpark.
Das Baugebiet ist ein gutes Beispiel für eine fortschrittliche Stadtentwicklung, wo ehemalige Industrieorte zu moderne attraktive Wohngebiete werden. Es sind mehrere Lebensmittelgeschäfte zu Fuß erreichbar, die Gegend ist durch Radwege (u.A. auch durch Ringgleis) mit anderen Stadtteilen verbunden. Was für ein Studentenwohnheim natürlich wichtig sei, dass in unmittelbarer Nähe sich der Hauptcampus und der Nordcampus der TU Braunschweig befinden. Etwas weiter entfernt (15 Minuten mit dem Fahrrad) befindet sich die HBK. Da Kulturleben eine wichtige Rolle in Studentenleben spielt, es ist wichtig anzumerken, dass in der Nachbarschaft ist Haus der Kulturen präsent.
Das 8-stöckige schiffsförmige Studierendenwohnheim steht an der Nord-Süd Achse, richtet sich mit seiner Spitze nach Süden und wirkt als Landmarke. Die verglaste Fassade ermöglicht es den Bewohner, das Tageslicht bei den Wetterbedingungen und begrenztes Anzahl an sonnige Tage in Braunschweig optimal zu nutzen. Um direkte Sonnenstrahlen jedoch zu vermeiden ist die Fassade zweischalig, das Gebäude ist mit perforiertem Aluminiumgitter verkleidet.
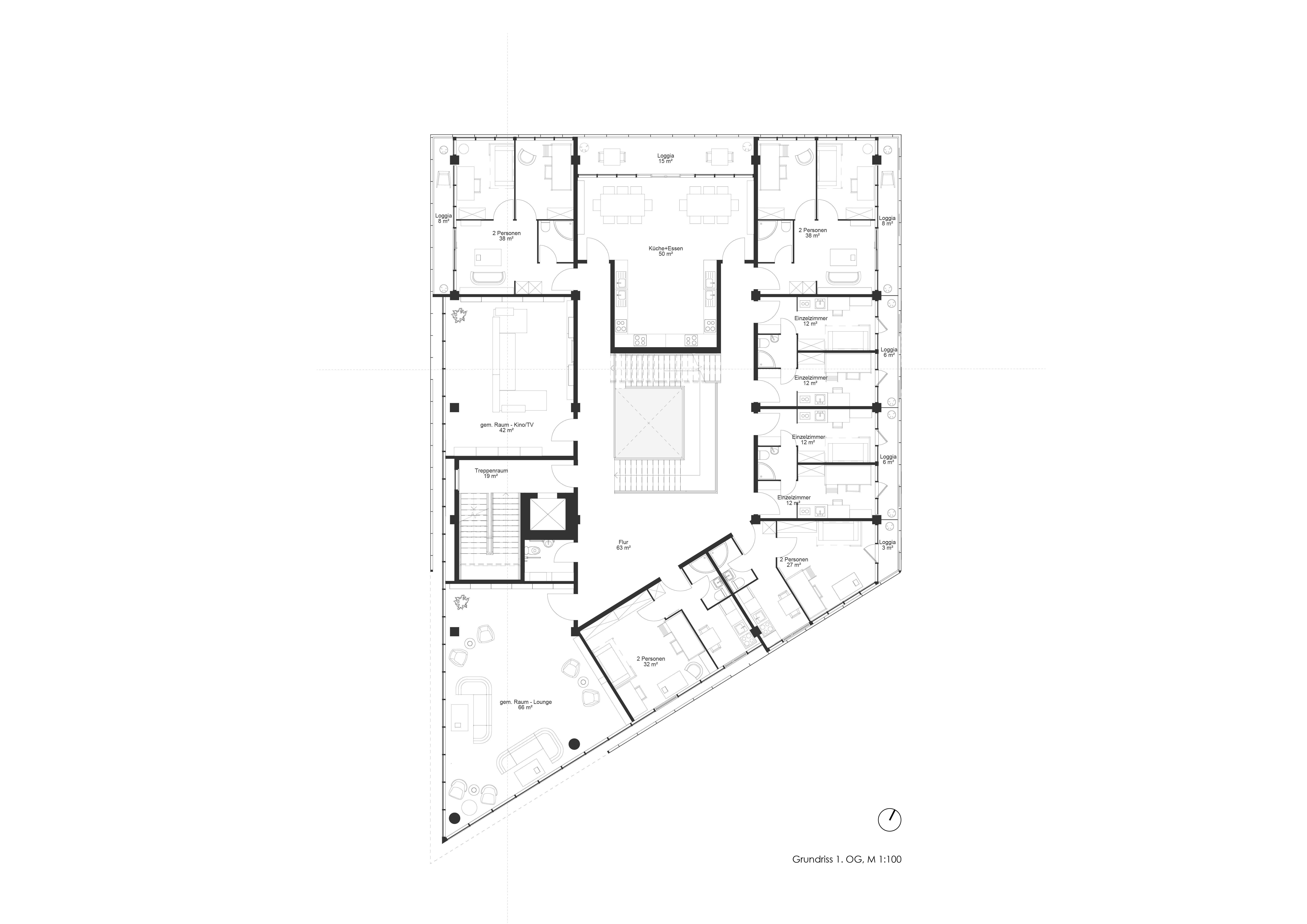
Der Kernidee des Wohnheims besteht darin, verschiedene Studenten zusammenzubringen. Besonderes Augenmerk wird auf interkulturelle Kommunikation und die Möglichkeit der Integration internationaler Studierender gelegt. Das Gebäude bietet mehrerlei öffentliche Räume. In jeder Etage ist neben einem Gemeinschaftsraum zum Lernen, Musizieren und sich zu erholen, eine Küche mit einem großen Essbereich vorgesehen. Damit man jederzeit eine Atempause nehmen kann, bleiben mehrstöckigen Dachterrassen rund um die Uhr für Bewohner zugänglich. Drei von insgesamt vier Terrassen sind mit dem Aufzug erreichbar, die obere kann durch die Treppe erschlossen werden. Im Erdgeschoss ist das für die Öffentlichkeit zugängliche Mikrozentrum “Arts and Crafts Collective“ zu finden. Es beherbergt einen Store, eine Werkstatt und ein Café.
Die Privatsphäre bleibt aber ebenso wichtig, das Wohnheim bietet 31 separate Räume, wo man nicht nur übernachten kann, sondern natürlich auch lernen und die Freizeit verbringen. Davon sind die Mehrheit Zwei-Personen Apartments (17), Einzelzimmer mit geteiltem Bad (8), zusätzlich 4 Wohngemeinschaften für jeweils 5 Personen, 1 Studio und 1 Einzelzimmer.Das Gebäude ist ein Skelettbau mit einem unregelmäßigen Stützenraster von 5 bis 8 Meter. Da sich das Wohnheim an junge Studenten richtet und ihren Wunsch nach guter körperlicher Verfassung unterstützen soll, befindet sich in der Mitte des Gebäudes eine große helle Treppe, die als Hauptmittel für die Bewegung zwischen den Stockwerken gedacht ist. Ein Aufzug ist auch vorgesehen.
客服
消息
收藏
下载
最近







































