查看完整案例

收藏

下载
Madhura 住宅的设计满足了客户的愿望,即希望建造一个能让人回想起他们在卡纳塔克邦坎普利的祖屋——坎普利是亨比附近一个古雅的小镇,那里的古老住宅都是用泥土和石头建造的。挑战在于重现类似的体验,但要以他们现在称之为家的班加罗尔密集的城市环境为前提。简要介绍是建造两栋三居室住宅,每个兄弟姐妹一栋,并共享公共空间。这些住宅旨在与他们的根源建立联系,并支持他们的传统生活方式。根据我们与这个家庭的初步互动,我们了解到他们希望在住宅中有几个正式和非正式的空间,他们可以在那里进行社交和举办聚会,比如室内音乐会和宗教聚会。由于建造的场地面积为 3000 平方英尺,我们决定将房屋一栋叠在另一栋之上,以便明智地管理建筑占地面积,同时两栋房屋可以独立且私密。这两栋朝东的住宅的规划严格遵循 Vastu 的原则。
这个想法是通过周围的景观连接和包裹建筑空间。两栋房子的客厅都向景观开放——一楼有一个花园,二楼有一个带顶庭院。当它们举办聚会/活动时,这些空间就成为溢出空间。当你穿过大门进入时,你会被迎进一个前院和停车位,院子两旁铺着随机碎石图案的 Sira 石,为接下来的体验定下了基调。一楼的房子沿着东侧通向这个花园,以“Tulasi brindavan”(圣罗勒植物)为焦点。房子的所有公共空间,如入口门厅、客厅、餐厅、puja 和厨房,都与花园的这个线性扩展平行排列,因此它们始终与郁郁葱葱的景观连接在一起,同时带来宜人的东方光线。卧室向两侧的甲板和花园开放。
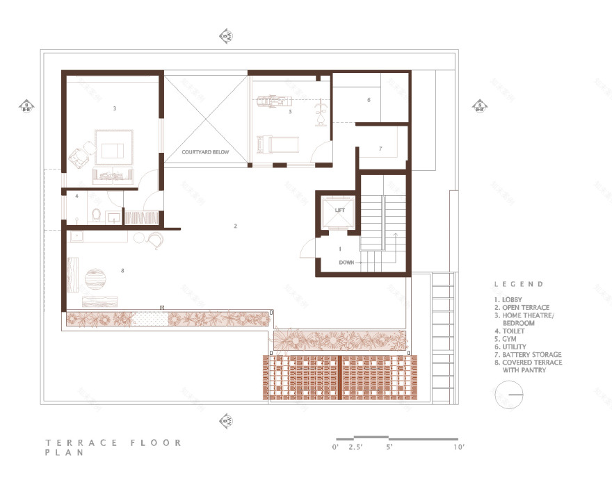
和一楼的花园一样,一楼的房屋也是围绕着一个有顶的景观庭院规划的。庭院是一个设有阶梯式座位的非正式空间。赤陶色的 jali 墙和带有玻璃嵌件的粘土瓦片斜屋顶在一天中创造了有趣的光影变化,使这个空间非常有活力。第三层设计为开放和半开放空间的有趣组合,通过增加带有粘土瓦片的斜屋顶而形成。这个露台层是房屋的公共空间,有直接的独立通道。露台的周边种满了植物,还设有一个带一些座位空间的储藏室。除了露台,同一层楼还有家庭影院和健身房。它是一天中不同时间进行共同活动的中心,如园艺、瑜伽和露天电影,以及休息和聚会的空间。
泥土和石头是两种主要材料,我们在各种技术中对其进行了探索和利用。这有助于重现祖屋固有的泥土气息,同时使建筑更加环保。我们采用了各种替代的建筑技术和材料来减少碳足迹。它使用未烧土块(压缩稳定土块 - CSEB)和主要暴露在外的空心陶土块建造。这种结构的室内和外部立面都有有趣的屋顶变化。我们热衷于减少屋顶混凝土的使用,因此将填充板技术与空心陶土块结合起来。这些空心砌块是极好的隔热材料,可以减少从屋顶传递的热量。砖砌的拱顶和拱顶进一步有助于实现这一目的。这些房屋是由各种不同的印度石头混合而成的——粗糙随机的碎石墙壁和地板的西拉花岗岩,也呈整齐的人字形图案,黄色的斋沙默尔,粗糙和抛光的科塔石,以及皮革饰面黑色花岗岩。
黄色氧化墙成为一面充满活力的特色墙,带来传统魅力,设计延续了斋沙默尔的黄色地板。这面墙上有周围植物的叶子印记,并用极简的泥土色突出显示。氧化墙上的这件艺术品是外部景观的延伸。房屋点缀着古董和随着时间的推移收集的艺术品。材料和形式的发挥反映在该结构的立面上,该结构被设计为两栋房屋,但被视为一体。形式的直线与千斤顶拱的节奏平滑曲线形成对比,而陡峭的倾斜屋顶使室外空间和立面非常有活力。
项目设计:Design Kacheri
项目面积: 4300 ft²
项目年份:2023
项目摄影:Arjun Krishna
Structural 项目顾问:Sigma Consultants
设计团队: Nidhish Kurup, Chaitra Saraf, Alex Paul, Arhata Jain, Mouleeswaran R
Contractors: Deepak and Ezhumalai
Interior Styling: Drisha Jain
Editing: Rohan Ullatil
Video: Anand Krishna (Ramasya films)
Music: Pawan Krishna and Walt Adams
项目成市: Kampli
项目国家: India
设计师:Design Kacheri
语言:英语
客服
消息
收藏
下载
最近



























