查看完整案例

收藏

下载
引言
Introduction
“距离疫情完全放开过去将近两年,似乎已是一件遥远之事,这是一段不愿回忆的往事。然而这所房子,是整个疫情的见证者,从设计到最终拍摄,时间已过了将近35个月,原本计划早早搬进的新家,也因种种外因而停滞,装修完成后就搁置在此,所以我们决定先拍摄啦。”
在这个不平凡的时代,我们共同经历了前所未有的挑战,疫情虽缓,但生活的热情与对家的向往却愈发强烈。这所房子从设计开始,就注定了它的“特立独行”,虽然是精装改造,但某种程度上更像是对生活的独特见解。因为在这个案子当中,我们与业主深入沟通后,决定将房子不做“重改”,而是“局改”,在不破坏地面的情况下,需要保持现状,仅仅能拆除的只有吊顶,那么在布局上必然就会有变化的可能了。
在精装房市场发展的当下,这个案子具有普遍性,因为这是大多数业主选择精装房后的困扰。是全改还是不改,成为大多数家庭的艰难选择。这两种方式很极端,或许折中后的“局改”更适用一部分市场的需求,也更匹配我们的业主。
进门就一览无余的空间,我们考量后,决定改变,改变进门的动线,改变开阔,因此设置了的格栅,延长了去往餐厅的距离,隔绝出进门正对餐厅的视觉感,让门厅更加立体,更加明确。
为空间规划出了门厅概念后,隔断的设置采用实墙与木格栅的结合,对应“虚与实”,实墙与原墙体多出来的空间,满足了女业主增设蒸烤箱的需求。
自然光与梦幻帘的组合,为家编织出一幅幅光影交错的画面。客厅的落地窗引入明媚阳光,与精致吊灯交相辉映,营造出既明亮又温馨的氛围。空间因此变得更加通透、灵动,每一次转身都是一幅流动的风景画。
客厅与书房空间更具功能化,开放式的展现展现更多的家庭互动,这里也是男主人的工作台,自然的过渡,既保持了空间的通透感,又实现了功能区的有效划分。这样的布局让两个空间相互渗透,形成既独立又统一的和谐整体。
设带有岛台的餐厅空间,同时融合出两种生活方式,当然这里也是女主人最喜欢呆的地方。
木纹色以其独有的温润与质朴,成为了连接自然与生活的桥梁。它不仅仅是一种色彩,更是一种情感的寄托,一种对简约、纯粹生活方式的向往。
空间里新到来的元素更加丰满,与原有的木门、柜子保持和谐共存,好像在诉说着一篇新的故事,是关于“美好的明天”
书房背后特意留出的开放部分,尽情的展示男主人的品味,我们将书柜一侧与黑镜、垭口进行结合,进门后的空间视觉被拉伸,似乎在展示着一种很有趣的“障眼法”。
老人房的色彩选择应以温暖、柔和的色调为主,如米白色、浅灰色等,这些颜色能够营造出宁静舒适的氛围,有助于长辈们放松心情,享受宁静的晚年生活。
同时,可以适当加入一些温馨的装饰元素,如暖色调的窗帘、柔软的抱枕和温馨的挂画等,增添房间的温馨感。
这是一个充满创意与想象的过程,为孩子打造一个既梦幻又安全,同时能够促进他们成长与探索的私人空间。
我们改变的卧室的布局,将衣柜的位置做了改变,与榻榻米地台做了相互结合,点缀的蓝色标识着小主人的特质。
我们调整了床的位置,将床与门放置在一侧,为的是满足尽可能多的收纳要求,其中进门的衣柜设置出开放格,保证空间内的相互连接与交互。
家中的每一件家具、每一处细节,都经过了精心挑选与搭配。它们共同营造出一个既美观又实用的居住环境,让家成为了一个能够激发灵感、抚慰心灵的地方。
BEFORE丨改造前
PROCESS丨过程中
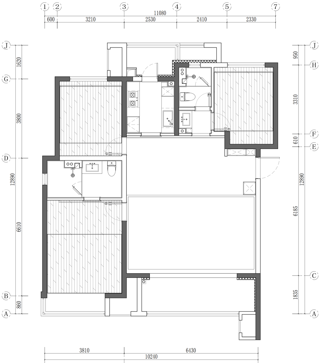
PLAN丨原始结构
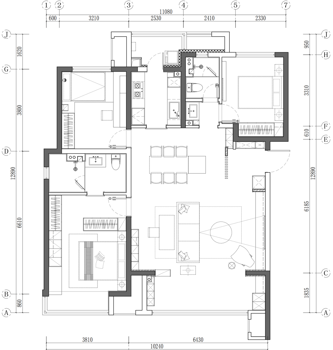
PLAN丨平面规划
项目信息
Project information
项目名称丨康桥悦蓉园
项目位置丨河南郑州
设计公司丨XZID室内设计
项目类型丨精装改造
项目面积丨124m²
设计时间丨2021.11
完工时间丨2024.01
摄影拍摄丨张扬
XZID室内设计主创许臻(右)、路盼
关于我们
About us
XZID室内设计是一个年轻有活力的90后团队,一直在探索设计在“家”中所处的意义,致力于打造更加专属的室内空间,直面“设计在于解决问题”这一原则,以现代主义设计改变居住审美,专注空间情绪与体验,寻求丰富与克制的平衡,为设计提供更多可能。
客服
消息
收藏
下载
最近



































