查看完整案例

收藏

下载
当下都市繁忙喧嚣,难觅一方安静。「渔烟暮色」主题项目意在嘈杂纷扰的城市中,引自然之境,安恬静之室,以养悠扬平静心境。
通过将乌镇中“鱼米之乡”的江南水乡文化自然元素融入空间设计中,打造质朴自然且舒适从容的居室,让诗意栖居成为家的日常。
古往今来,人们总渴望归于自然,安然于山水之间,如此清净空明,阵阵微风轻拂,树影摇曳婆娑,于此偷得浮生半日闲。
庭院中树木青翠,错落有致,以白砂为川,环山绕水,水波、山石、树木相依相衬,造就空濛山色,潺潺流水,简单质朴的东方意美,片刻凝望,使观者内心平静。
主人对中国文化中简雅的追求并不止于空间,对家常饮食也非常有讲究,日常细心挑选中式传统食材,亲手烹煮美食佳肴,食物的美味与空间的韵味相互映衬。
明净窗台借景庭院,厅堂之内则点缀山色。几株自然伸展枝丫的小树,自成山景的花器盆栽,悠然自得的仙人山石摆件,将思绪带至悠然,人在厅堂内,便是景中走。
窗外窗内皆是景,明月映花花映人,湖边花涧,月下花影,一墙氤氲淡然的花树剪影,为主卧编织一帘幽梦。
撷取雅致古色——绯红、仓青、月白,糅合点缀,布艺与黄铜碰撞,温度与质感并存,以含蓄的现代方式诠释东方意境,追求中式美感的同时,融汇西方文化的品质追求,陈设置景,简凝诗意。
一抹月白,如一湾清水,清净自然,安抚人心。山水的诗情,是波光粼粼的湖面,亦是聚散跃动的游鱼,光影映照的轻纱幔帐,正如温柔的云朵和微风。
居于闹市,闹中取静,以器载道,以物观心。简练高远、隐逸化境的山水图,可望可行,可居可游,最能予人自由遐想的精神空间。
远山遍野美景难尽收,取一留白屏风,作一山林画卷,东方写意水墨渲染,高松伫立,伴着山巅淡淡的雾霭,静坐其中,且听风吟,杂念皆抛,心自安然。
闲来看树影斑驳,书卷满架,邀三五知友共聚,品茗饮酒笑谈几许,醉时则冥然兀坐,醒时则偃仰啸歌,忘却俗世琐事,随心翻阅诗书几本,山水之间的闲适生活,大抵如此。
书画房是喜物之藏室,又是精神之归处。安于一室,挥毫泼墨,一笔一画,字字修心,素养性情。无论是墙面上元代画家林子奂的《山水图》,还是书柜上古朴的玉器和铜像,都可见返璞归真的素静。
满山绿树,满院繁花,那些绽放着生机的草木,都是都市人心心念念的美好,也是最能让人心悦平和的所在。
一草一木,一花一叶,皆是清欢,有一可以侍弄花草的空间,也最是令人安然自乐。
渔烟暮色,山水诗情,枝叶伸至窗沿,顾自成画,风移影动,静谧诗意油然而生,空间不言自从容,山水栖居人生意境,尽可拾得。
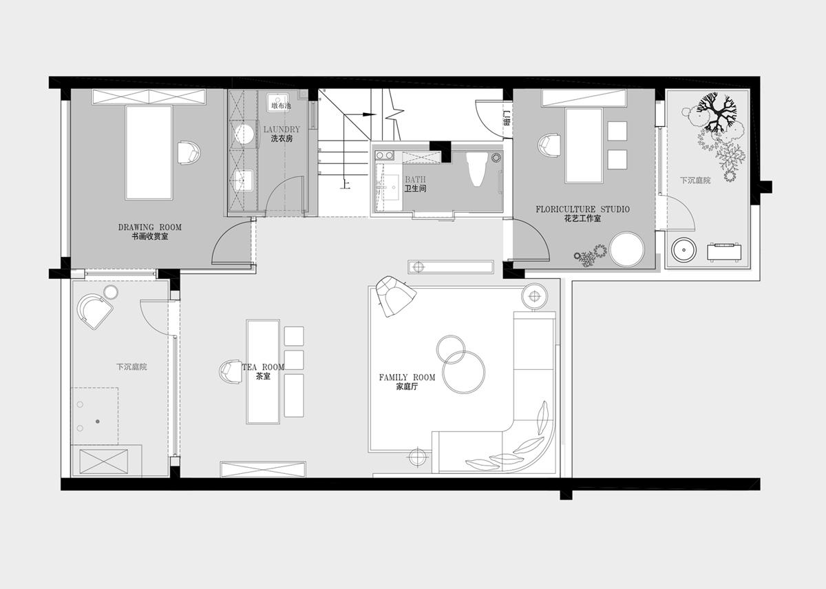
[ 一层平面图 ]
[ 负一层平面图 ]
项目名称 | 雅达乌镇临溪苑合院130户型
甲方单位 | 雅达集团
甲方团队 | 项明军、王炯巍、薛琳腾、赵亮、冯海江
项目地点 | 中国,乌镇
项目面积 | 222㎡
完工时间 | 2021年
陈设设计 | 广州大朴艺术设计有限公司
布艺设计 | MEET SUNRISE
项目摄影 | 蔡启伦
程慕 / 创始人&创意总监
彭琦 / 合伙人&陈设总监
大朴设计,2016年创立于广州,团队始终秉承创新精神和以客户需求为先的态度做好每个设计,重视调查研究,讲究设计方法,用设计创造价值。专注于室内外空间设计、软装设计领域,服务范畴包括酒店、会所、售楼中心、样板房等。
客服
消息
收藏
下载
最近














































