查看完整案例

收藏

下载

翻译
Architects:Dakhmeh Studio
Area:280m²
Year:2022
Photographs:Deed Studio
Manufacturers:Behrizan,Iranradiator,Sanli,Shouder
Project Manager:Seifollah Nasiri
Structural Engineer:Hossein Zanganeh
Electrical Consultant:Mohammad Shaban
Modelling:Negar Rashid
Plumbing:Shahin Parhizkari
City:Tehran
Country:Iran
"Pigeon house" is a three storey building with a basement, a courtyard, and a caretaker's room on the rooftop, located in the north of Tehran. The renovation of this building was carried out with an economical budget, focusing on the use of recycled materials, scrap, and affordable, accessible resources, utilizing unskilled labor. The design prioritizes the maximum use of metal scrap and recycled wooden pallets.
The use of untreated wood and iron in the interior of the units makes them neutral spaces, allowing the residents to personalize and complete them with their own creative input. Additionally, the durability of these materials significantly reduces maintenance costs and wear and tear on the building. As part of the renovation, the ceilings were re-layered and re-concreted. The flooring of the units is made of Russian wood planks, which are screwed onto an iron profile structure. These planks are removable, allowing for the placement of cables and utilities underneath.
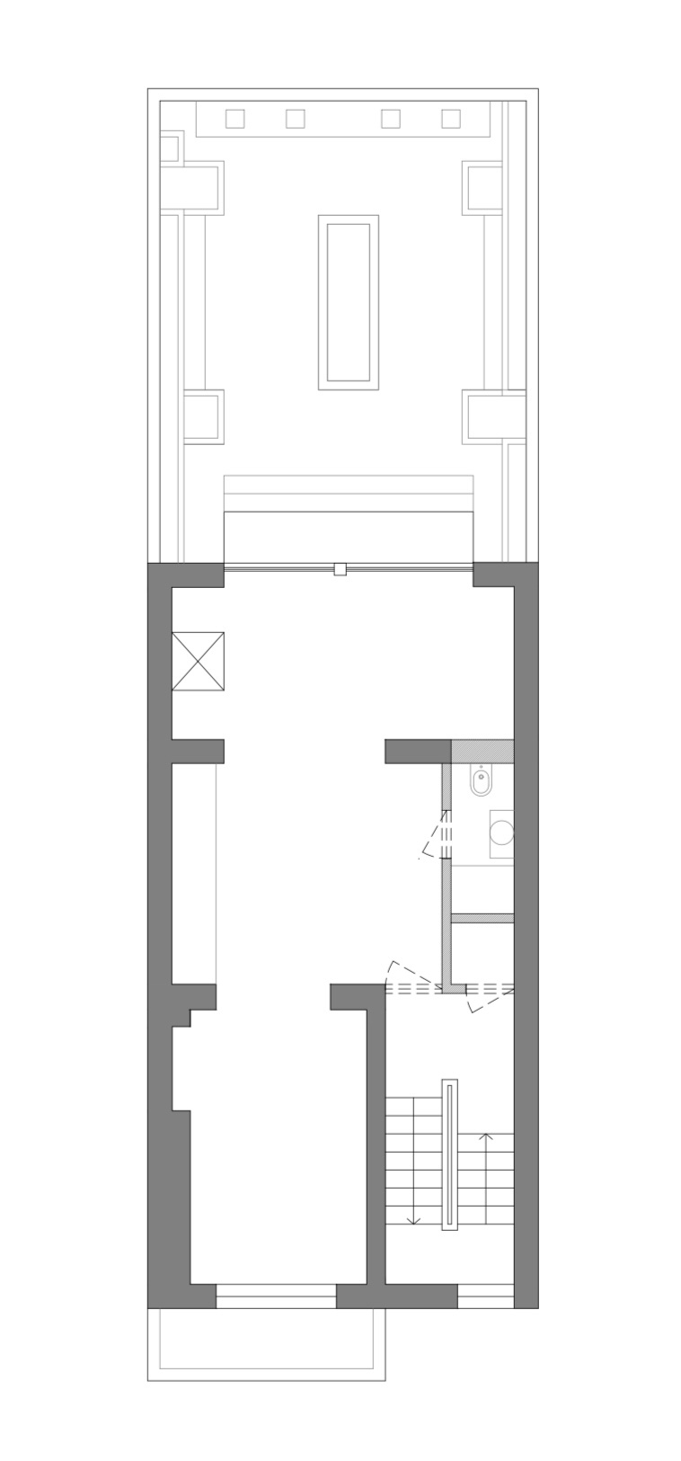
Three new spaces were added during the renovation: the southern facade with a new balcony, an expanded basement, transforming it from a storage area into a livable space, and an extended rooftop area for the caretaker's living quarters.
By adding a structure to the southern facade, full-length balconies were created for all floors. The new facade consists of metal panels that can be opened and closed, covered with recycled tin sheets from the roof of an early Pahlavi-era building. These tin sheets were stored in a scrap yard for years and were hammered and flattened to be reused with their original weathered, rusty appearance. The added skin not only provides a second security layer but also controls visibility and privacy for each unit, while also functioning as a shade. The combination of potted plants behind the balcony and the rusted tin sheets creates an organic connection, blending the building's spirit with the historical identity of Tehran.
The basement, initially 30 square meters, was expanded to 50 square meters by excavating towards the courtyard. A bathroom, a toilet, and a small kitchen were added, and the space was transformed into a livable unit with natural light through new windows. For the installation of these windows, 40 centimeters of the courtyard's surface was excavated.
On the exterior, the original iron entrance door with floral motifs, reflecting the building's historical era, has been preserved. The brick sections of the facade were repaired, and three hollow metal volumes were installed between the bricks, designed to create nesting spaces for pigeons.
Project gallery
客服
消息
收藏
下载
最近


























