查看完整案例

收藏

下载

翻译
Architects:HASA - Architecten
Area:4098m²
Year:2021
Photographs:Tim Van de Velde
Manufacturers:DELABIE,Sika,Duravit,FLOS,Kvadrat,Multipor,VitrA
Stability:BSTK ingenieursbureau
Stability Emergency Stairs:BAS bvba
Technics:AA&O bv
Construction Engineers:Daidalos Peutz
City:Anderlecht
Country:Belgium
Text description provided by the architects. The historical Veterinary School in Anderlecht lies at the origin of the Cureghem quarter. After over 20 years of disuse, the main building is converted into a business and conference centre aiming to boost the economic revival of the area.
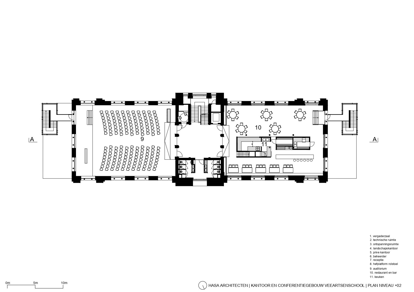
The functional program of the client was rethought as to respect the existing layout of the listed building: auditorium and restaurant in the large academic halls on the 2nd floor, office space on the ground floor, 1st floor and attic. Two newly excavated patios allow for daylight to enter the meeting rooms in the refurbished basement.
To comply with current safety regulations, HASA architecten added external fire escape staircases to the left and right of the building. The freestanding, mesh-wire staircases support a cantilevered bridge, with 2 existing windows serving as emergency exits. This design allows for the entire intervention to be reversed, without any lasting damage to the heritage building.
By adding an internal layer of insulation to the facades and by integrating energy saving lighting and building technology, we managed to lower the building's annual energy consumption for heating from 200 kWh/m²a to a mere 45 kWh/m²a, making it the first listed low energy building in the Brussels Capital Region. This entire operation was carried out meticulously in order to preserve the historical finishing and avoid long term structural damage.
Our design aimed for maximal preservation and reuse of the materials already present in the building. Building elements and materials that couldn't be used in place, were sold during a public market for neighbours, contractors and resellers.
In a harmonious blend of past and present, HASA Architecten executed precise interventions that honor the original logic of the existing structure. By utilizing the same materials and colors, yet infusing a distinctive, contemporary design, they achieved a seamless integration. Rather than opting for stark contrasts, the architects chose to make respectful additions that complement the historical fabric of the building. This project champions sustainable renovation, focusing on reducing energy and material consumption, revitalizing the immediate surroundings, and preserving cultural heritage.
Project gallery
Project location
Address:Anderlecht, Belgium
客服
消息
收藏
下载
最近


















