查看完整案例

收藏

下载

翻译
Architects:KCONCEPT,KOHARCHITECTS
Area:362m²
Year:2024
Photographs:Quang Dam
Manufacturers:INAX,Toto,Xingfa
Lead Team:Le Anh Khoa
Architecture:Minh Cong, Minh Triet
Interior:Quoc Hao
City:Thành phố Phan Thiết
Country:Vietnam
Text description provided by the architects. DEMETER BEANS is a local coffee roasting brand known to many customers. After the success of Facility 1, it is a roasting workshop that combines a cafe experience space with a mobile iron structure that blends with the landscape.
Open and airy in the garden, the second facility gradually moves into the city center and coastal urban area, reaching new customers and being more suitable for the coffee shop and takeaway model experience.
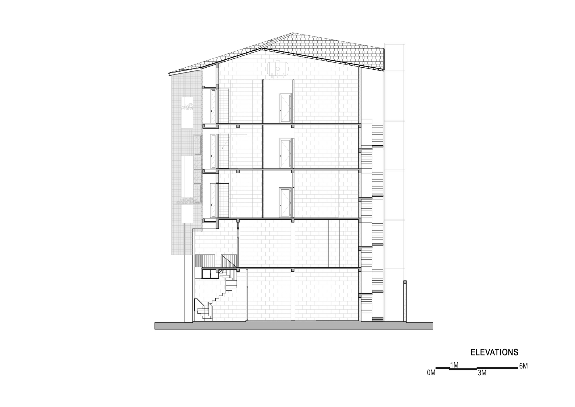
The site is an empty lot but has two frontages with good access to services and natural light for the whole building. The building has 5 floors, this time Demeter Beans combined with D-APARTMENT, model The above-serviced apartment model solves business problems and creates a destination to increase service recognition.The project carries the color of the original materials that make up the architectural block.
We want the project to be in harmony with the daily life of the surrounding people, seen from different roads leading to the project. DEMETER BEANS as a highlight without being too ostentatious, but contributing to the vitality of locals and tourists of the coastal city.
Project gallery
客服
消息
收藏
下载
最近




























