查看完整案例

收藏

下载
M Stand 苏州仁恒仓街店
传统与现代的诗意交融
项目背景Project Background
项目落址于苏州仁恒仓街广场,仁恒仓街以“灵感苏州,不止于江南”为定位,汇聚历史人文与艺术科技。M Stand品牌希望与城市融合打造一个独特的空间体验,创造苏州仁恒仓街广场独有的店铺设计概念。
The project is located at Suzhou Yanlord Cangjie, which positions itself as " Inspiration Suzhou, more than Jiangnan." bringing together historical culture, art, and technology. M Stand goal is to create a unique spatial experience that seamlessly integrates with the city, establishing a distinctive store design concept exclusive to Suzhou Yanlord Cangjie.
设计理念Design Concept
城市中的“诗意空间”
"Poetic Space" In The City
空间设计上从苏式园林的建筑语言与现代美学相结合作为切口,城市中的“诗意空间”这一设计理念油然而生,以苏式建筑传统文化底蕴为依托,在艺术表现技巧中融入传统语言与现代设计元素,让传统文化与现代文化碰撞交融。
The spatial design begins with the integration of modern aesthetics and the architectural language of Suzhou Gardens as its entry point. The design concept of "Poetic Space In The City" arises spontaneously from this approach, relying on the traditional cultural heritage of Suzhou Architecture. It integrates traditional language and modern design elements into artistic expression techniques, facilitating traditional and modern cultures to collide and blend.
▼店铺外观
空间策略Spatial strategy
传统文化与当代美学的对话
Dialogue Between Traditional Culture and Contemporary Aesthetics
店铺空间纵深较高,为了丰富空间的层次感,将“苏式建筑亭轩”嵌入空间中,将苏式建筑通过现代语言重新设计、简化结构。在保留苏式建筑关键结构的同时,引入自然的风光,营造含蓄淡雅的苏州园林韵味,达到品牌、场域与苏式园林建筑文化的三者的和谐统一。
Given the higher depth of the store space, to enrich its layered experience, we integrated "Suzhou Architectural Pavilions" into the design. Suzhou Architecture is reinterpreted and simplified through modern language. While preserving the key structural elements of Suzhou Architecture, natural scenery is introduced to evoke a subtle and elegant Suzhou Garden ambiance, achieving a harmonious unity among the brand, the space, and Suzhou Architecture.
▼空间轴测图
▼室内空间概览
光影虚实变化是苏式园林建筑氛围一种“诗意”的营造方式。设计将竹影与人工照明的结合,创造出光影交错的视觉效果,使整个空间充满了虚实相生的诗意,让人仿佛置身于一幅动态的水墨画中。
The play of light and shadow is a poetic method of creating the atmosphere found in S Suzhou Gardens. The design combines the shadows of bamboo with artificial lighting to create a visual effect of interwoven light and shadow, infusing the entire space with a poetic sense of reality and illusion. This makes visitors feel as if they are immersed in a dynamic ink painting.
▼虚实变化的背景
苏州园林通过框景、漏景、借景等造园手法,将屋外的景色引入室内。而该场地本身空间较为封闭,在确认空间内的功能后,在门头立面上开出不同形式的窗,通过框景将室内的景色引出窗外观赏,如同装裱过的山水画卷。
Suzhou Gardens use techniques such as framed views, pierced views, and borrowed scenery to bring outdoor landscapes indoors. The site itself is relatively enclosed, so after determining the interior functions, we added windows of various forms to the facade. These windows frame the interior scenes, allowing them to be viewed from outside, resembling a scroll of landscape paintings.
▼店铺门头
▼从框景看室内
材质运用Material Application
肌理之美,清净幽雅
The Beauty of Texture: Pure and Elegant
在材料与工艺的选择上,利用小石砖与染色木板搭配,实现不同纹理之间的碰撞,以绿色为主色调,融合现代与传统的元素,增加苏式园林的氛围,使苏式园林文化焕发新的现代魅力。
In the selection of materials and craftsmanship, stone bricks are paired with stained wood panels to create a contrast of textures. Using green as the primary color, the design blends modern and traditional elements to enhance the Suzhou Garden atmosphere, imbuing Suzhou Garden culture with a completely new modern charm.
踏着小青石,身在园林里,坐在亭轩之中,闲饮咖啡、谈笑风生。
With blue bricks beneath the feet, in the midst of the garden, sitting in a pavilion, leisurely sipping coffee and having a lively conversation.
▼材质运用
▼设计细节
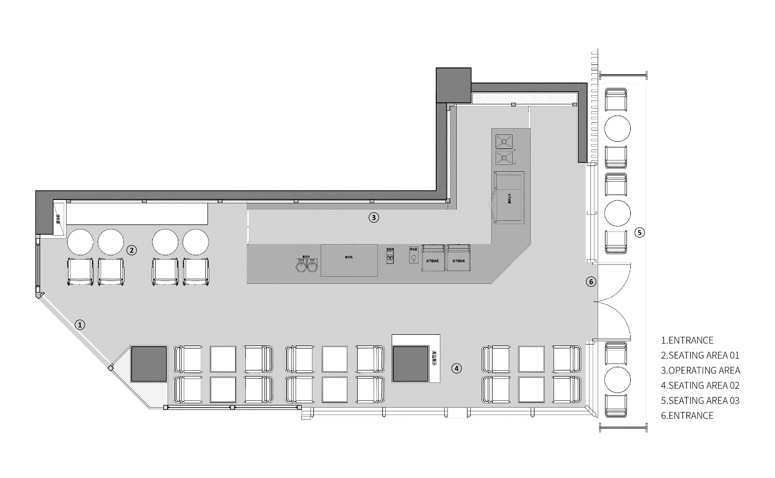
▼平面图
项目名称:M Stand仁恒仓街店
项目位置:江苏省苏州市姑苏区干将东路仁恒仓街LG1-125
建筑面积:73㎡
完成年份:2023
主持设计:许晓瑜
摄影版权:小鸣同学
客服
消息
收藏
下载
最近




















