查看完整案例

收藏

下载
此次项目是普宁华为全屋智能体验馆,项目位置属于临街商铺,共有三层室内空间,首层为灯光及产品展示体验区,二层为家居智能体验区,第三层为接待及办公区。整体以“探寻光的领域”为主题,通过光的不同建构,表达空间和材料的情绪,探寻光,展示光,演艺光,感受光。
光以线为形,借由“芯片路径”游弋在纯黑基底上,应和“全屋智能”LOGO的内涵,体现华为品牌与时俱进的研究力与开创力。上半部分外凸的造型,为一层立面提供了良好的遮阴条件,让人甘愿停留在舒适环境里观赏三段特色“橱窗”,无形中增加了进店率。
把光珍藏于建筑之内,只是温柔叙事的开始。平展的尺度搭配明晰的几何,映衬出了光源的纯度,赋予心灵无边无际的宁静感。深谙首层层高的优势,利用微聚拢手法强化“通天”的意境,使人在仰望之际,被空间氛围深深地吸引。
廊道,一面展露“光护奇石”的诗意,一面传递“日暖风和”的气质,消解了过渡区的无聊感。廊道一端连接展示大厅,以框景形式将新构体块的层次感娓娓道来。点状元素,填补了清水混凝土的美学空白,还与黑白组合形成相呼应的乐趣。
展示大厅,怀抱积极沟通的心态,过滤日光,对话街景,打造跳色结构,点缀温暖光效,云集现代主义的理性与浪漫、层次丰富的时空感、三维通透的视感以及妥帖的服务属性。银灰被置入淡雅窗景,引入柔光,完成一次次精巧又动感的表达。
大胆构建悬吊的结构体系,扩张此境的叙事象限。回归人的感官体验,用正圆形态镂空悬吊结构,让顶面的光漫游其间,促成递进的视觉层次,予人美学享受。以“穿孔”手法呈现的横板,散发着木质清香,嵌入灯珠,优化了照明细节。
想象力,在不受束缚的时候,才会推动人类文明的发展。纯净无瑕的顶光,刷新了开敞空间的光感,沿着中轴线望去,即可将阴晴圆缺的意象尽收眼底,唤醒了心中的想象与理想。原木饰面,保留隔断的完整感,结合多元的分区智慧,平衡了收纳空间与展示效果。
建筑大师勒·柯布西耶说:“建筑是光线下形状正确、绝妙、又神奇的游戏。”当直线与直角相遇,空间便有了段落,当圆形与方形融合,空间情绪就能稳定。高位天花,植入光膜,复刻了清朗天空,抒发着空间的精神腔调。
路易斯·康说过:“光,是人间与神境相互对话的一种语言,并且是人性与神性共同显身具象化的领域。”会客洽谈室,持有规整的对应关系,容纳家具与意境,触动五感。水晶砖,给平淡无奇的暖黄光绘就了艺术性高光,联结挂于墙壁的极简艺术,丰盈一隅情趣。
借助材质的纯粹性,引人解读大面积清水混凝土模板墙体建构空间的意义,亦实现了一场从“直白”到“含蓄”的光学演绎。纸飞机,划过天际,与“光的容器”签署了云端约定,浪漫而真挚。
“现实,是一种生活;理想,却是对生活的另一种希冀。”客厅,是对简约内核的最佳说明,没有“用力过猛”的空旷,而是适度削减了物质和欲望,为生活减负,让心在素雅的环境内慢慢回归平静和放松……
通过各种区域的交互关系以及独立的意识,构建了灵活又通达的路径,穿梭在空间内,可以感受到自由和快乐。光为空间覆上一层梦幻的滤镜,攫取光线和色彩对情绪的影响,释放休憩和安然的氛围。
灵魂,是不愿被束缚的,空间亦然。玻璃砖墙,让极简奥义轻松融入生活,健身房与书房、茶室一墙之隔,但是动静分明,既巧妙区分了毗邻场域,又不碍灵动的光影层次,满足屋主的情趣追求。
黄铜之光,写实了优雅的曲面,暖融了空间氛围。石块,迎着光影把天然纹理焕新,解锁心旷神怡的韵境。色调统一的高脚凳,适配岛台的神秘感,令人更加专注于当下,拓宽了空间的功能。
安藤忠雄认为:“建筑设计就是截取无处不在的光,并在特定的场合去表现光的存在。”家居设计,透过“以人为本”的思想,提高了居住舒适性的指标。衣帽间,是整个家最懂美的地方,安装百叶帘,打暖光,列镜面,律动着各种各样的情感与品味。
屏蔽原有建筑繁杂的窗景,借由墙体的自由错动分割,建构出一个现代的家居空间场域。会客餐厅,主张渲染自然光,再以材质反光与人造线性光双重结合,有层次地诠释光感延续的脉络与变化。
在各个空间中,植入不同大小的律动色彩的光膜,让客户在体验游走间完成一场光的演艺。以一团光显现三角形轮廓,翻转光影比例,让多层次的“影”辅助光的叙事,令人忘我地起舞。
影音室从记忆与记录的角度,对创意与生命力进行深入探讨,任凭光丝绵延,挖掘潜在的空间故事,为客户提供完美的体验感官。模糊时间与空间的定义,揭示影像与声学充实生活的可贵之处。
空间爆炸图
空间立面图
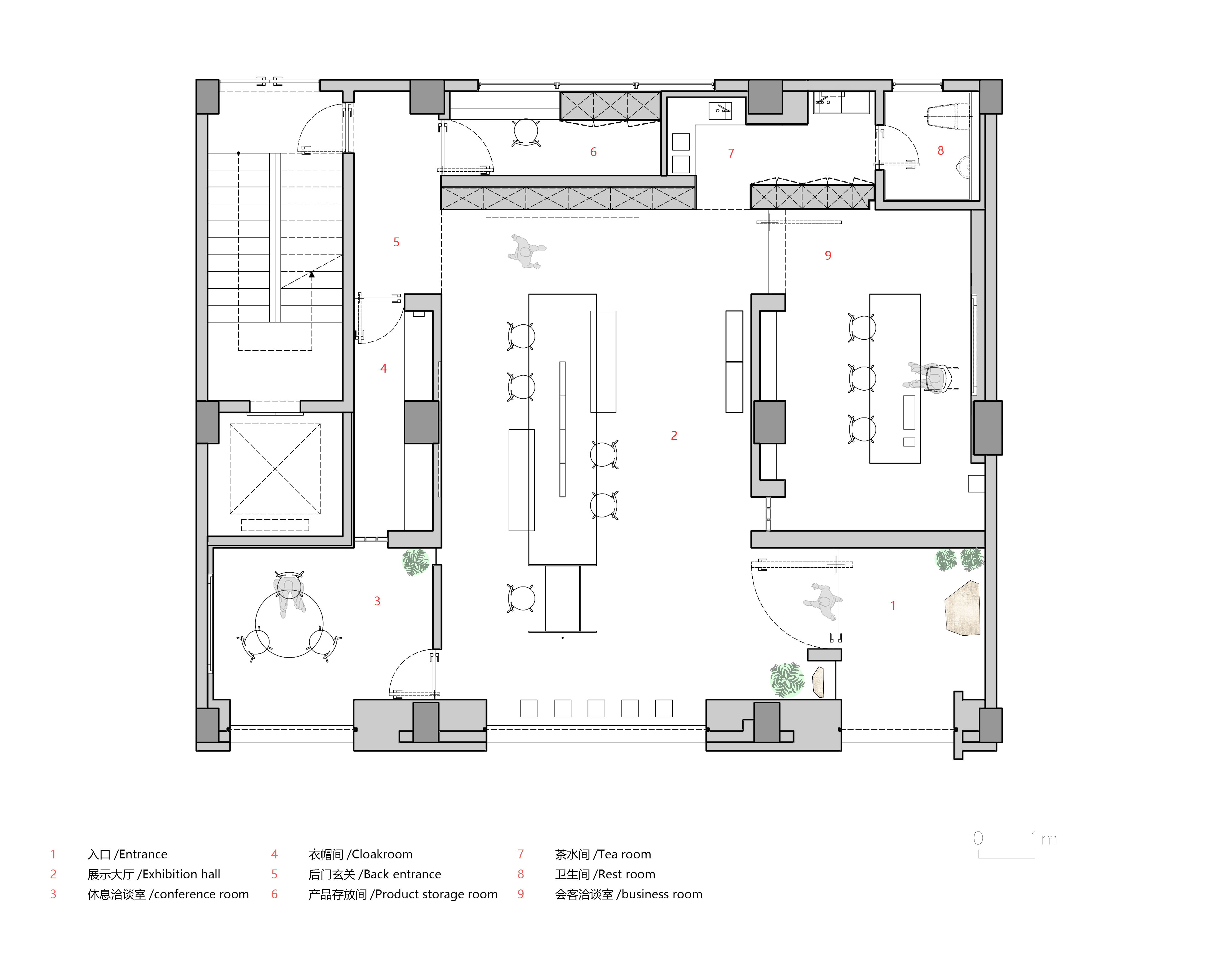
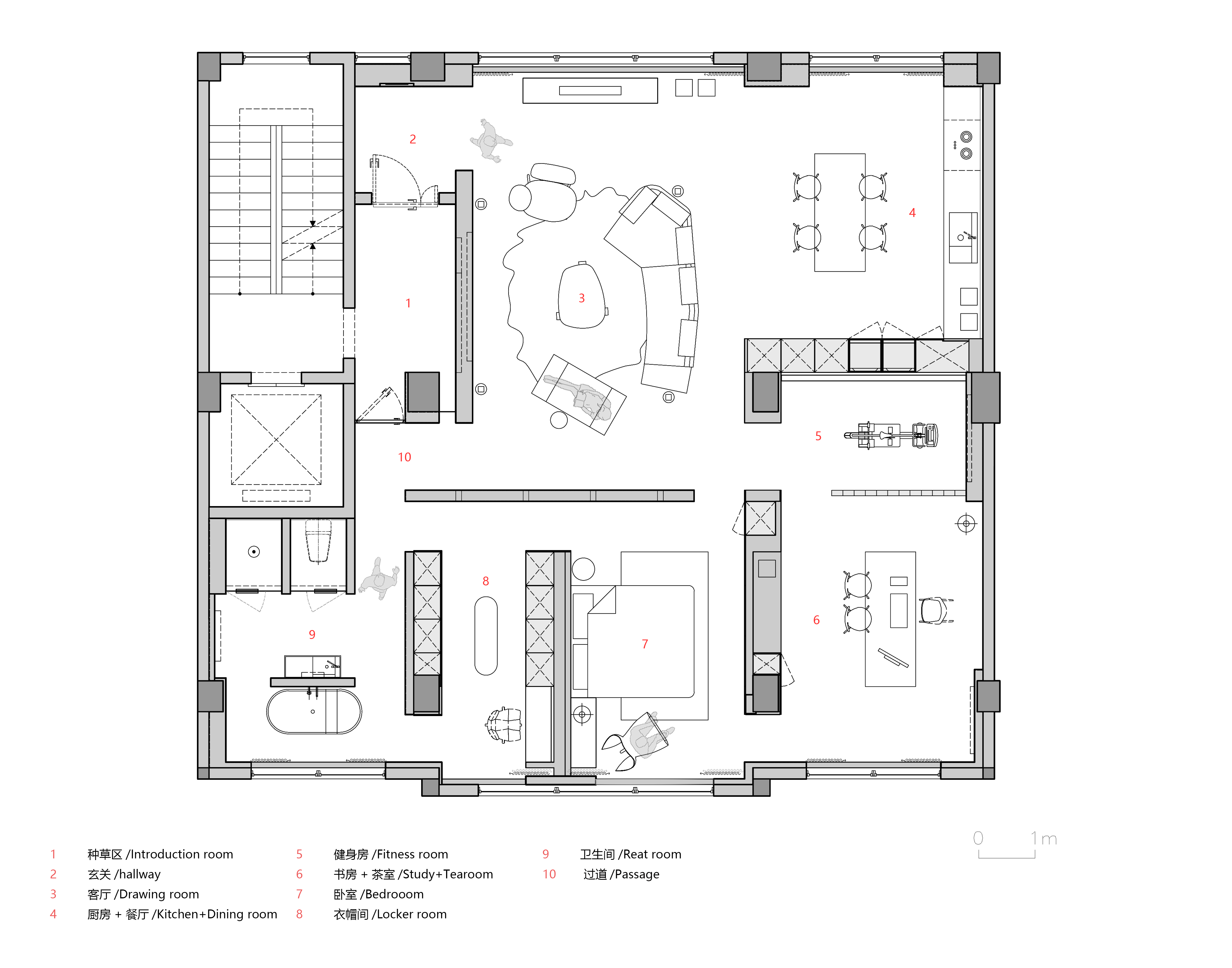
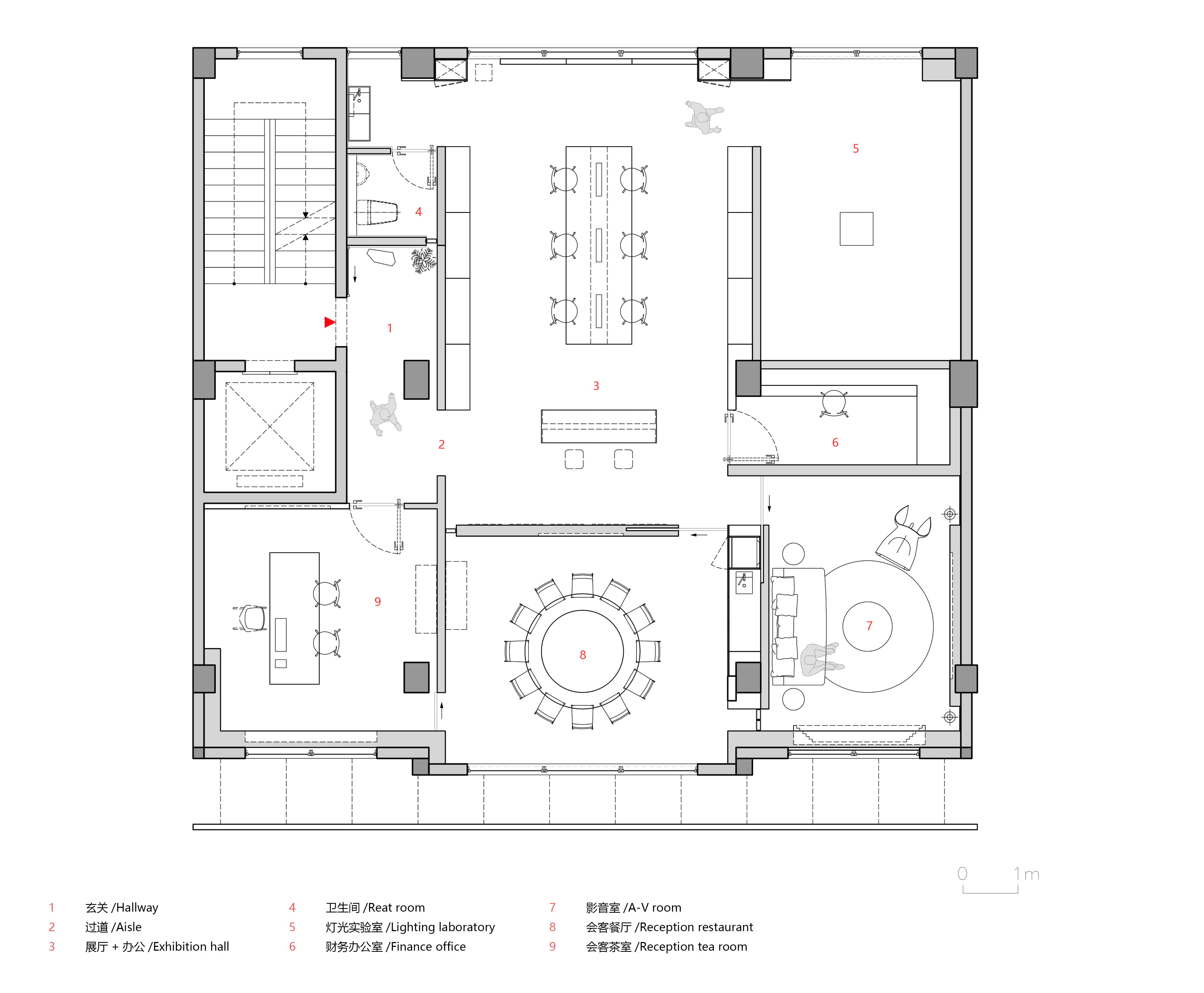
平面布置图
项目信息
【关于质感建筑】
客服
消息
收藏
下载
最近











































































